New 3-bedroom flat in Nicosia № 200036
Additional:
New building
Parking
Storage
Elevator
Description:
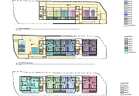
Apartments for sale in a new complex located in the heart of Aglantzia, Nicosia, is a modern four-storey residential building designed for modern comfort and convenience. With a total of 12 exclusive apartments – nine 2–bedroom residences and three 3-bedroom residences - this complex offers stylish and functional living.
Read more
Object
№200036
Type:
Apartment
City:
District:
Complex:
Developer:
Bedrooms:
3
Bathrooms:
3
Total area:
142 m2
Indoor area:
122 m2
Storey:
4
Floor:
3
Year of construction:
04/2027
Energy efficiency class:
A
370 000 EUR
+ VAT
370000
2 606
EUR/m2
385 000 EUR
Schedule a viewing
Similar offers
3368 objects
Show all
Previous viewed objects
5 objects
Show all
Interesting
