New 3-bedroom apartment in Paphos № 190776
Additional:
New building
Parking
Elevator
Description:
Apartment for sale in a new residential complex located in the area of Kissonerga, Paphos. The modern new building is located near the sea. The complex is designed in a modern architectural style, offering comfortable accommodation. A great option for both permanent residence and investment.
Read more
Object
№190776
Type:
Apartment
City:
District:
Complex:
Developer:
Bedrooms:
3
Bathrooms:
2
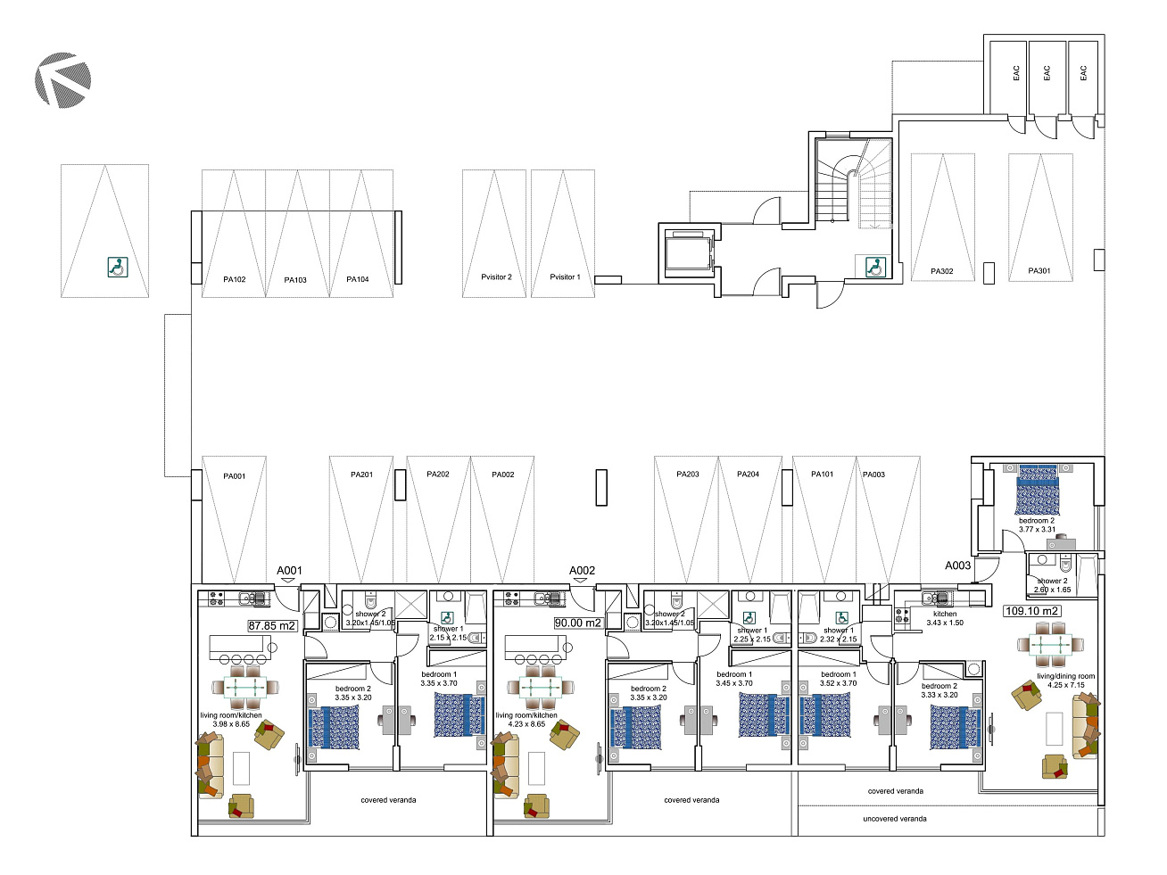
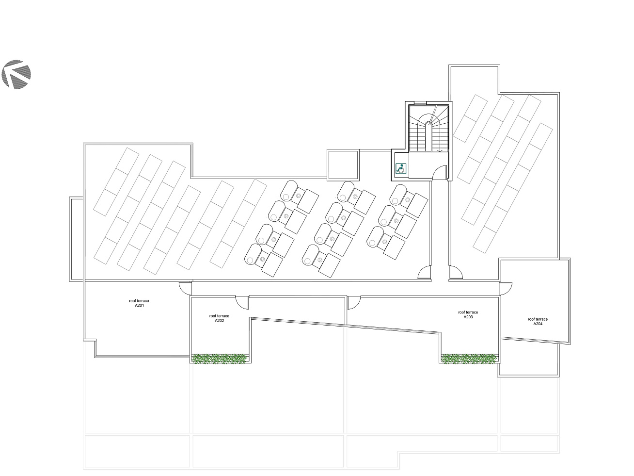
Total area:
170 m2
Indoor area:
109 m2
Storey:
4
Floor:
3
Year of construction:
05/2027
Distance to the sea:
600 m
Energy efficiency class:
A
535 000 EUR
+ VAT
535000
3 147
EUR/m2
Schedule a viewing
Similar offers
2007 objects
Show all
Previous viewed objects
Interesting
