Land in Larnaca № 208514
Description:
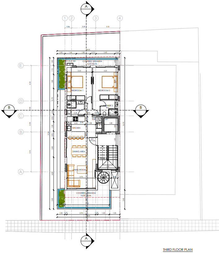
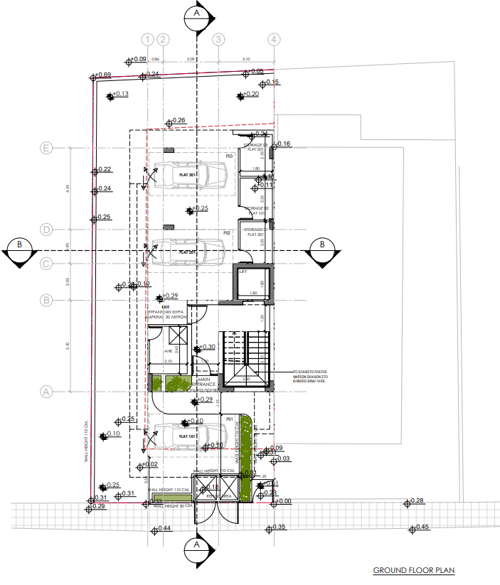
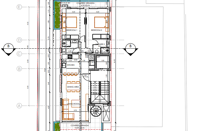
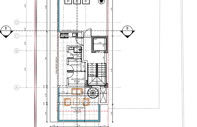
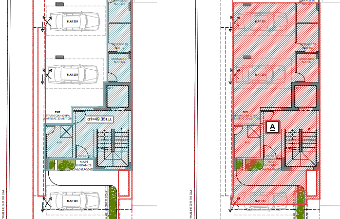
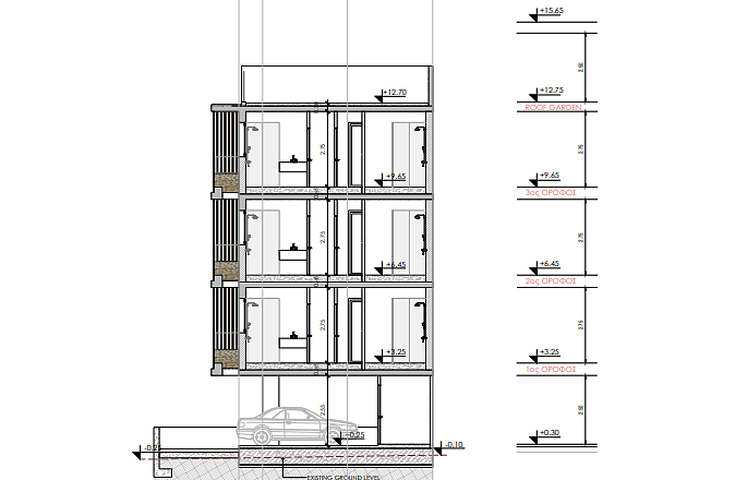
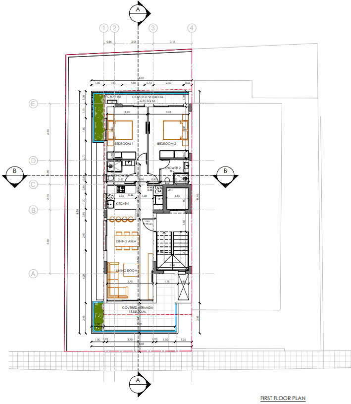
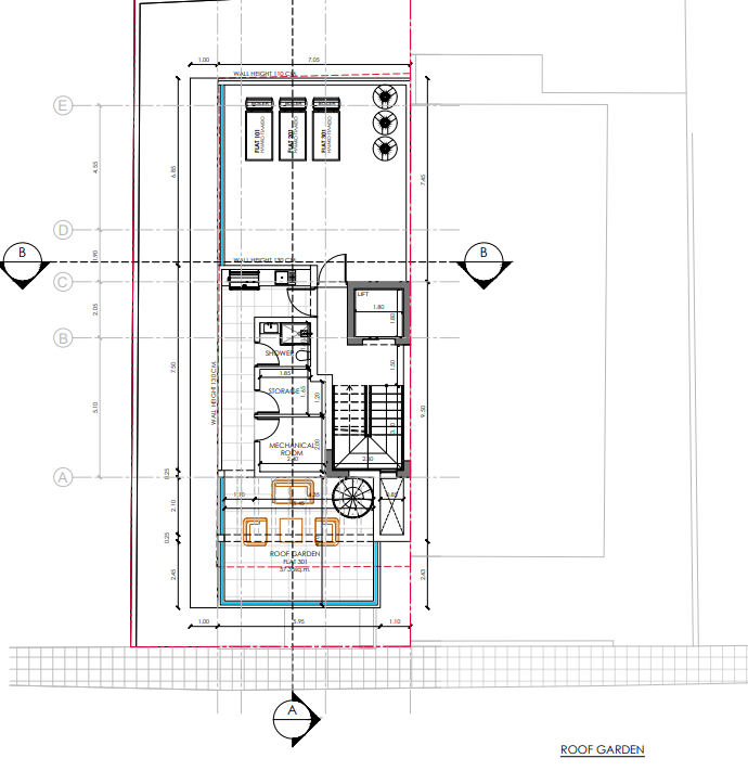
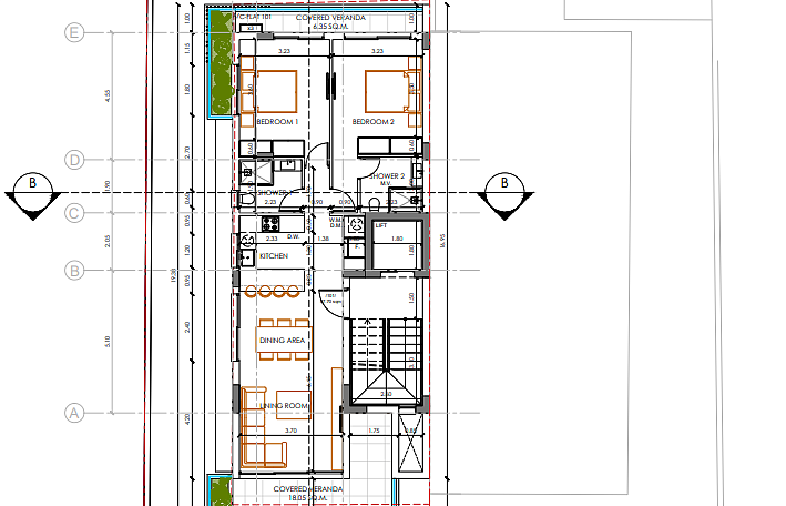
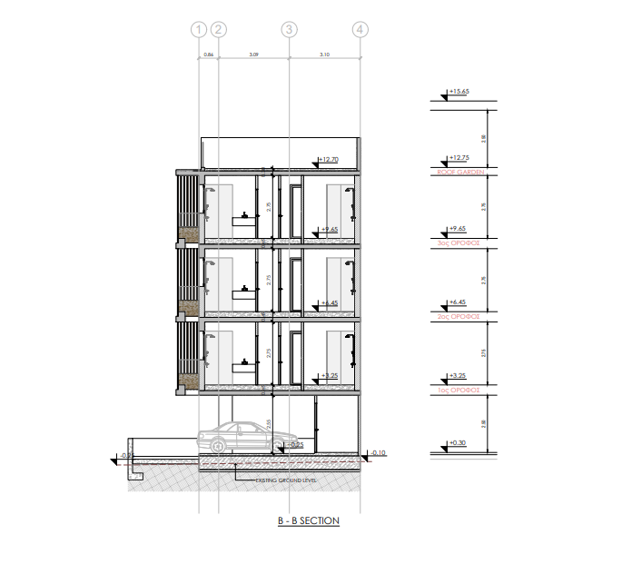
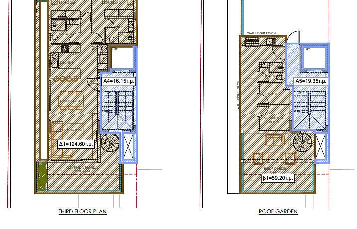
A plot of land for sale in the Faneromeni area of the city of Larnaca. The land area is 238 m2. There is a 120 m2 house on the plot, which requires renovation or may be demolished for new development. The property is located in a quiet residential area with developed infrastructure, in one of the most sought-after areas. The site has a high investment potential. Architectural plans have been prepared and an application for a building permit has been submitted, which are included in the price. The project provides for the possibility of building three modern apartments, which makes the facility an excellent option for investment or development project.
Read more
Object
№208514
Type:
Land
City:
District:
Complex:
Developer:
Land area:
238 m2
Storey:
2
Distance to the sea:
1700 m
285 000 EUR
285000
1 197
EUR/m2
Schedule a viewing
Similar offers
711 objects
Show all
Previous viewed objects
Interesting
