
New 2-bedroom penthouse in Larnaca / Sotiros №204961




Additional:
Description:
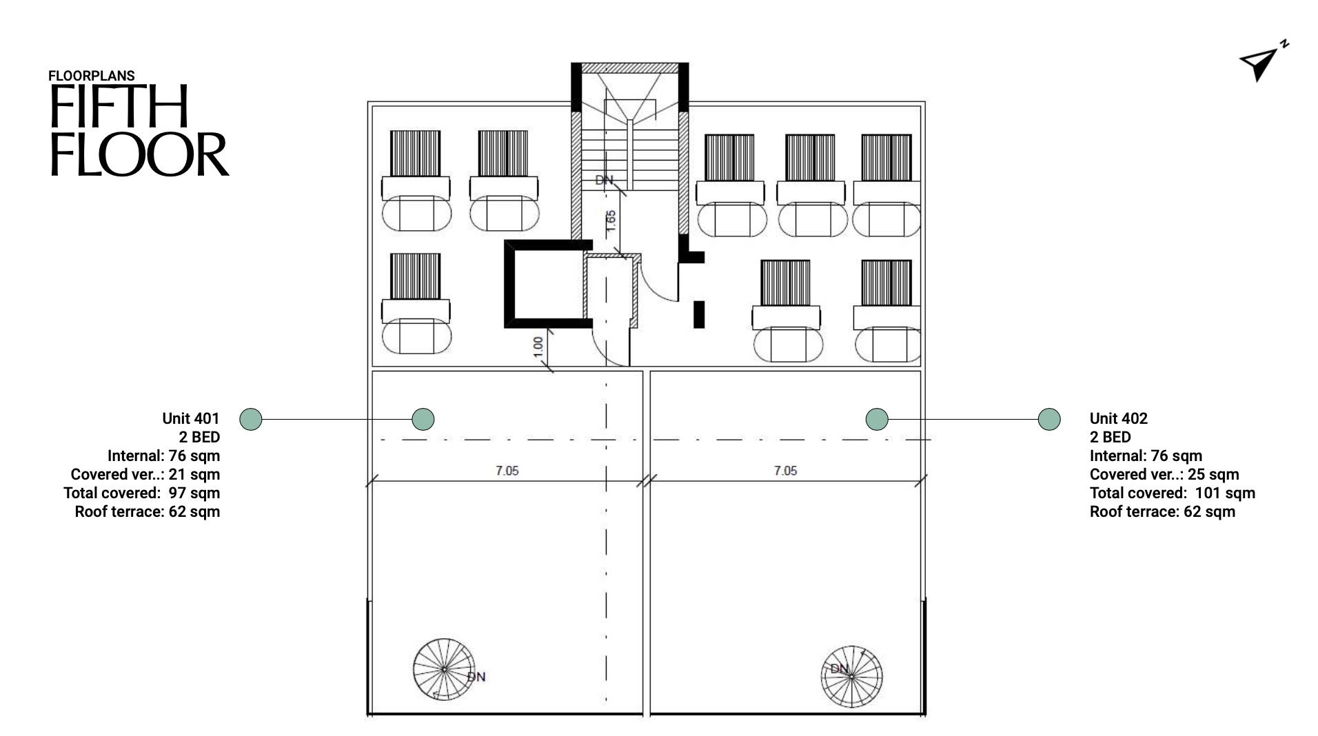
2 bedroom penthouse for sale in a new residential complex in the Sotiros area, Larnaca. Comprising 8 modern two bedroom apartments, ideal for modern city living. Located in a prime location, with easy access to blue flag beaches, shopping, restaurants and entertainment, it is the perfect place to call home for those looking for maximum quality and convenience. High-quality European ceramic floor. Aluminum window frames with double glazing. High-quality European ceramic tiles on bathroom walls. Security entrance doors and an intercom system. High-quality sanitary ware from leading European brands. A photovoltaic system is installed in the common areas. The penthouses will be equipped with a 2 kW photovoltaic system. All apartments have spacious, comfortable interiors and spacious balconies.
№204961
Apartment
City:
District:
Complex:
2
2
159 m²
76 m²
4
4
07/2027
1000 м
A
€1,950 / m²
DOM Real Estate
+357 25 056 478











