
New 4-bedroom house in Limassol / Palodeia №201499




6
Additional:
Pantry
Parking
Pool
Air conditioner
Heating
Description:
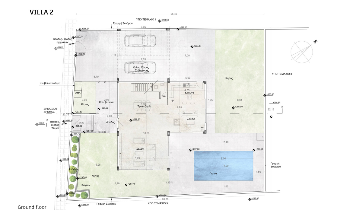
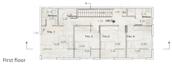
Modern villa for sale in Limassol, Palodeia area. The spacious residence includes a living room, a kitchen, four bedrooms and three bathrooms. There is a terrace, a barbecue area, a swimming pool and a garden. For energy efficiency, a 7 kW photovoltaic system is installed, underfloor heating and air conditioning in all rooms. Advanced thermal insulation technologies have been applied. Parking and a storage room are available. The house is made of high quality materials, suitable for both housing and investment.
Object
№201499
Type:
House / Villa
City:
District:
Complex:
Developer:
Bedrooms count:
4
Bathrooms:
3
Total area:
394 m²
Living area:
225 m²
Land area:
595 m²
Floors:
2
Construction year:
07/2026
Distance to sea:
9500 м
Energy class:
A
€1,280,000+ VAT
€3,249 / m²
DOM Real Estate
+35725030581








