
New 2-bedroom apartment in Limassol / Agia Fyla №132491




Additional:
Description:
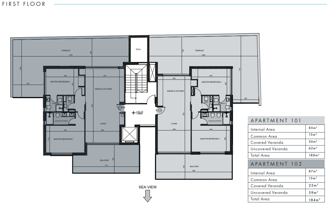
An apartment for sale in a modern residential complex in Limassol, Agia Fyla, designed taking into account modern standards of comfort and energy efficiency. The apartment has a kitchen, a living room, 2 bedrooms, 3 bathrooms and a large balcony. European fittings, sockets and switches, as well as an HD-quality video intercom are installed. The hidden VRV system is used in living rooms and dining rooms, and split systems are installed in each bedroom. Preparation is provided for the installation of electric floor heating. The apartment uses high-quality European plumbing. Heat-insulated exterior walls, natural marble floor in the entrance area. CCTV surveillance cameras are installed in the parking area, and remotely controlled garage doors are installed. Each apartment has an independent water heating system using solar panels, a dedicated parking space and a private storage room. It is located close to all urban infrastructures, including shops, schools, cafes, restaurants and transport interchanges. An ideal option for a comfortable life or a profitable investment.
№132491
Apartment
City:
District:
Complex:
2
3
126 m²
85 m²
2
3
07/2026
3500 м
A
€3,571 / m²
DOM Real Estate
+357 25 281 647










