Land in Limassol № 200925
Additional:
Title deed
Description:
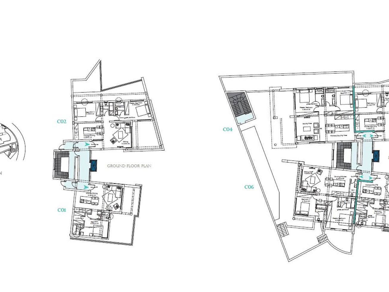
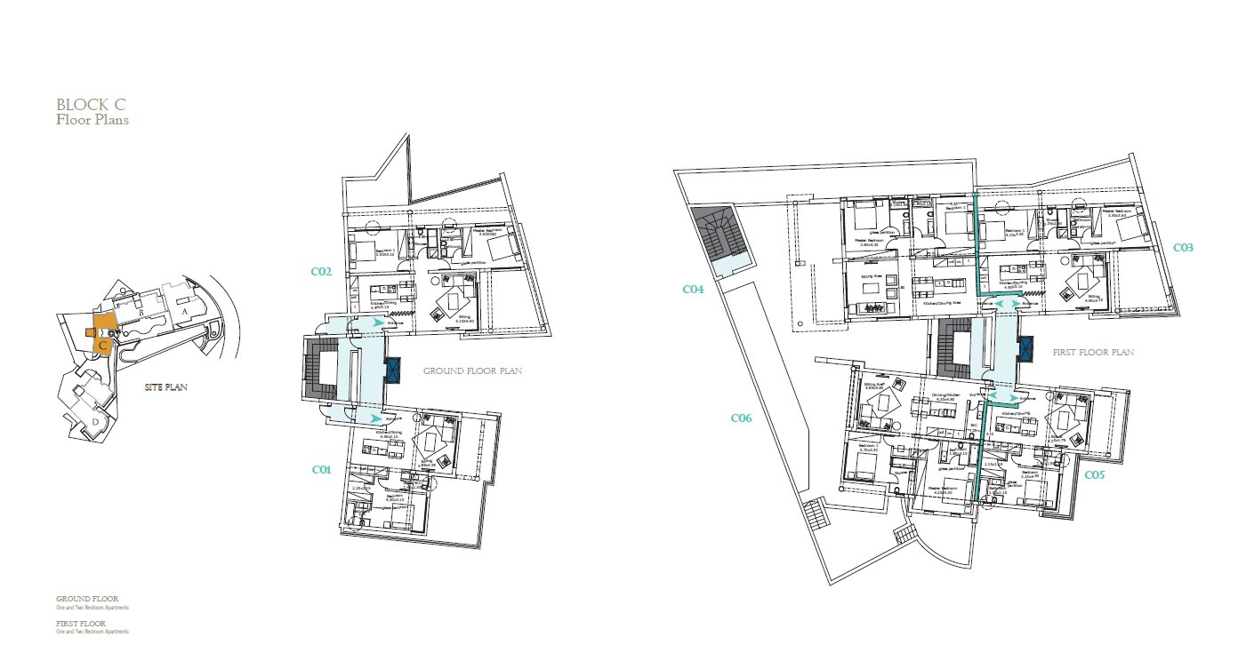
Land for sale located in Agios Tychonas area, Limassol. The plot has excellent sea and mountain views, i.e. has all-round visibility, located on the top of the hill. This is the highest point in the area, which makes this plot exclusive. The area of the site is considered elite. Next door is the Zafiros complex. Convenient location and accessibility both to the city center and to the tourist area - 5 minutes by car. There is a developed design project. The total area is 6809 m2.
Read more
Object
№200925
Type:
Land
City:
District:
Complex:
Developer:
Total area:
6809 m2
Land area:
6809 m2
Storey:
2
Distance to the sea:
2500 m
Zone:
H2
Building percentage:
90
Percentage of coverage:
50
Communications summed up:
Yes
8 000 000 EUR
8000000
1 175
EUR/m2
Schedule a viewing
Similar offers
3846 objects
Show all
Previous viewed objects
Interesting
