Land in Limassol № 198843
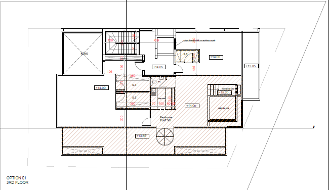
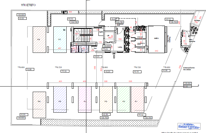
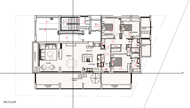
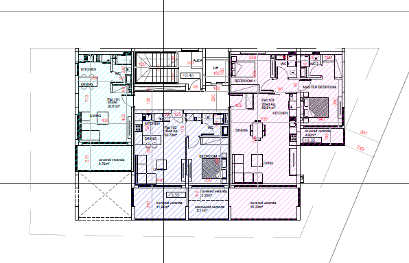
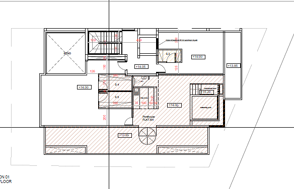
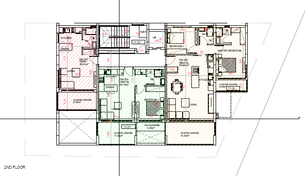
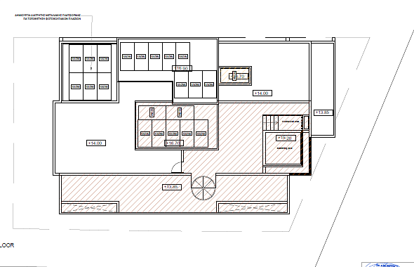
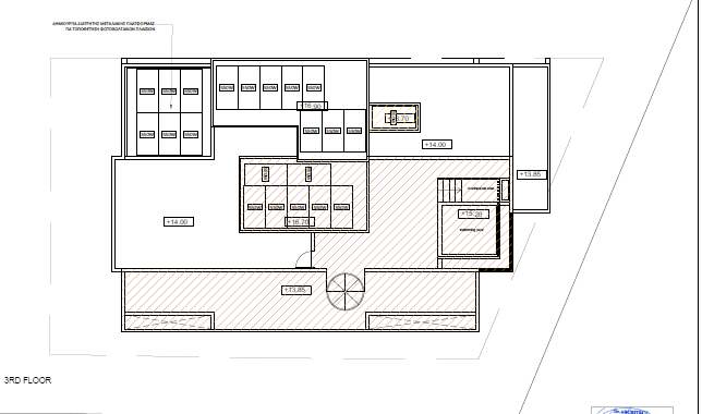
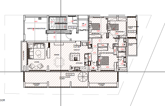
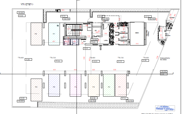
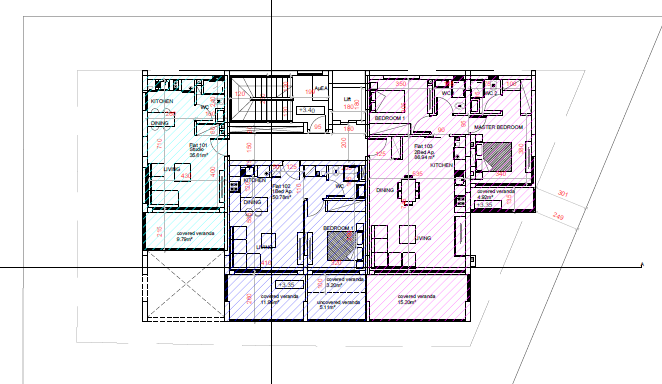
A plot of land with an area of 600 m2 is for sale with a ready-made and approved project of a modern residential building with an internal area of 557m2 and a total area of 695m2. The project provides for a three-storey building with an operational roof, seven apartments, parking and storage rooms, and a rooftop terrace with a pool and garden area. On the ground floor there is parking for 8 cars and storerooms, the first floor includes three apartments - 1 studio and 2 one-bedroom apartments, the second floor consists of a studio and 2 one-bedroom apartments, and the third floor is occupied by a 3-bedroom penthouse with a spacious terrace, pool and garden, two parking spaces are attached to it. and two storerooms. The building permit has been received, and the project is ready to begin construction.
