
3-bedroom house in Paphos / Pegeia №193183




Additional:
Description:
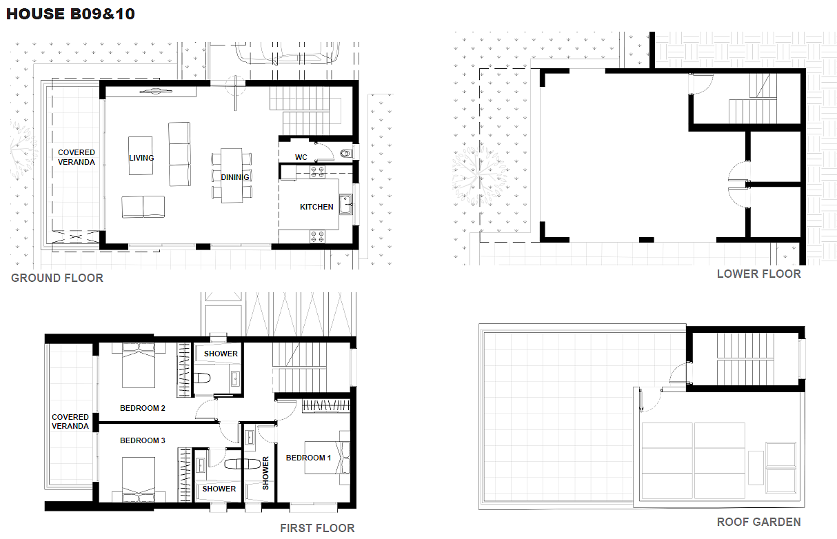
Modern three bedroom villa for sale in a residential complex located in the heart of the picturesque area of Peyia, Paphos. The villas are distinguished by their thoughtful architecture and high level of comfort: spacious rooms, covered verandas, private pool, roof garden and magnificent panoramic views. All houses are equipped with modern engineering solutions, including a smart home system, VRV air conditioning, underfloor heating, solar panels, a water pressure boosting system, a charging station for electric vehicles, an alarm system and energy-efficient LED lighting. The complex is located just five minutes from the sea and is located in a secure residential community, offering residents a high level of security, privacy and quiet. The decoration is made using premium materials, and the full furniture package is available to customers.
№193183
House / Villa
City:
District:
Complex:
3
4
220 m²
200 m²
339 m²
2
07/2026
A
€3,500 / m²
DOM Real Estate
+35726030237








