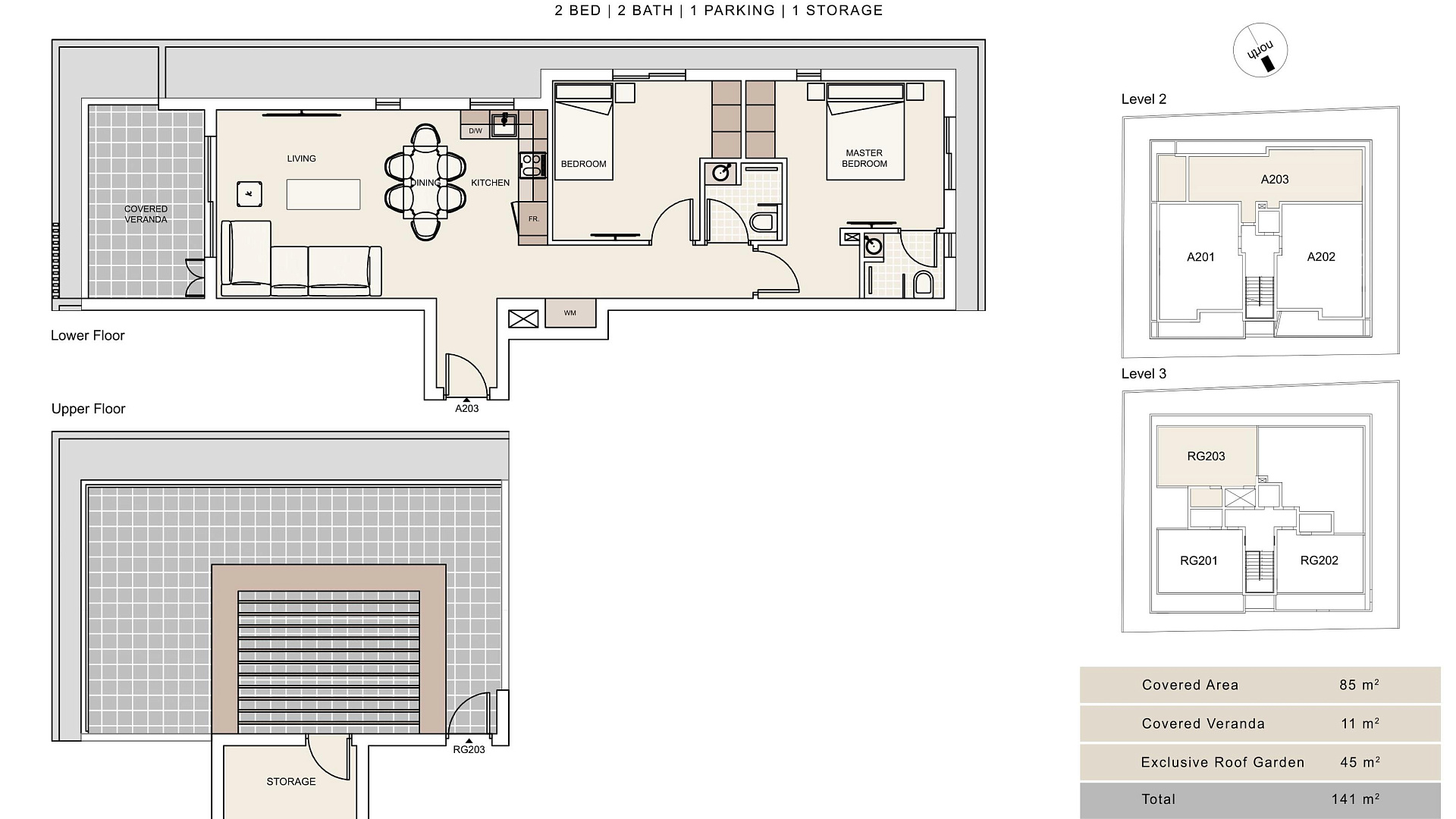
New 2-bedroom flat in Nicosia № 188405
Apartment for sale in Strovolos, Nicosia. The complex consists of six double apartments. Each apartment combines high-end design, finishes and the latest trends using high-quality thermal insulation materials, finishes and plumbing.
The apartments have functional layouts and spacious verandas. A photovoltaic system is installed. Convenient storage rooms and parking spaces are provided for each apartment. Provisions for split A/C units in the kitchen, the living room and the bedrooms, electric panel heaters in the kitchen, the living room and the bedroom.
The residential complex is located in one of the most attractive areas of Agios Vasilios in Strovolos. The proximity to parks, supermarkets, schools, hospitals, shopping malls, etc. makes it one of the most sought-after places. Due to its convenient access to the main avenues and motorways, it is connected to all major transport hubs of the city and beyond.
