New office in Paphos №210430
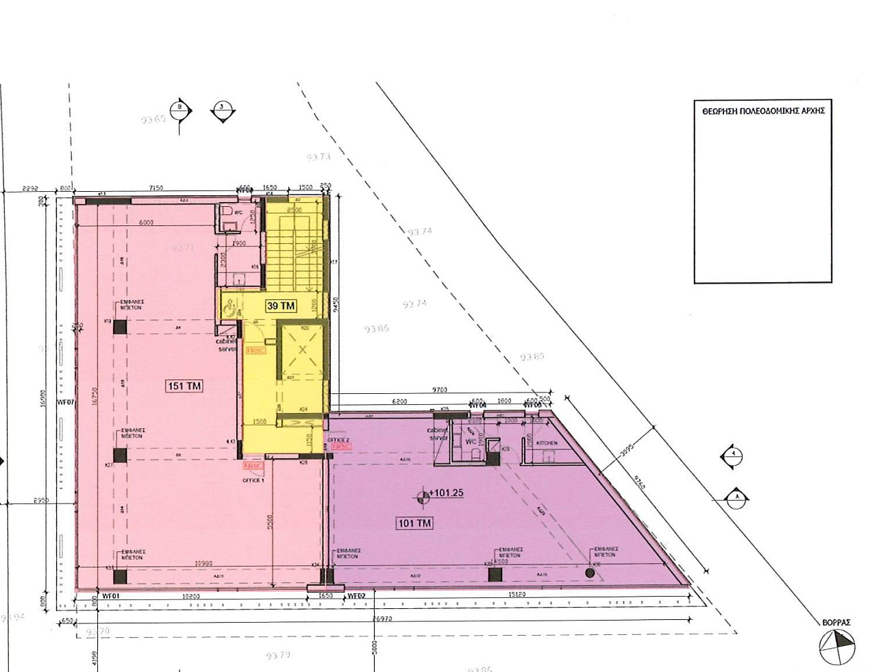
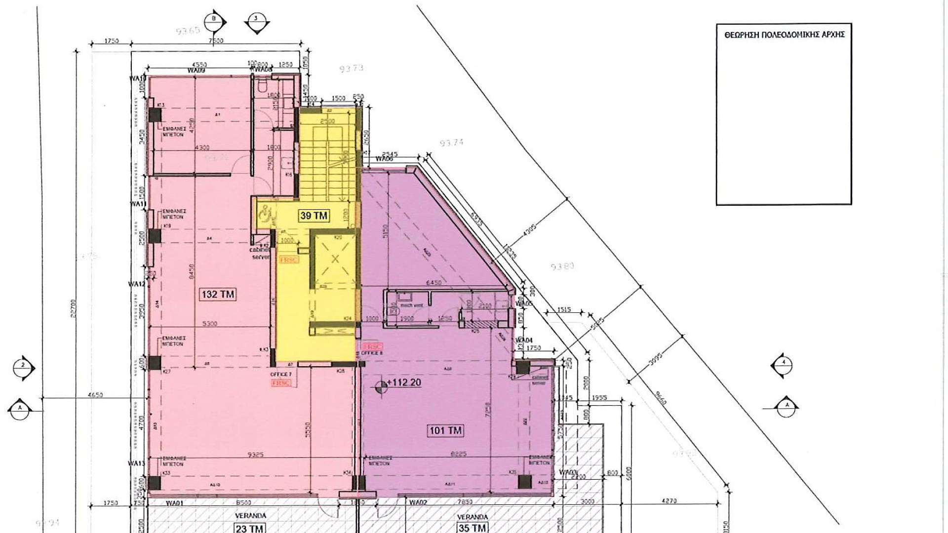
Office space of 150 m2 for rent in the Town Center area, Paphos. The office includes a kitchen, a bathroom and an open workspace, 1 parking space is provided. The office is fully equipped with engineering systems and technologies, including a VRV system for cooling and heating, air conditioners, a raised floor for flexible space organization, a photo voltaic system, energy-efficient aluminum double-glazed windows and professional office lighting. Additionally, the facility features high ceilings and a well-thought-out infrastructure that provides a comfortable and safe working environment. The building is located in the city center and is equipped with modern amenities, including a closed underground parking with access control, guest parking on the ground floor, a video intercom system, video surveillance in all common areas and a fire alarm system.
