
Investment project in Limassol / Historical Center №201687




Additional:
Description:
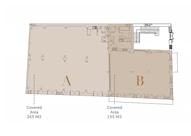
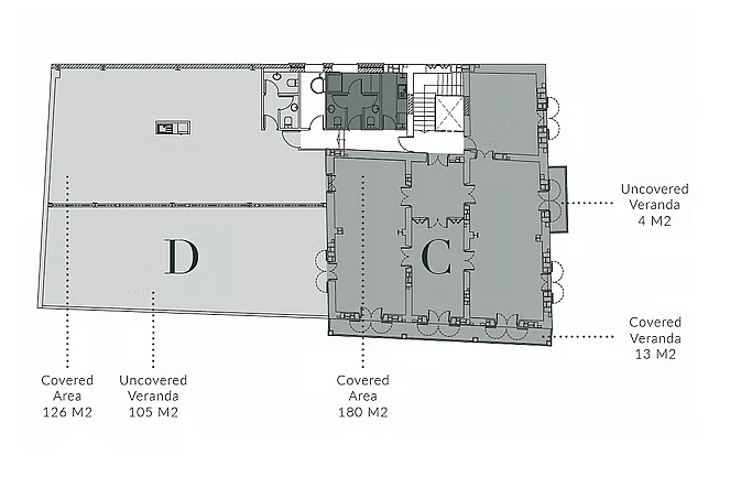
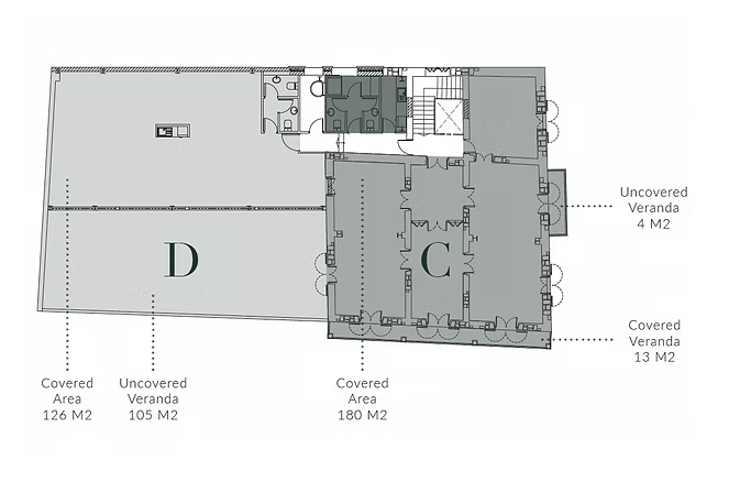
Commercial property for rent with a total covered area of 828 m2 in the area of Old Town Limassol, Historical Center, Limassol. Commercial real estate includes several premises with the possibility of combining or separately renting. On the lower level there are units A and B: unit A with a covered area of 245 m2, unit B with a covered area of 155 m2. Units C and D are located on the upper level: unit C with a covered area of 180 m2, a covered veranda of 13 m2 and an open veranda of 4 m2, unit D with a covered area of 126 m2 and an open veranda of 105 m2. The commercial facility includes 1 kitchen and 3 designated places for kitchens, 2 bathrooms and 3 designated places for bathrooms, the facility occupies 2 levels in the building. The property is under construction, with planned completion in June 2026. The Bookshop is a reconstruction of the iconic historical Listed Building, which previously housed the city's first bookstore. The project provides for a complete restoration of the authentic appearance of the building. There are 10 covered parking spaces and additional ones available. The property is located in the historical center of the city, in the Old Town Limassol area, opposite Saripolou Square and a few minutes from the Limassol coast.
№201687
Commercial
City:
District:
Complex:
828 m²
2
07/2026
250 м
€42 / m²
DOM Real Estate
+357 25 059 361








