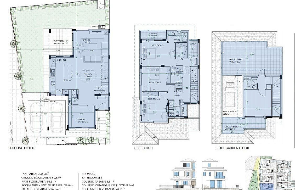
Новая 5-спальная вилла в Ларнаке №213628
Продается современный дом, расположенный в живописном районе Kiti, Dromolaxia, Larnaca. Этот дом – идеальное сочетание удобства, стиля и экономичности. В комплексе всего восемь домов. Проектом предусмотрены кухня и гостиная открытой планировки, 5 спален, крытая веранда и сад на крыше. Сертификат энергоэффективности класса А гарантирует низкие затраты на коммунальные услуги и заботу об окружающей среде.
Расположение дома удобно с точки зрения транспортной доступности. Всего 10 минут до центра Ларнаки. Удобный доступ к автомагистрали, ведущей во все города Кипра, позволяет быстро и легко добраться до любой точки острова. Всего в трех минутах ходьбы расположены необходимые удобства, такие как супермаркет, автозаправочная станция, аптека и киоск. Пляж Маккензи – всего 7 минут езды и в 9 минутах расположена частная английская школа Pascal.
