
New investment project in Limassol / Mesa Geitonia №201112




Additional:
Description:
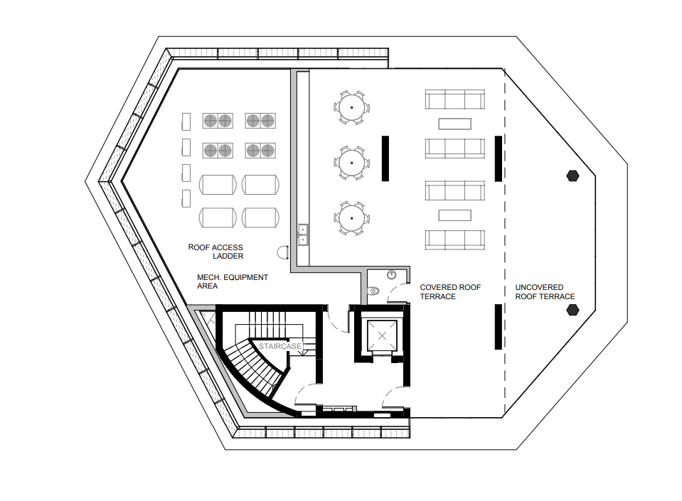
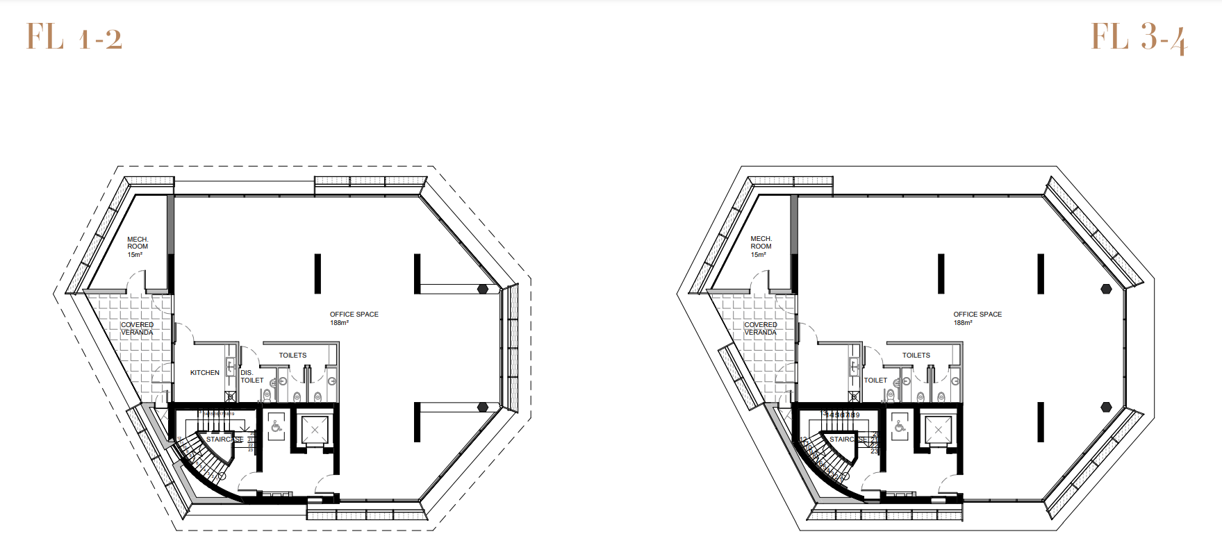
A commercial building for sale in the City Center area, Limassol, designed with all the technologies required by modern business, with an emphasis on sustainability and energy efficiency in both external and internal solutions, which ensures low operating costs and a comfortable working environment, the building is designed to attract first-class, highly qualified employees, the total area of the building is 1904 m2, the total area of office space is 1114 m2, the building consists of seven floors and has 17 parking spaces, a basement and parking on the ground floor, storage rooms, a representative lobby with high-speed elevators serving all floors including the basement and roof, as well as a rooftop veranda, the facility is located in one of the most popular business districts of the city with with convenient access to the main business center, courts, municipal offices, banks, shopping malls, schools and colleges, Limassol Marina, Molos embankment, as well as to the highway and transport network, four office floors are designed in an open-plan format with the possibility of flexible division for individual corporate needs, each floor is autonomous and prepared for accommodation server rooms, floating floors and suspended ceilings, which allows for the introduction of an efficient technological infrastructure, toilets, mini-kitchens and outdoor verandas are conveniently located next to elevator halls and stairwells, the building is a protected and secure property that fully meets the requirements of modern commercial use.
№201112
Commercial
City:
District:
Complex:
1
1,904 m²
7
07/2027
2000 м
DOM Real Estate
+357 25 056 187










