Новый 3-спальный дом в Никосии №201087
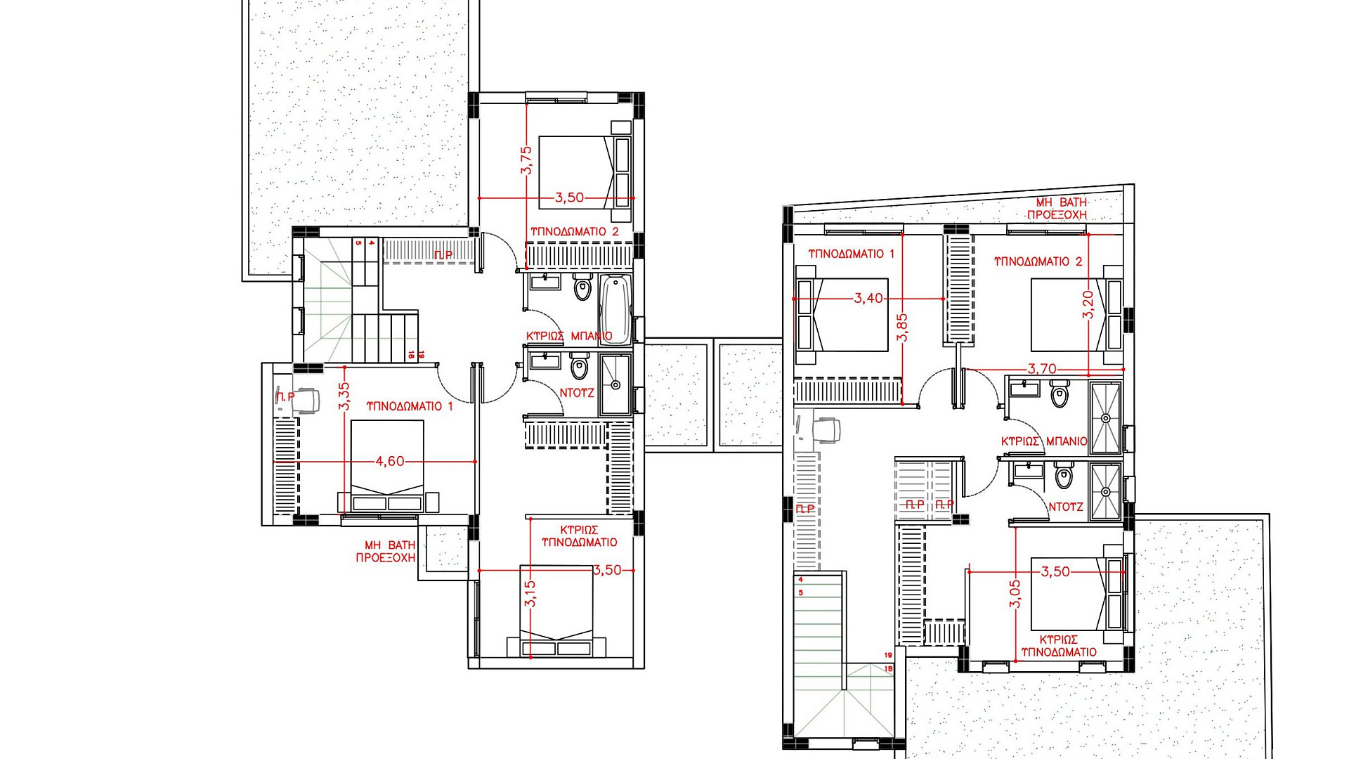
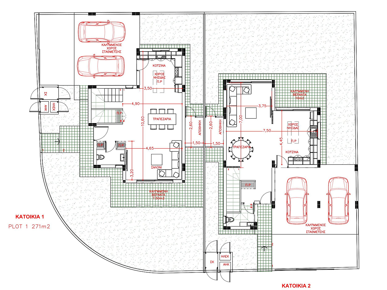
Продаётся дом с 3 спальнями в районе Lakatamia, Nicosia, в составе комплекса из двух отдельных современных домов, расположенного в одном из самых перспективных и востребованных жилых районов. Проект выполнен по биоклиматической концепции с акцентом на энергоэффективность, комфорт и использование естественного освещения. На первом этаже предусмотрена просторная зона open-plan, объединяющая гостиную, столовую и кухню с большими оконными и балконными проёмами, создающими ощущение простора и уюта. Второй этаж предназначен для отдыха и включает светлые спальни, в том числе мастер-спальню с собственной ванной комнатой с душем и гардеробной. Большой двор идеально подходит для отдыха, семейных встреч и барбекю.
Дом оснащён фотоэлектрической системой мощностью 3 кВт, солнечными водонагревателями с рамами, центральным отоплением. Предусмотрены расширительный бак на крыше, два парковочных места, расположенные рядом друг с другом, кладовая. В отделке используются высококачественные материалы, включая керамические покрытия и техногранит на кухонных рабочих поверхностях, с возможностью индивидуального 3D-проектирования кухни на этапе строительства. Также предусмотрены фильтр для воды на кухне, возможность установки мангала, внешней фасадной облицовки (мрамор, HPL или дерево) и освещения зелёных зон участка. Предусмотрена установка кондиционеров, видеодомофона, системы сигнализации и камер видеонаблюдения, а также интеллектуального термостата с возможностью управления с мобильного телефона.
Дом расположен в тихом, новом районе без многоэтажной застройки, в окружении зелёных зон и парков, при этом всего в нескольких минутах от Lidl, Alpha Mega и новой кольцевой дороги, что делает его отличным вариантом как для комфортного семейного проживания, так и для надёжной долгосрочной инвестиции.
