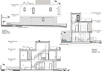
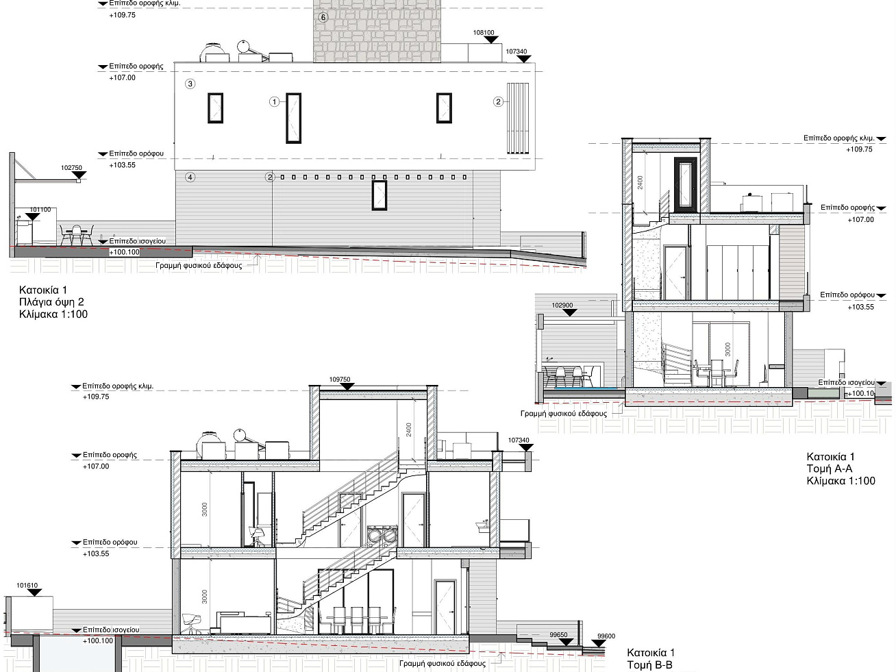
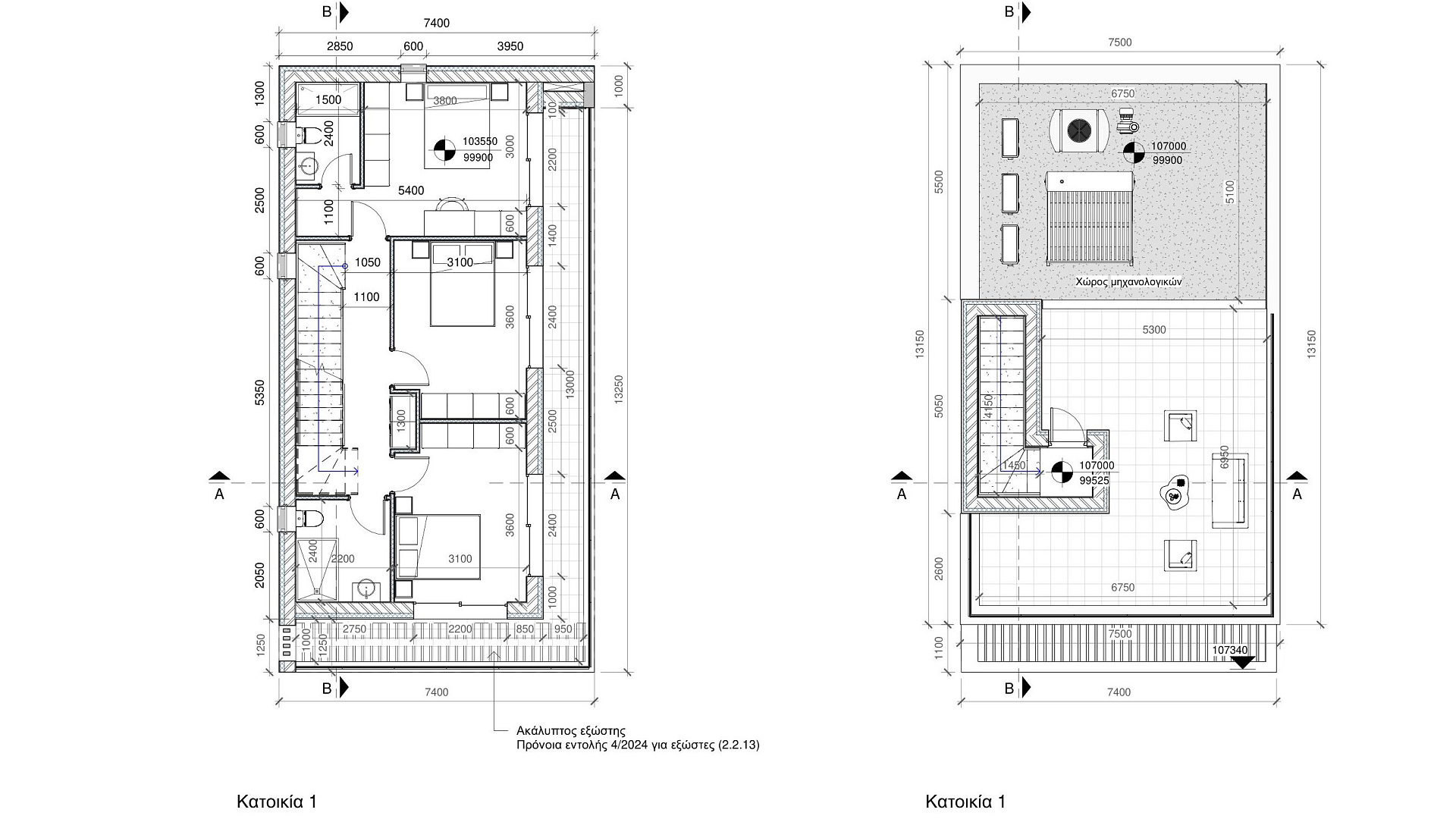
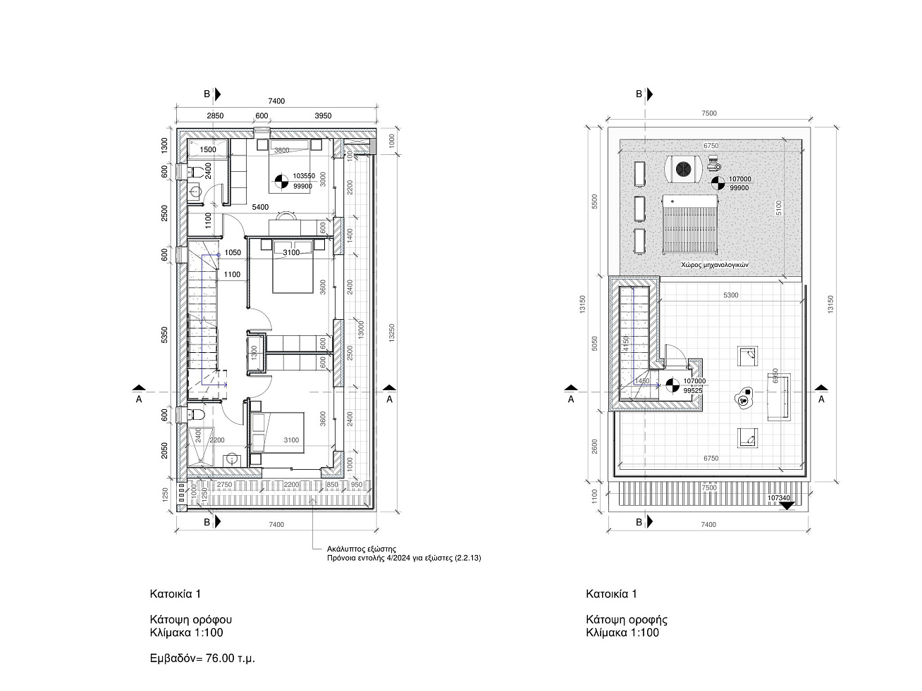
Новая 3-спальная вилла в Пафосе №213145
Продаётся современный дом в районе Ayia Marinouda, Paphos — отличный вариант для комфортного проживания или выгодной инвестиции. Объект расположен в престижной локации с потрясающими видами на море.
Проект включает виллы с 3 и 4 спальнями, выполненные с акцентом на комфорт и современный стиль. Каждый дом оснащён частной террасой на крыше (roof garden), идеально подходящей для отдыха и наслаждения видами.
Виллы оборудованы системой подогрева пола, VRF-системой кондиционирования и соответствуют классу энергоэффективности A, что обеспечивает высокий уровень комфорта и экономию энергии. Также предусмотрена подготовка для зарядки электромобилей.
Благодаря удобному расположению, обеспечивается быстрый доступ к школам, гольф-полям, аэропорту и всей необходимой инфраструктуре, что делает данный объект идеальным выбором как для проживания, так и для инвестиции.
