Новая 3-спальная вилла в Пафосе №213133
Дополнительно:
Новостройка
Кондиционер
Отопление
Парковка
Описание:
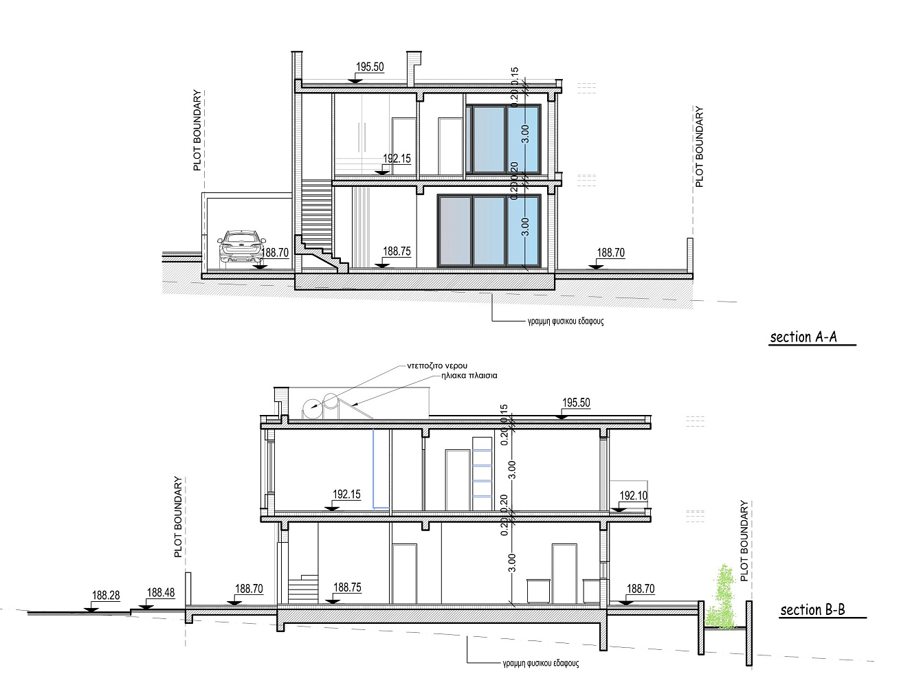
Продаётся современный дом в районе Konia, Paphos — отличный вариант для комфортного проживания или выгодной инвестиции. Объект расположен в престижной локации с удобным доступом ко всей необходимой инфраструктуре. Дом оснащён системой подогрева пола, VRF системой кондиционирования и соответствует классу энергоэффективности A, что обеспечивает максимальный комфорт и экономию энергии в течение всего года. Благодаря удобному расположению, обеспечивается быстрый доступ к автомагистрали, международному аэропорту Пафоса, пляжам, школам и местным удобствам, что делает данный объект идеальным выбором как для проживания, так и для инвестиции.
Читать далее
Объект
№213133
Тип:
Вилла / Дом
Город:
Район:
Комплекс:
Застройщик:
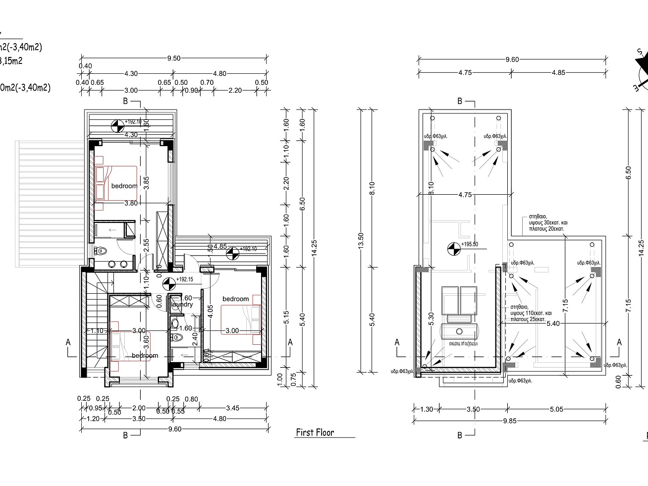
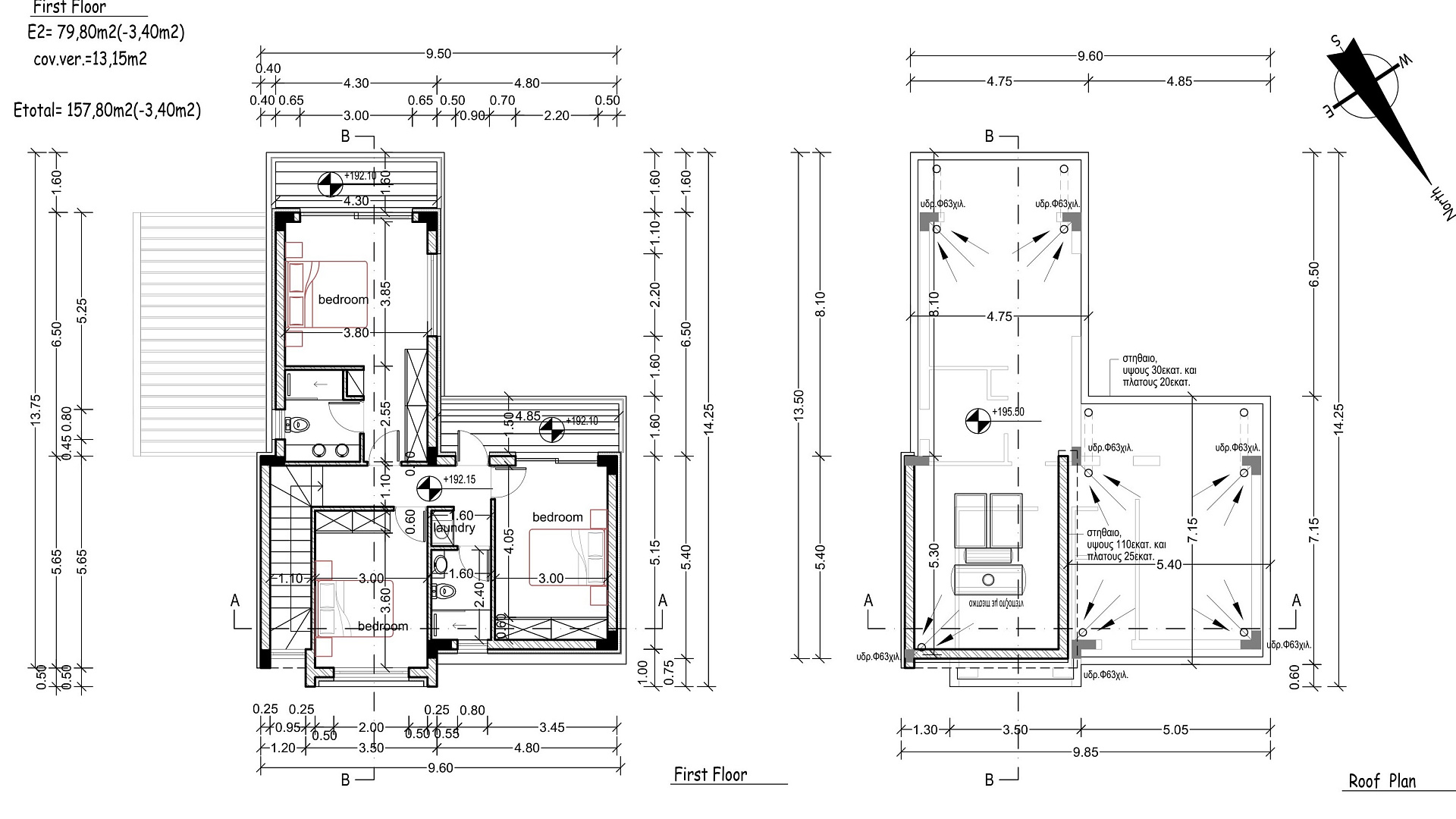
Кол-во спален:
3
Ванных комнат:
3
Общая площадь:
186 м2
Жилая площадь:
158 м2
Площадь участка:
331 м2
Этажность:
2
Год постройки:
06/2028
Расстояние до моря:
5150 м
Класс энергоэффективности:
A
700 000 EUR
+ VAT
700000
3 763
EUR/м2
Записаться на просмотр
Похожие предложения
6381 объект
Показать все
Ранее просмотренные объекты
5 объектов
Показать все
Интересное
