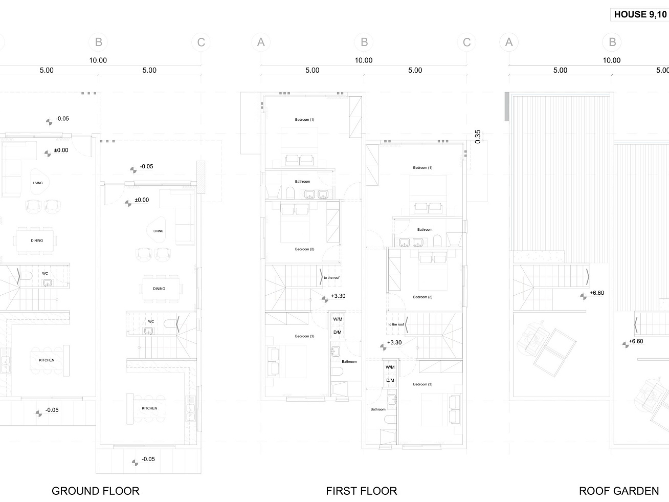
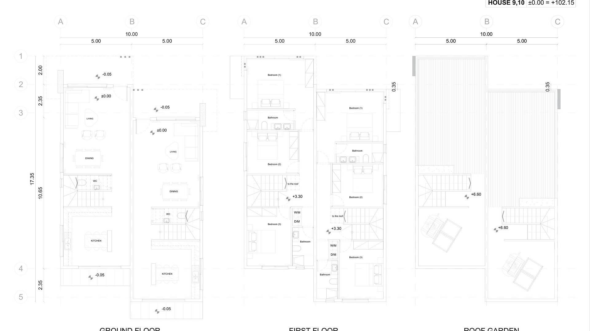
Новый 3-спальный дом в Пафосе №212415
Продаётся современный дом в районе Chlorakas, Paphos — отличный вариант для комфортного проживания или выгодной инвестиции. Объект расположен в спокойном и востребованном районе, всего в нескольких минутах от моря и с удобным доступом ко всей необходимой инфраструктуре. Дом выполнен в современном архитектурном стиле с продуманной планировкой, включающей просторную гостиную, кухню открытого типа и светлые спальни, создавая комфортное и функциональное пространство для жизни. В строительстве используются высококачественные материалы и современные технологии, обеспечивающие высокий уровень комфорта и энергоэффективности. На территории предусмотрена частная придомовая зона, парковочное место и пространство для отдыха, с возможностью обустройства сада или зоны барбекю. Благодаря удачному расположению, современному дизайну и высокому качеству строительства, этот дом является отличным выбором как для проживания, так и для инвестиции.
