Новая 3-спальная вилла в Пафосе №200168
Дополнительно:
Новостройка
Парковка
Описание:
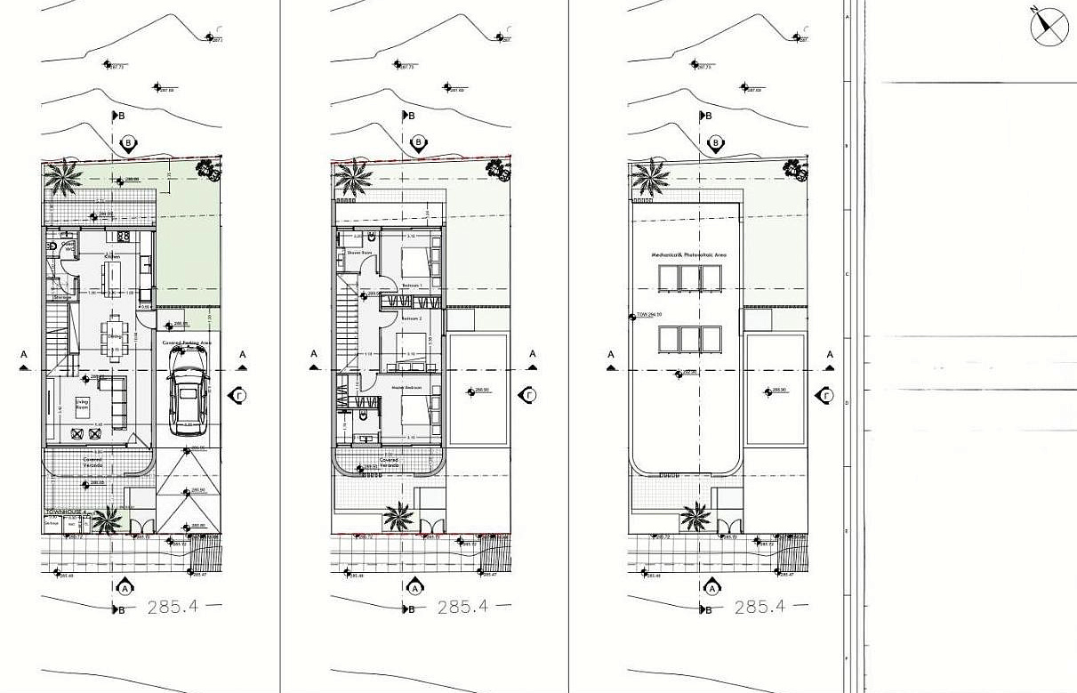
Продается современный просторный трехспальный дом в районе Mesogi, Paphos. Дом расположен на участке площадью 184 м2. Внутреннее пространство дома, площадью 129 м2 переходит в уютные веранды крытую и некрытую.
Дом оснащен современными системами кондиционирования и отопления, гарантирующими комфортный микроклимат в любое время года. При строительстве и отделке использовались только высококачественные материалы, что гарантирует долговечность и безупречный внешний вид.
Теплоизоляционный фасад толщиной 8 см, теплоизолированные двери и окна, а также фотоэлектрическая система мощностью 5 кВ обеспечивают высокую энергоэффективность и снижают затраты на коммунальные услуги. Для автомобиля имеется парковка.
Читать далее
Объект
№200168
Тип:
Вилла / Дом
Город:
Район:
Комплекс:
Застройщик:
Кол-во спален:
3
Ванных комнат:
3
Общая площадь:
163 м2
Жилая площадь:
129 м2
Площадь участка:
184 м2
Этажность:
2
Год постройки:
05/2027
Расстояние до моря:
5200 м
Класс энергоэффективности:
A
570 000 EUR
+ VAT
570000
3 497
EUR/м2
Записаться на просмотр
Похожие предложения
6714 объектов
Показать все
Ранее просмотренные объекты
Интересное
