Новая 2-спальная квартира в Ларнаке №196926
Дополнительно:
Новостройка
Парковка
Лифт
Описание:
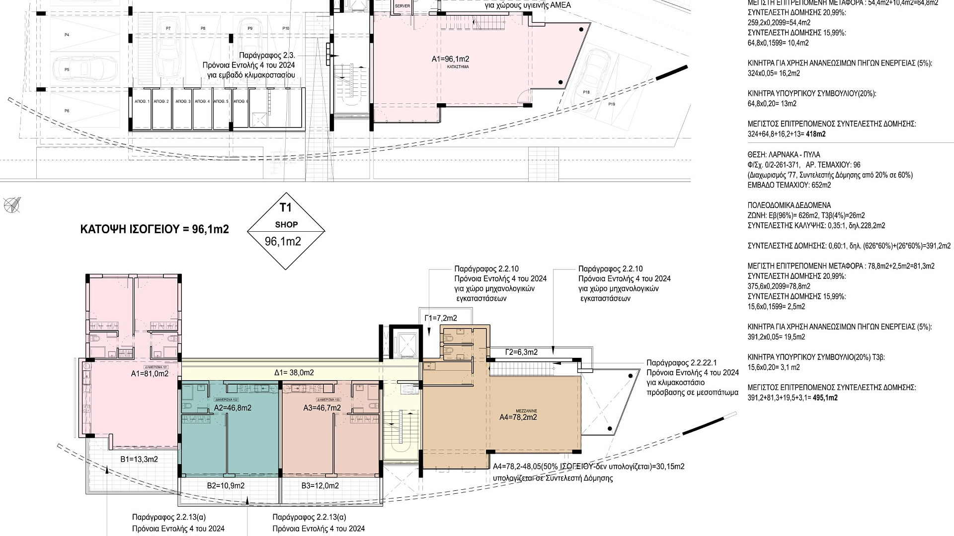
Продаётся квартира в районе Dhekelia, Larnaca. Современный жилой комплекс расположен в одном из самых престижных туристических районов Ларнаки, всего в 300 метрах от пляжа с Голубым флагом. Проект сочетает современную архитектуру, функциональные планировки и уникальное расположение рядом с морем, кафе, ресторанами и всеми необходимыми удобствами. Комплекс состоит из современных квартир с одной, двумя и тремя спальнями, каждая из которых имеет частное крытое парковочное место и возможность установки зарядной станции для электромобиля.
Читать далее
Объект
№196926
Тип:
Квартира / Апартаменты
Город:
Район:
Комплекс:
Застройщик:
Кол-во спален:
2
Ванных комнат:
2
Общая площадь:
102 м2
Жилая площадь:
81 м2
Этажность:
3
Этаж:
1
Год постройки:
12/2027
Расстояние до моря:
300 м
Класс энергоэффективности:
A
395 000 EUR
+ VAT
395000
3 873
EUR/м2
Записаться на просмотр
Похожие предложения
11833 объекта
Показать все
Ранее просмотренные объекты
Интересное
