Новая 2-спальная квартира в Лимассоле №179273
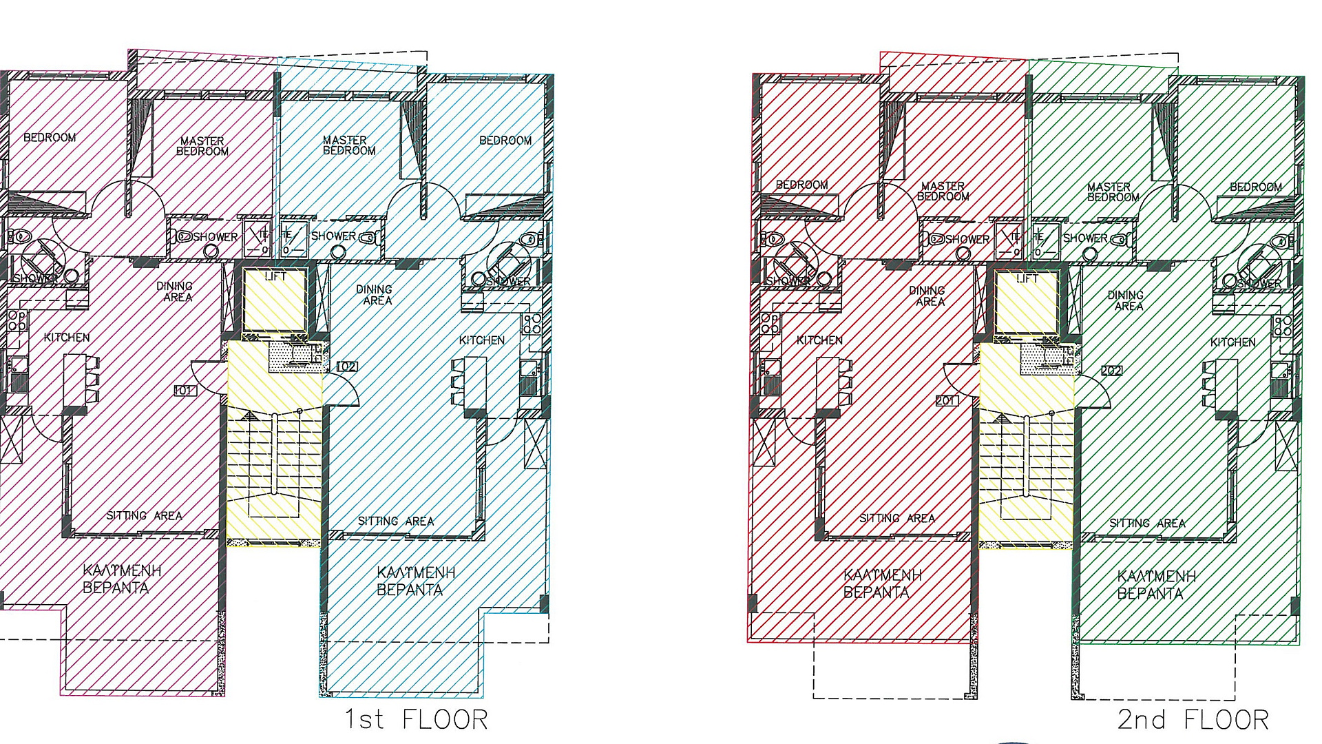
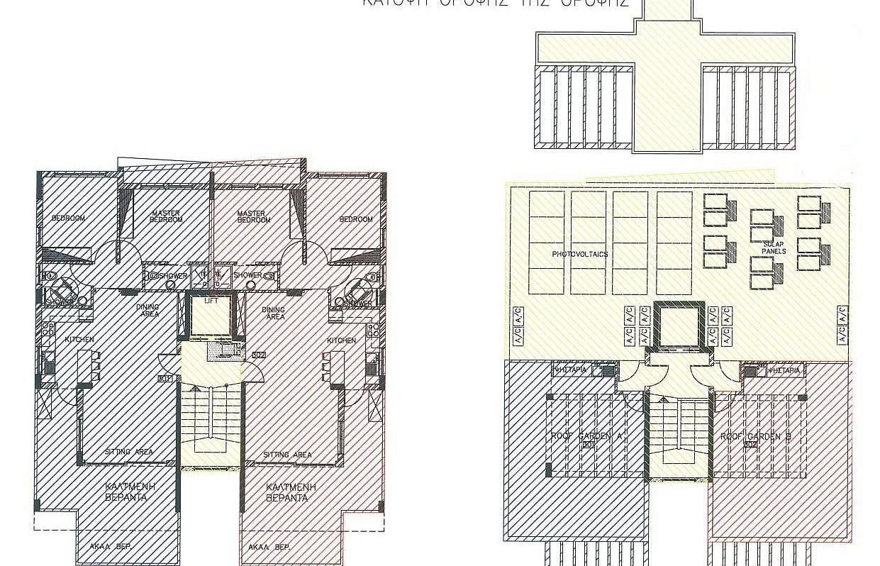
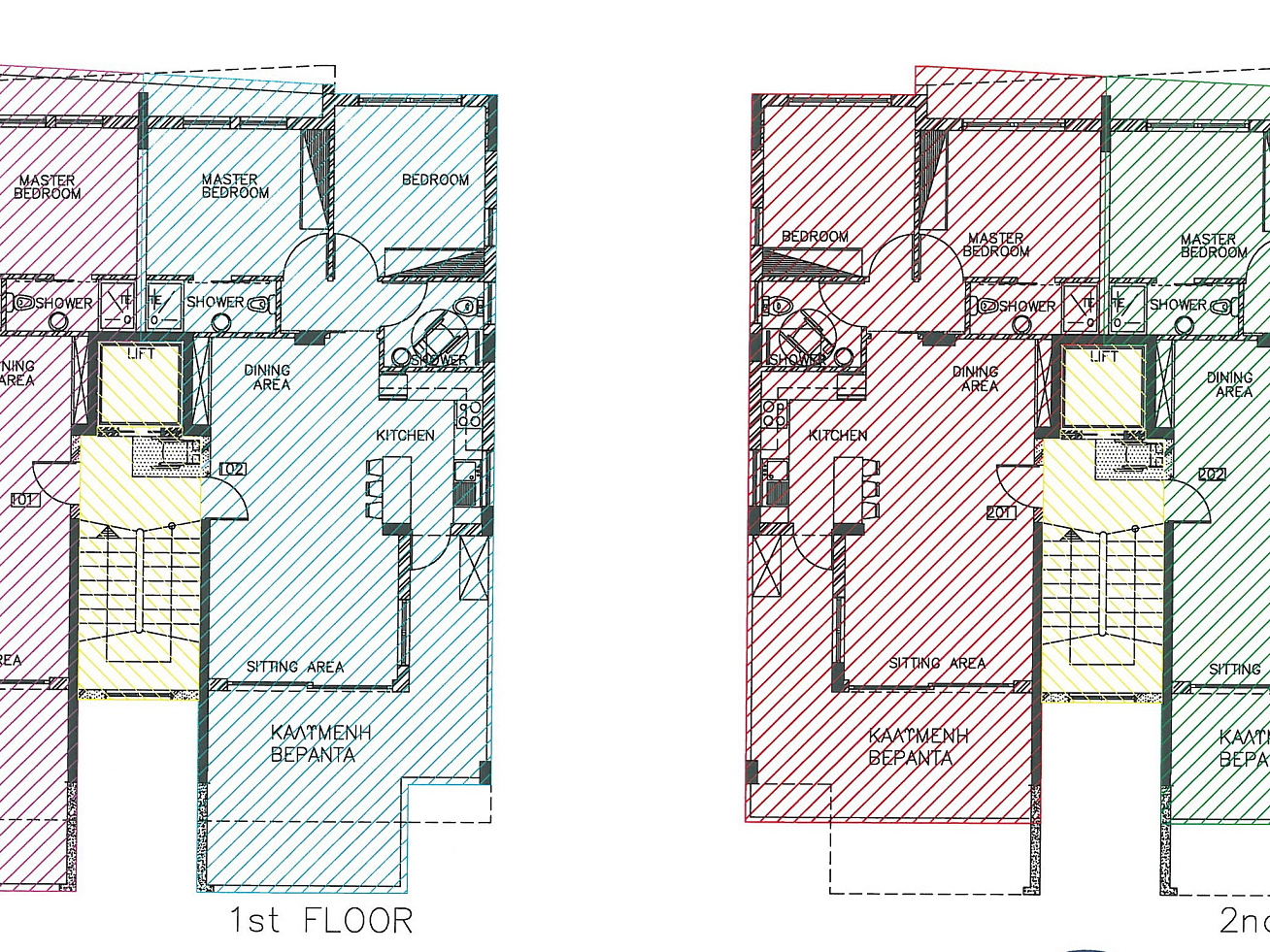
Продается квартира в новом современном жилом комплексе в районе Ekali, Limassol. Апартаменты расположены на 3 этажах. Квартира сочетает в себе высококлассный дизайн, отделку и последние тенденции с использованием высококачественных материалов и сантехники.
Каждая квартира в комплексе спроектирована с учетом максимального комфорта. В проекте предусмотрена гостиная и кухня открытой планировки, а также крытая веранда. Кроме того, имеется крытая парковка и индивидуальная кладовая.
Экали отличается близостью не только к центру Лимассола, но и к другим районам. Это обеспечивает доступ ко всем локациям. При всей близости инфраструктуры, здесь очень тихо. Расположение на возвышенности обеспечивает отличный вид на город и на море. До пляжей отсюда можно добраться за 10 минут. Идеальный выбор как для проживания, так и для инвестиций.
Проект находится в стадии off-plan.
