
New office in Nicosia / Agios Andreas №197582




8
Additional:
Elevator
Parking
Description:
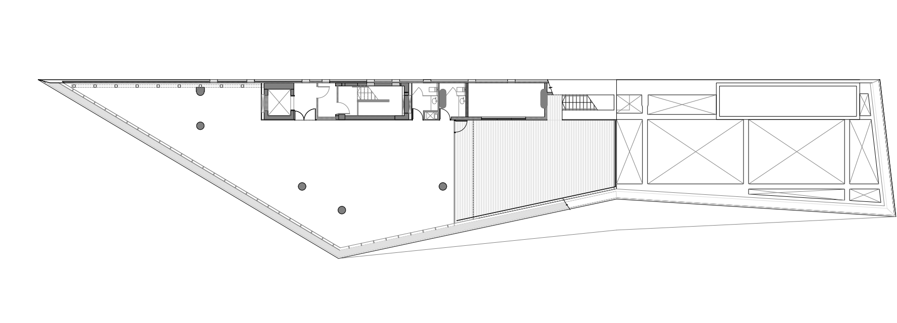
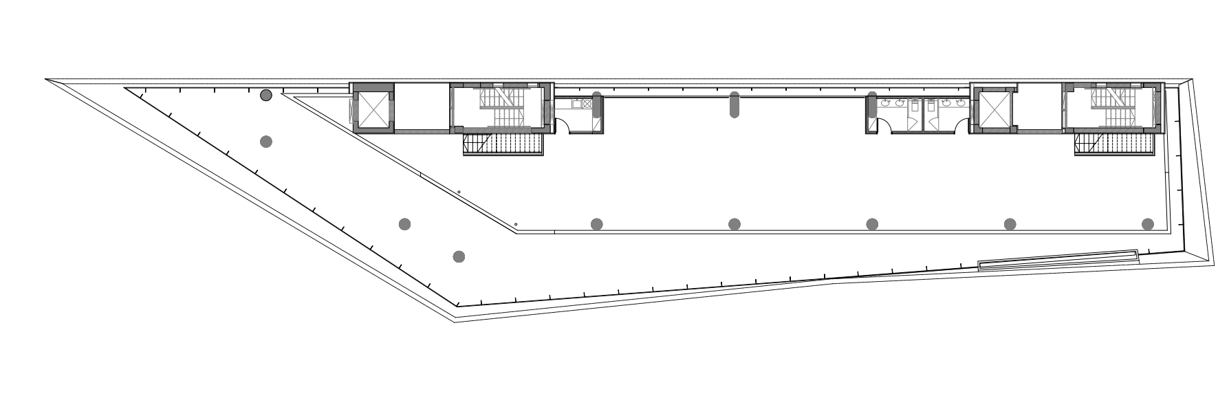
Office for sale in the area of Agios Andreas, Nicosia. The project is the result of a closed architectural competition and is a modern building reflecting the architects' philosophy and taking into account the spatial parameters characteristic of the area, while remaining hyperlocal in its architectural resonance. The project is being implemented by a reliable developer known for creating some of the best commercial facilities in the capital.
Object
№197582
Type:
Commercial
City:
District:
Complex:
Developer:
Bathrooms:
1
Total area:
266 m²
Floor:
7
Floors:
7
Construction year:
07/2026
Energy class:
A
€1,700,000+ VAT
€6,391 / m²
DOM Real Estate
+357 25 056 478




