New 3-bedroom villa in Paphos № 197138
Additional:
Gated complex
New building
Pool
Air Conditioner
Heating
Parking
Storage
Description:
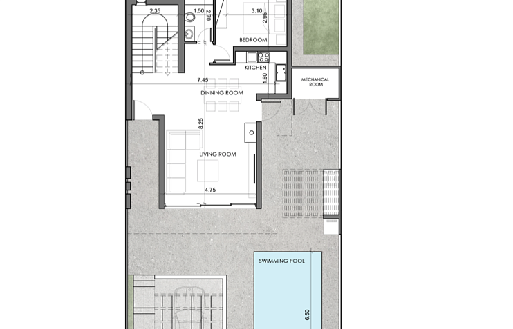
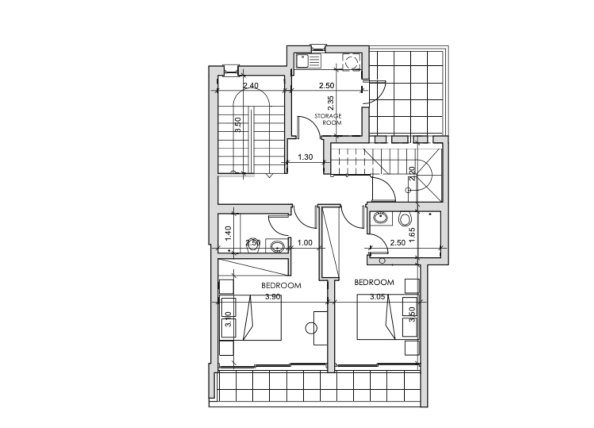
For sale 3 bedroom villa under construction in the area of Kissonerga, Paphos. The villa is located within walking distance to the beach, supermarket and bus stop. Each villa, at the request of the owner, will have its own swimming pool, fireplace. Furniture and appliances are not included in the price. Each bedroom window will have a sea view. There will be only 12 villas in the complex. Only modern materials are used for construction.
Read more
Object
№197138
Type:
House / Villa
City:
District:
Complex:
Developer:
Bedrooms:
3
Bathrooms:
3
Total area:
315 m2
Indoor area:
160 m2
Land area:
271 m2
Storey:
2
Year of construction:
06/2026
Distance to the sea:
1000 m
Energy efficiency class:
A
690 000 EUR
+ VAT
690000
2 190
EUR/m2
Schedule a viewing
Similar offers
6098 objects
Show all
Interesting
