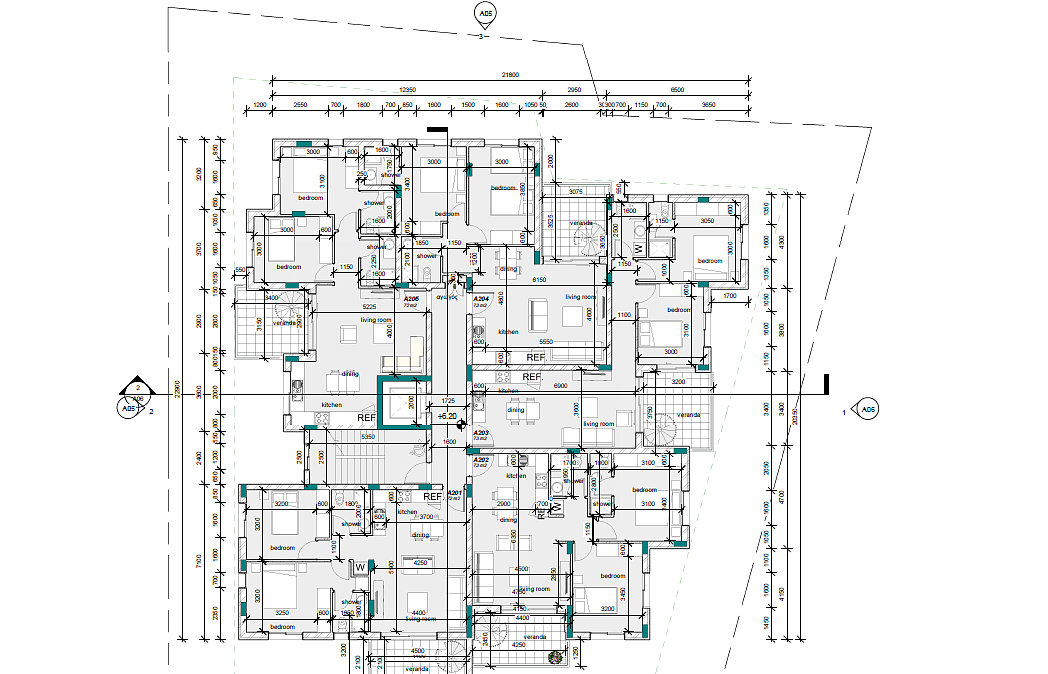
Новая 2-спальная квартира в Ларнаке №213436
Продается квартир в районе Oroklini, Larnaca. Это современный проект, сочетающий качество строительства, комфорт и энергоэффективность. Комплекс возведён с использованием прочных и экологичных материалов, обеспечивающих надёжную тепло- и звукоизоляцию. Квартиры отличаются продуманными планировками, просторными комнатами, современными ванными и стильными кухнями с термостойкими столешницами. В зданиях установлены алюминиевые окна с термоизоляцией и солнечные системы водонагрева, что обеспечивает комфорт и экономию энергии. Для удобства жителей предусмотрены крытые парковочные места. Комплекс расположен в спокойном и зелёном районе Ороклини, недалеко от моря и всей необходимой инфраструктуры, что делает его идеальным выбором для постоянного проживания или выгодных инвестиций.
