Новый 3-спальный дом в Фамагусте №209632
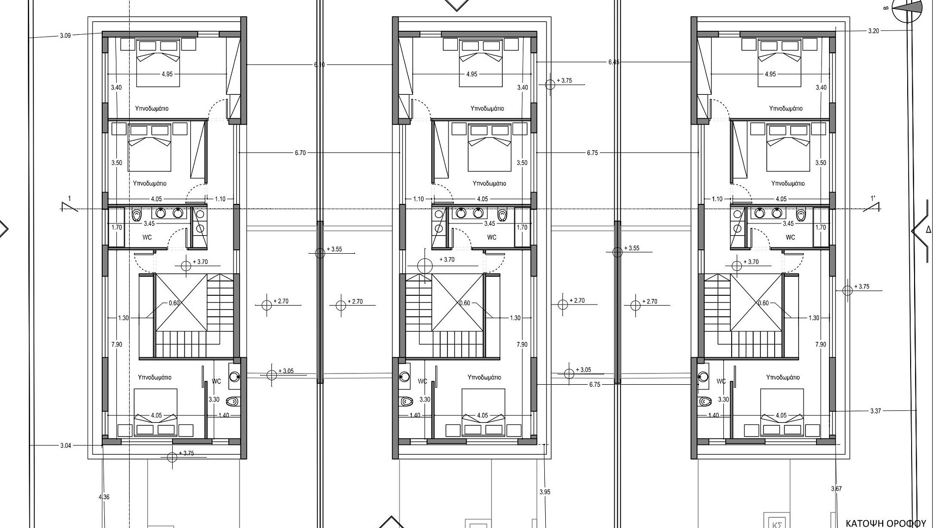
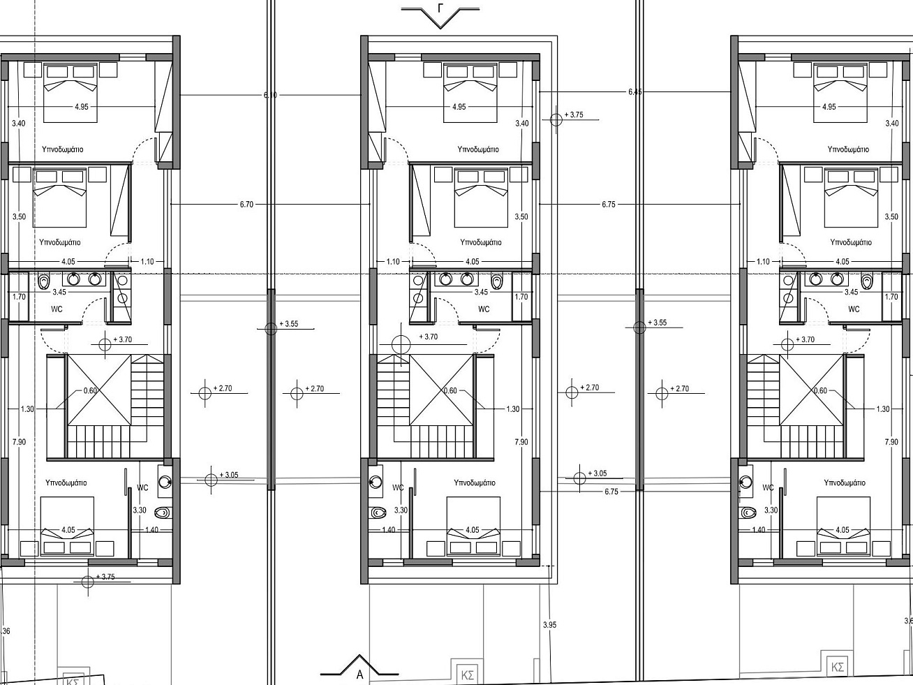
Продаётся таунхаус с тремя спальнями в новом жилом комплексе в районе Deryneia, Famagusta, который сочетает в себе комфорт, уединение и удобство. Дом спроектирован с усиленными стенами между секциями, что обеспечивает отличную звуко- и термоизоляцию, создавая спокойную и уютную атмосферу для проживания.
Объект расположен в пешей доступности от государственной начальной школы, что делает его особенно удобным для семей с детьми. Рядом находится фермерский рынок с широким выбором свежих продуктов и местных товаров. Ветеринарная клиника поблизости обеспечивает доступ к медицинскому обслуживанию домашних животных. Любители спорта оценят близость к футбольному стадиону, а школьники — к средней школе. В шаговой доступности расположены различные рестораны, кафе и другие удобства, обеспечивающие комфортную повседневную жизнь.
Дом сертифицирован с классом энергоэффективности A, что способствует снижению затрат на электроэнергию и минимальному воздействию на окружающую среду. Также предусмотрена крытая парковка. На крыше установлена фотогальваническая система, позволяющая использовать возобновляемую энергию и снижать расходы на электричество. Окна с двойным термостеклопакетом способствуют отличной тепло- и шумоизоляции. Конструкция выполнена из термостойкого алюминия, что обеспечивает прочность и высокую энергоэффективность. Кухня оборудована стильными и прочными поверхностями из техногранита, удачно сочетающими функциональность и современный дизайн.
