Фото 1
Заявка на подбор

Новая 1-спальная квартира в Никосии №204599

204599
https://dom.com.cy/upload/uf/56a/eiuaqjyz5vsaf02coz05t4lhqq1z8a17.JPG
Дополнительно:
Новостройка
Парковка
Кладовая
Лифт
Описание:

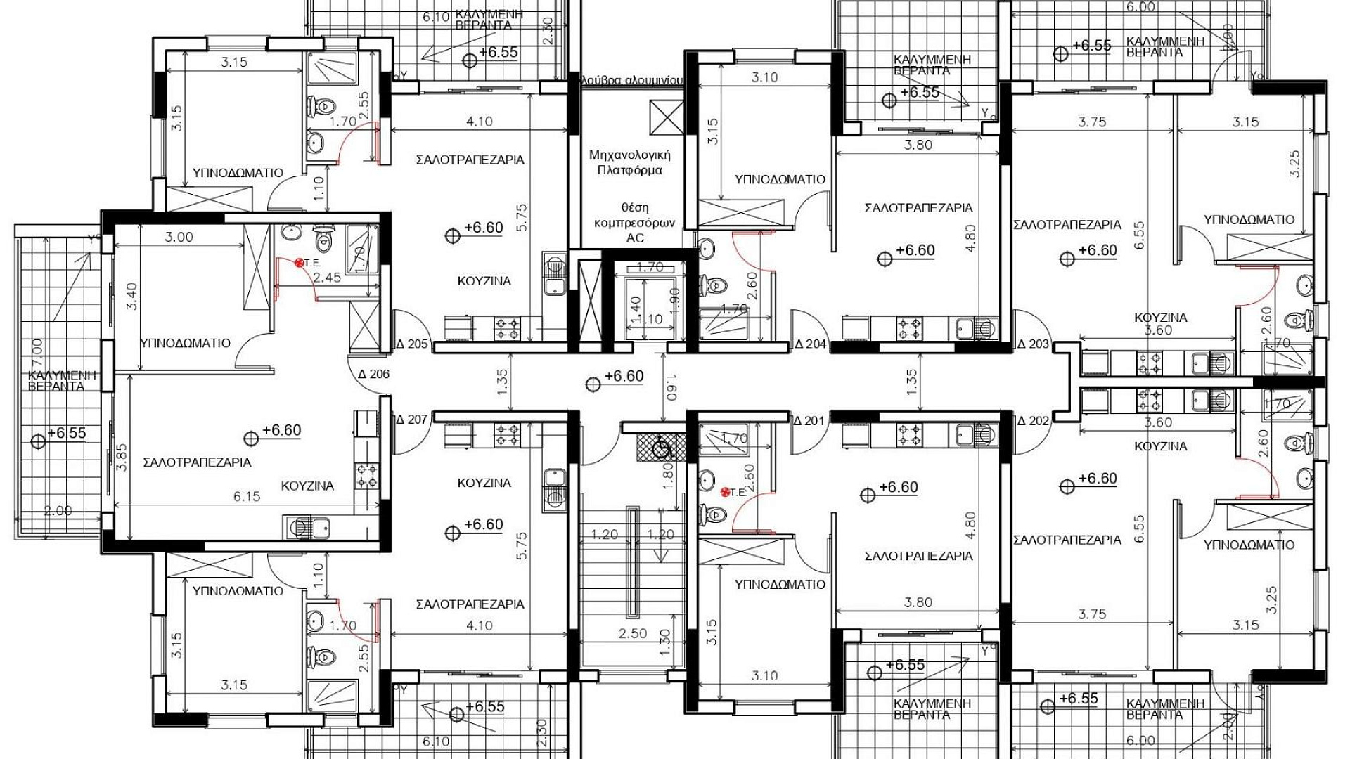
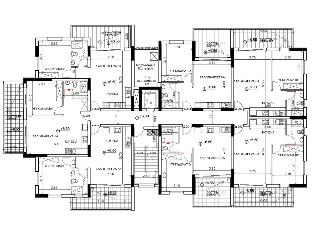
Продаётся современная квартира в районе Strovolos, Nicosia, расположенная в новом жилом комплексе, состоящем из 6 этажей с апартаментами с одной спальней. Объект находится в удобном месте с лёгким доступом ко всей городской инфраструктуре, услугам и магазинам. Квартира отличается функциональной планировкой, качественными керамическими напольными покрытиями, алюминиевыми окнами с двойным остеклением, встроенными шкафами и современной кухней. Предусмотрены солнечная система нагрева воды, подготовка для установки кондиционеров, парковочное место и кладовое помещение. Отличный вариант как для комфортного проживания, так и для инвестиции в одном из востребованных районов Никосии.

Читать далее
Объект
№204599
Тип:
Квартира / Апартаменты
Город:
Район:
Комплекс:
Застройщик:
Кол-во спален:
1
Ванных комнат:
1
Общая площадь:
56 м2
Жилая площадь:
45 м2
Этажность:
6
Этаж:
2
Год постройки:
02/2028
Класс энергоэффективности:
A
150 000 EUR + VAT
2 679 EUR/м2
2026-05-27T03:37
204599
Записаться на просмотр
Поделиться:
Похожие предложения
3775 объектов Показать все
https://dom.com.cy/upload/resize_cache/uf/ef1/1088_820_2/2gwunmy6diolph5abrzpsjai874kx460.jpeg
№ 213365
Площадь: 67 м2
Спален: 1
135 000 EUR+VAT
2 015 EUR/м2
https://dom.com.cy/upload/resize_cache/uf/a3b/1088_820_2/rwoy8078imrsl1k23541f42azfn05sqe.jpeg
№ 213363
Площадь: 62 м2
Спален: 1
128 000 EUR+VAT
2 065 EUR/м2
https://dom.com.cy/upload/resize_cache/uf/f1d/1088_820_2/miyj5ln4v4fjo6dqstxlatoqyrz513em.jpg
№ 213329
Площадь: 65 м2
Спален: 1
105 000 EUR+VAT
1 615 EUR/м2
https://dom.com.cy/upload/uf/9bf/1qepsucygazpxms0h23jkxti9v3oeok8.jpg
№ 213328
Площадь: 62 м2
Спален: 1
132 000 EUR+VAT
2 129 EUR/м2
Интересное