Новая 4-спальная вилла в Лимассоле №197278
Дополнительно:
Новостройка
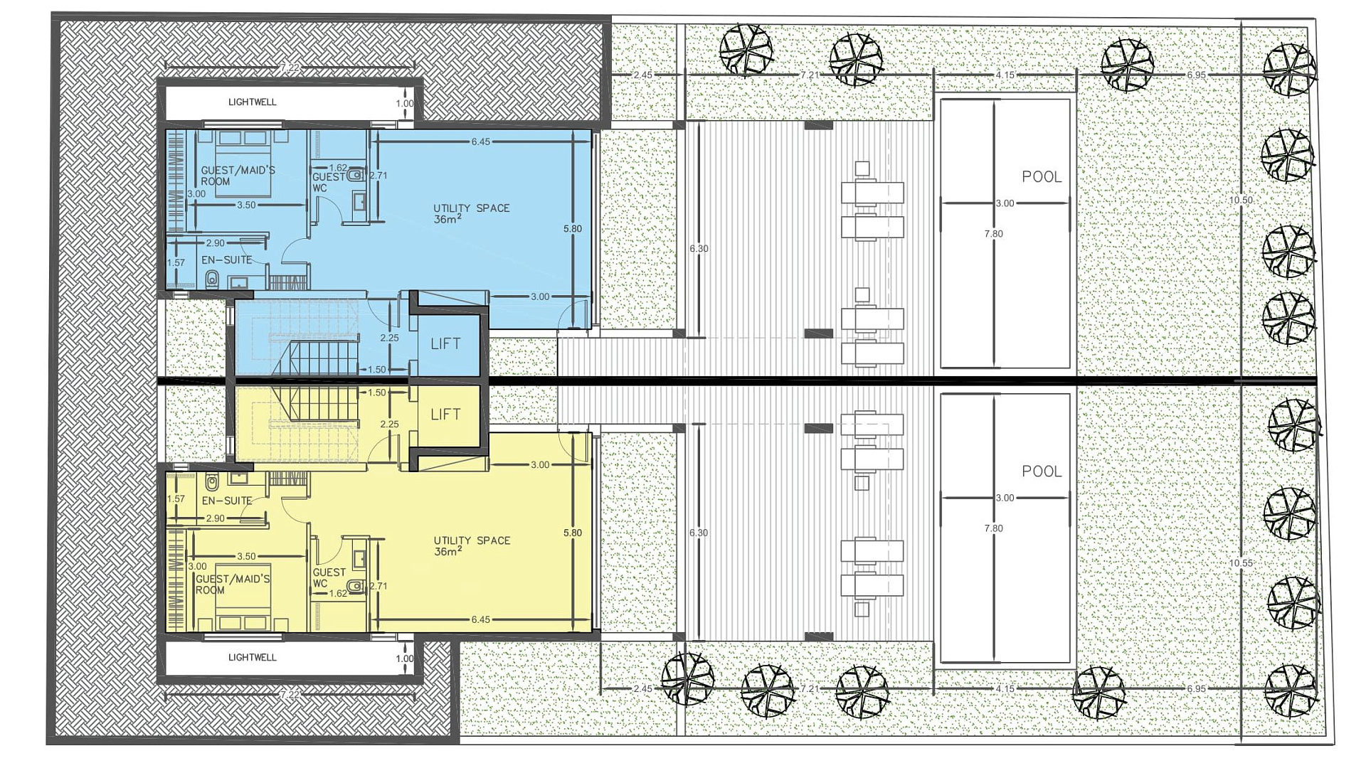
Бассейн
Кондиционер
Отопление
Парковка
Лифт
Описание:
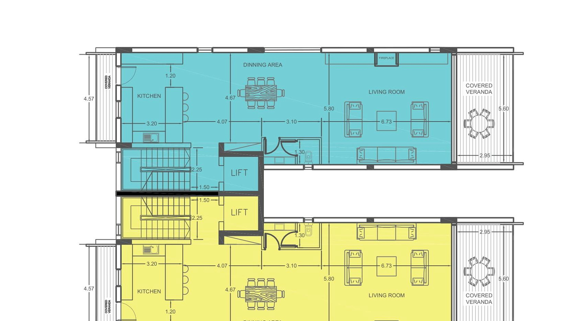
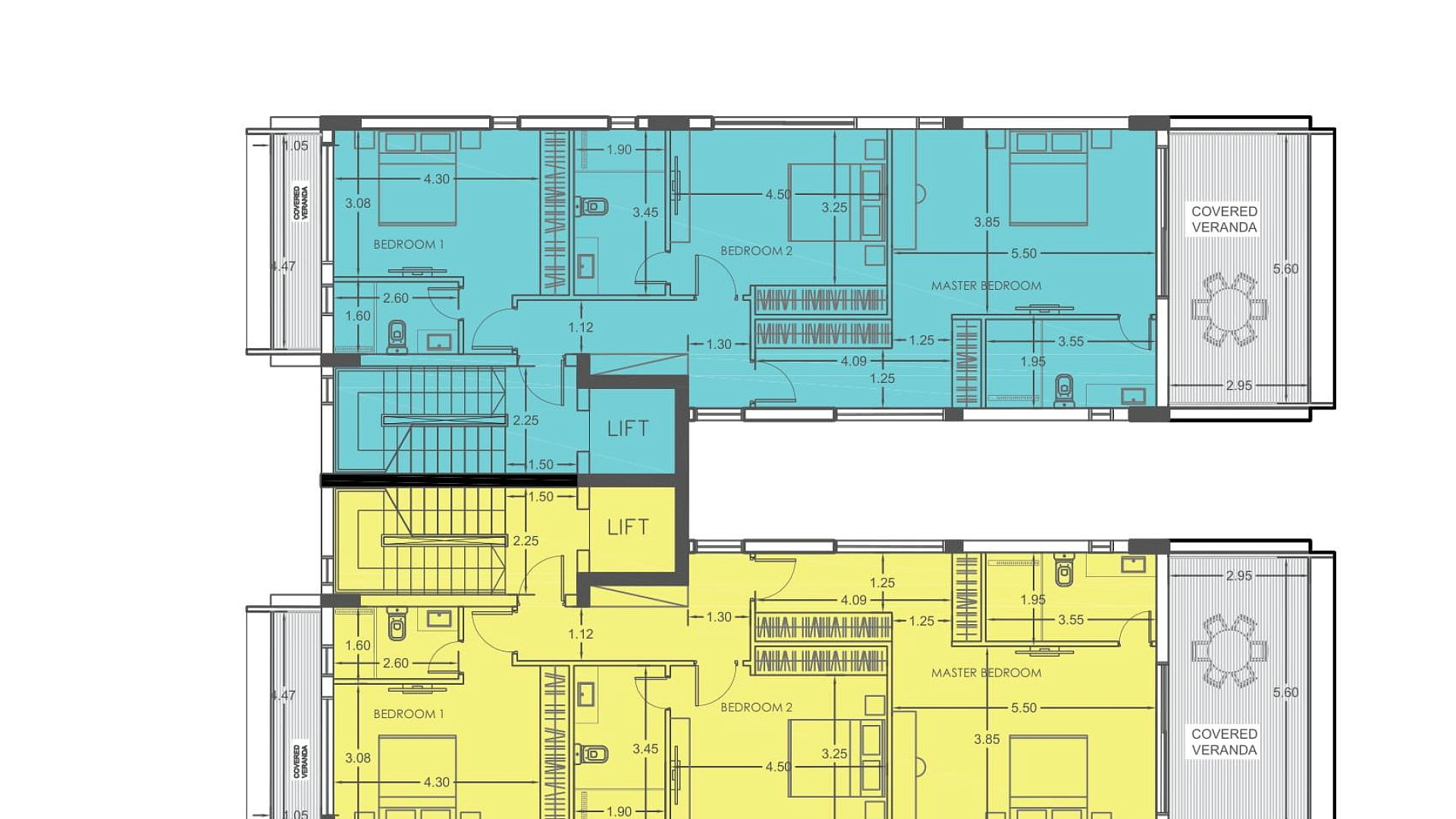
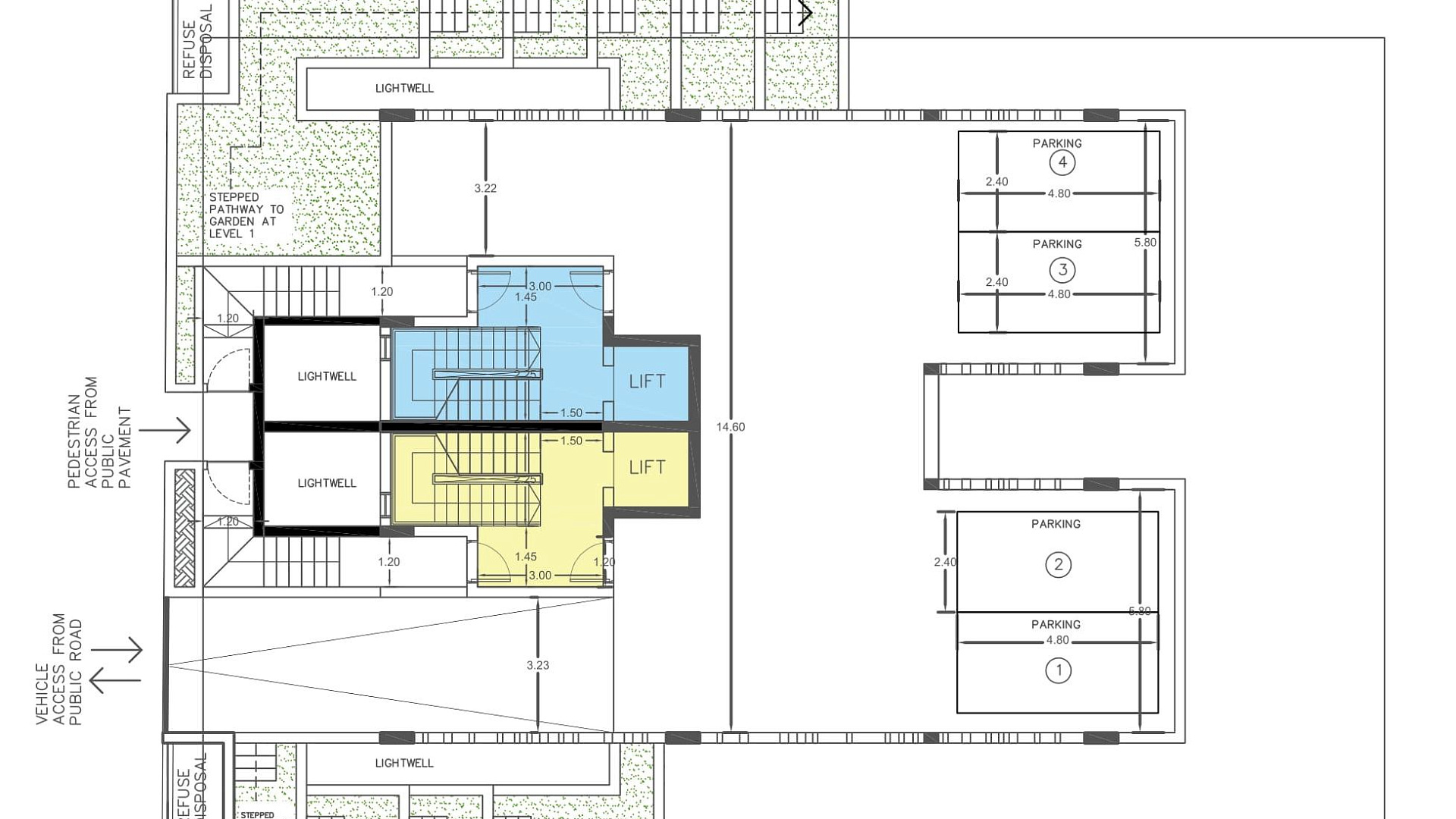
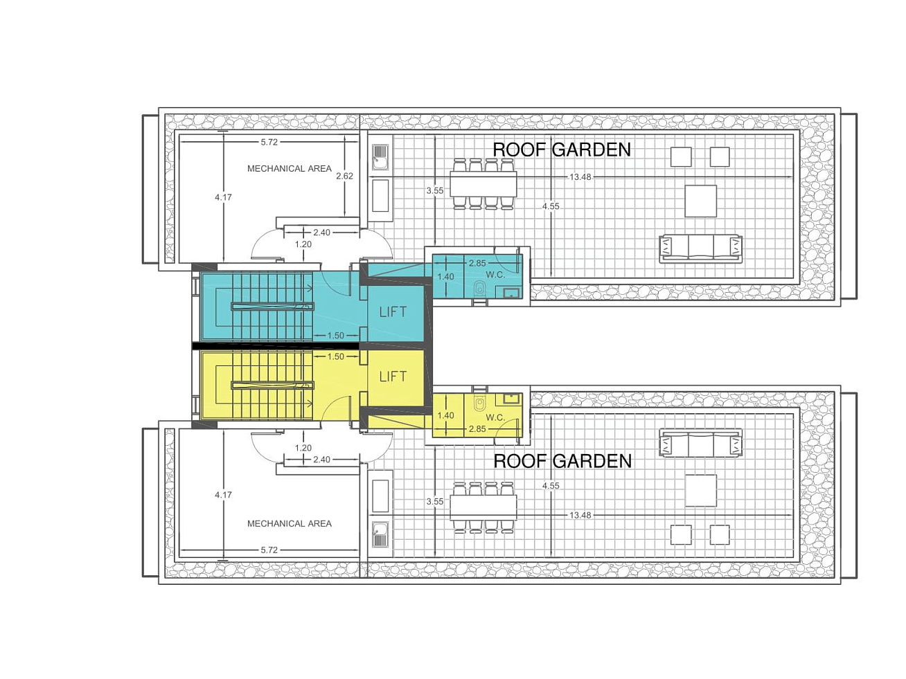
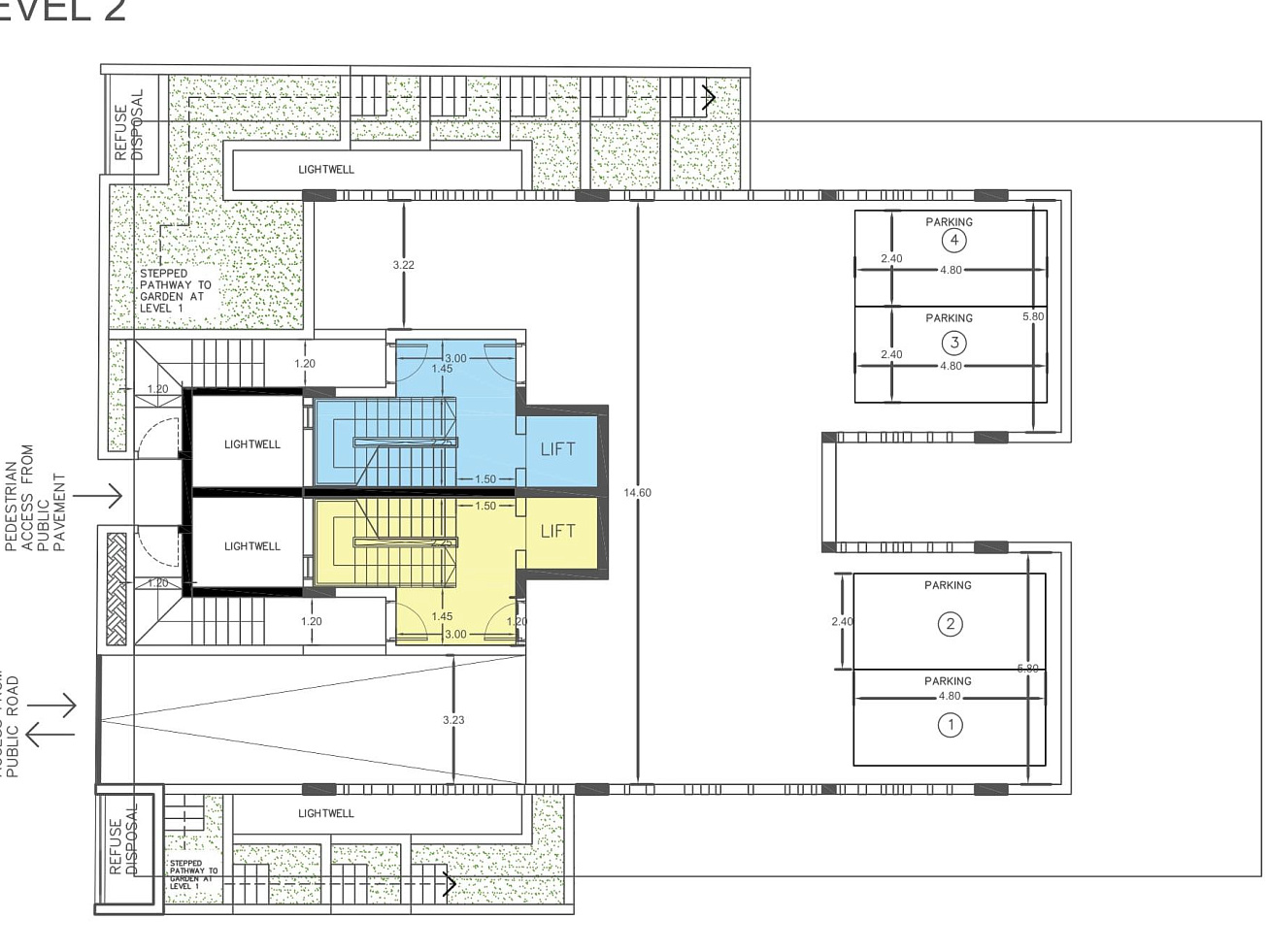
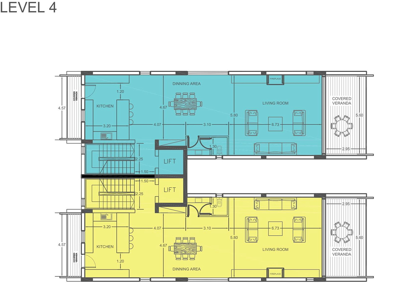
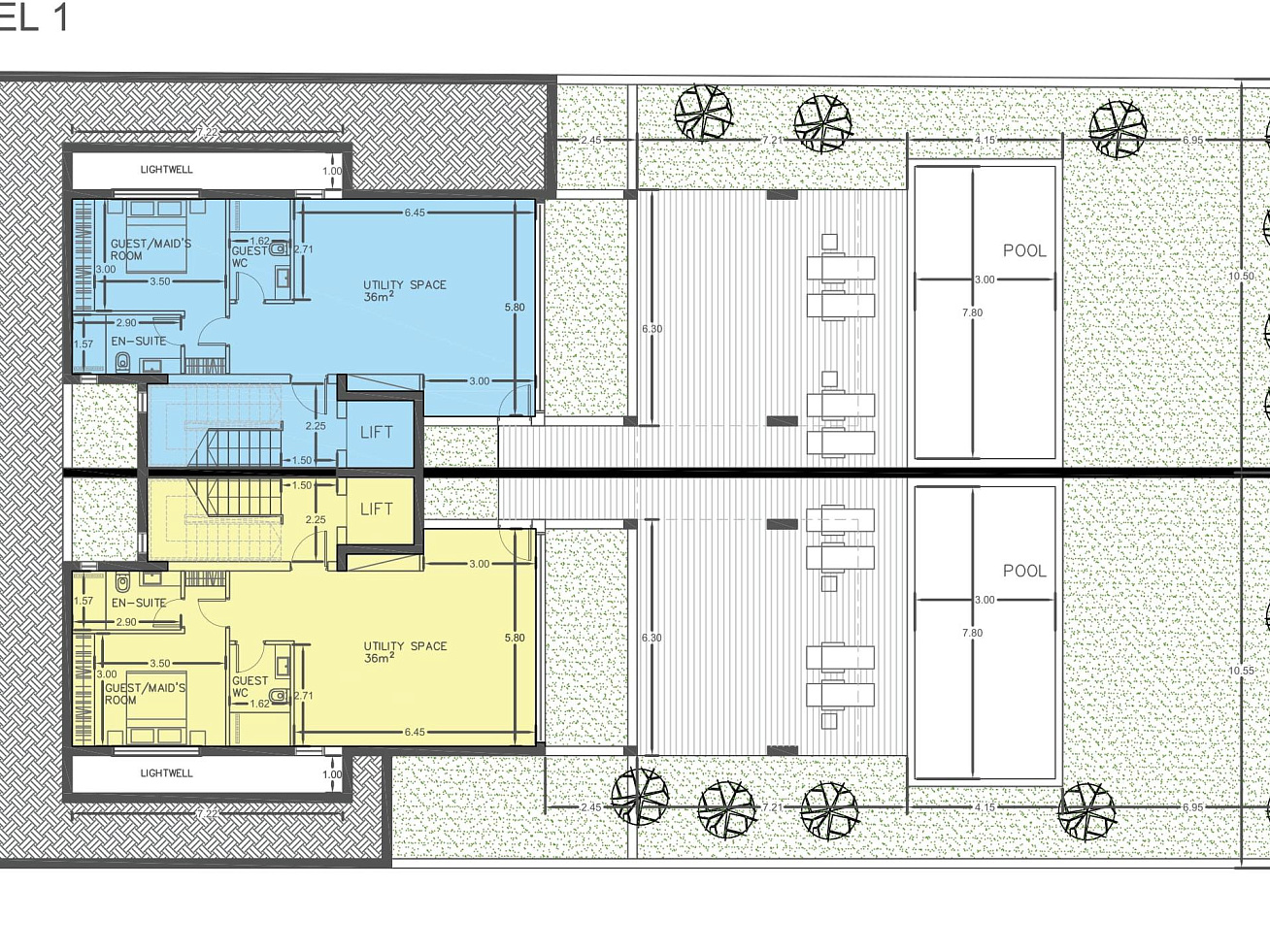
Продается вилла в районе Паниотис –Germasogeia, Limassol. Проект включает в себя 2 виллы повышенной комфортности с 4 спальнями и 7 ванными комнатами, садом/бассейном и садом на крыше, откуда открывается беспрепятственный вид на город и море. Технические характеристики соответствуют самым высоким стандартам, включая такие функции, как полы с подогревом, VRV-кондиционирование воздуха во всех помещениях, домашняя автоматика, паркетные полы в спальнях, частный лифт, итальянские кухни и многое другое. Строительство уже началось, а сдача запланирована на конец лета 2027 года. Рядом с комплексом в нескольких минутах езды расположены кафе, рестораны, магазины, международные школы, медицинские центры и другие удобства.
Читать далее
Объект
№197278
Тип:
Вилла / Дом
Город:
Район:
Комплекс:
Застройщик:
Кол-во спален:
4
Ванных комнат:
5+
Общая площадь:
558 м2
Жилая площадь:
377 м2
Площадь участка:
385 м2
Этажность:
5
Год постройки:
08/2027
Расстояние до моря:
2200 м
Класс энергоэффективности:
A
1 685 000 EUR
+ VAT
1685000
3 020
EUR/м2
Записаться на просмотр
Похожие предложения
3241 объект
Показать все
Ранее просмотренные объекты
Интересное
