Land in Limassol № 208520
Description:
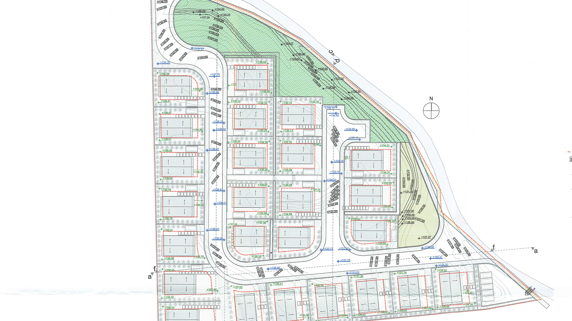
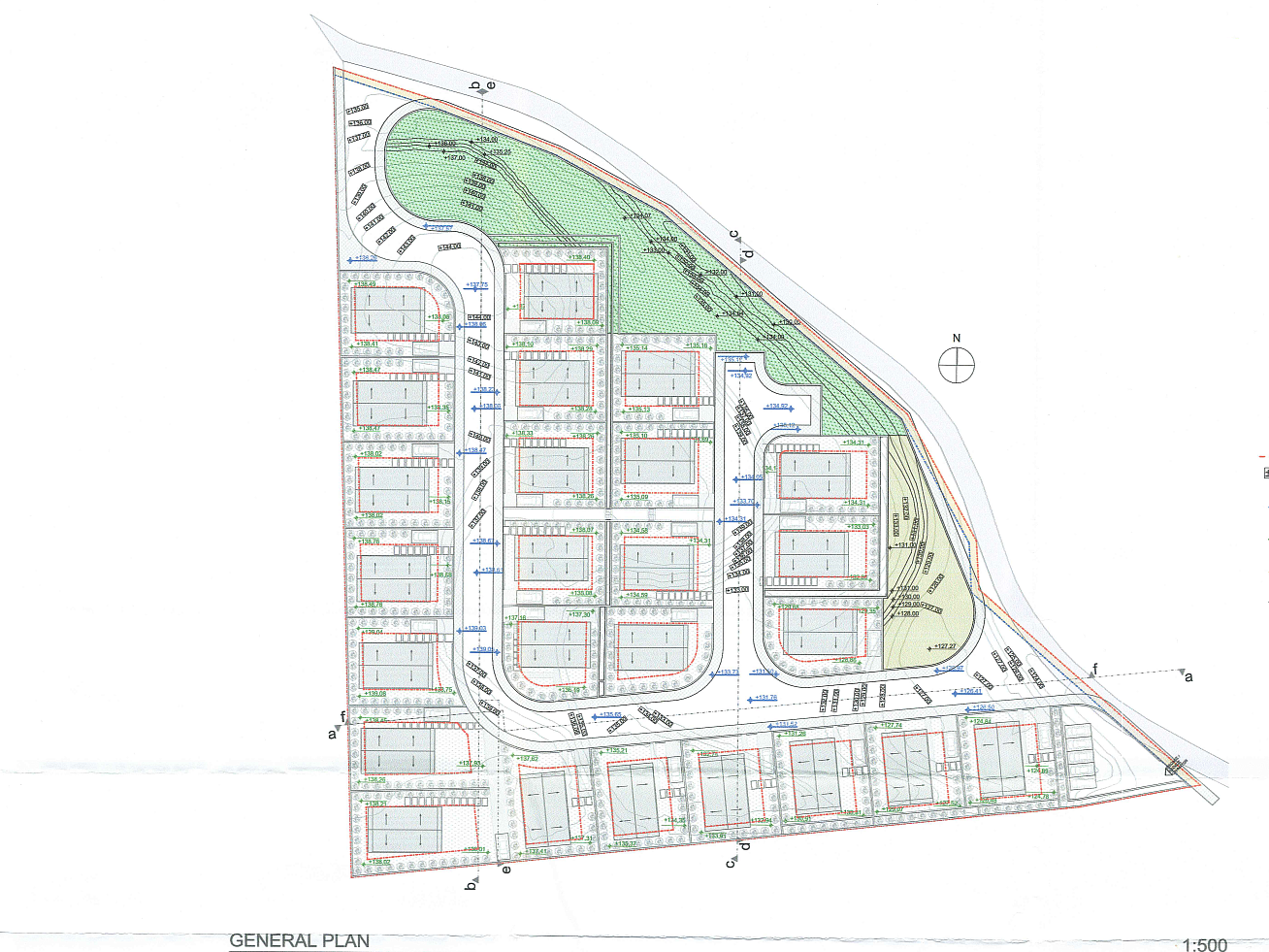
A building plot for sale in the area of Monagroulli, Limassol. The plot represents an excellent investment opportunity — a plot of 14,138 m2 with a valid building permit for 25 houses. The sale price includes complete architectural plans of houses, as well as engineering network projects. Ideal for a residential development project, all the necessary plans have already been developed.
Read more
Object
№208520
Type:
Land
City:
District:
Complex:
Developer:
Land area:
14138 m2
Distance to the sea:
4400 m
1 250 000 EUR
+ VAT
1250000
88
EUR/m2
Schedule a viewing
Similar offers
3883 objects
Show all
Previous viewed objects
Interesting
