
New 3-bedroom house in Limassol / Souni №205658




2
Additional:
Parking
Air conditioner
Description:
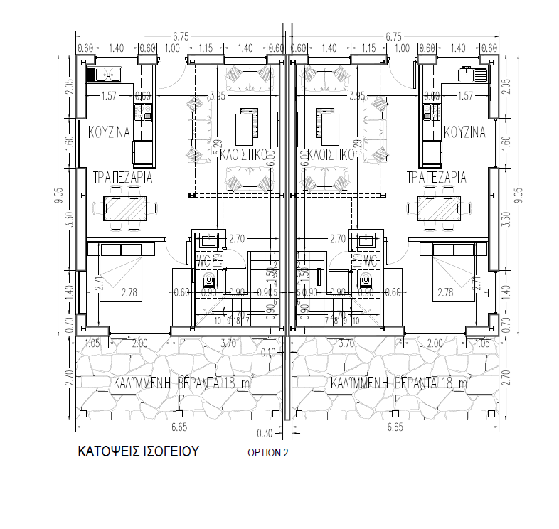
House for sale (semi- detached) in Souni, Limassol. There are only six residences in the complex. The house consists of 3 bedrooms and 2 bathrooms. The internal area is 100 m2. Covered verandas – 18 m2. The land area is 325 m2. The price includes a solar and electric water heating system, air conditioning in each room, ceramic tiles on all floors and in bathrooms, top soil garden preparation, preparation of a heating system with radiators (electric), installation of photovoltaic panels. Additional options are available: swimming pool, photovoltaic panels with an inverter, covered parking space.
Object
№205658
Type:
House / Villa
City:
District:
Complex:
Developer:
Bedrooms count:
3
Bathrooms:
2
Total area:
118 m²
Living area:
100 m²
Land area:
325 m²
Floors:
2
Construction year:
07/2027
Distance to sea:
7900 м
Energy class:
A
€340,000+ VAT
€2,881 / m²
DOM Real Estate
+357 25 056 478








