
New 4-bedroom house in Famagusta / Agia Thekla №202561




Additional:
Description:
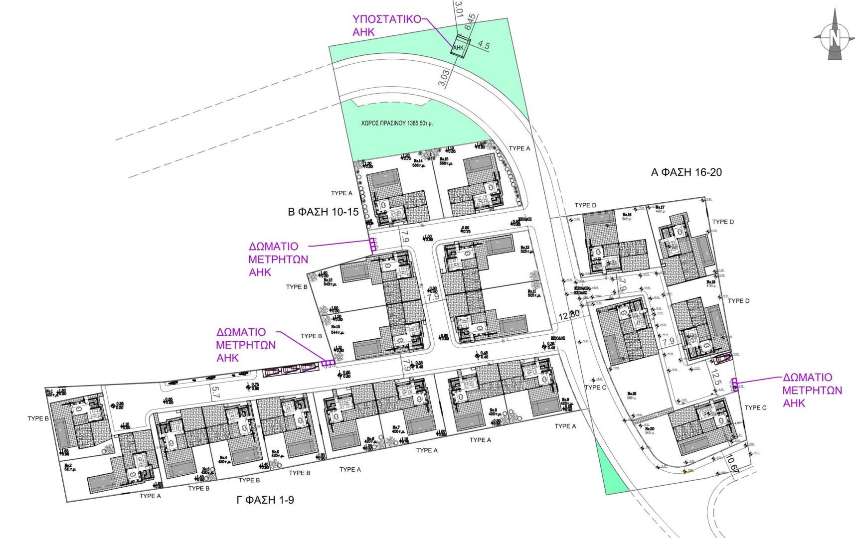
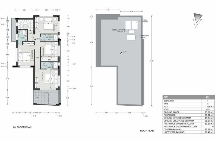
Villa for sale in Agia Thekla, near the marina of Ayia Napa, Famagusta. The project consists of 20 detached houses with 4 bedrooms with modern architectural design and functional, comfortable rooms. All houses have a private pool, barbecue, outdoor shower, double covered parking, covered terrace and toilet with shower on the ground floor. All villas are made of high-quality materials, double-glazed windows are installed, have good thermal insulation and comply with energy efficiency class A. On the second floor, all bedrooms have a separate toilet and shower. One of the bedrooms has access to a covered terrace. An ideal investment option is a promising area, thanks to the large marina project.
№202561
House / Villa
City:
District:
Complex:
4
4
165 m²
145 m²
511 m²
2
07/2027
600 м
A
€3,388 / m²
DOM Real Estate
+357 23 020 609











