Новый 2-спальный пентхаус в Никосии №214012
Дополнительно:
Описание:
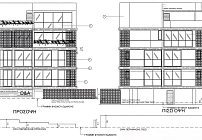
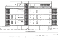
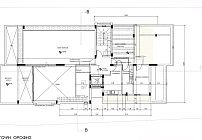
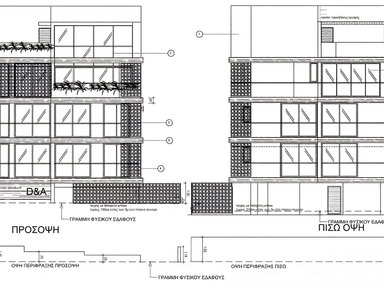
Продаётся пентхаус с террасой на крыше в районе Lakatamia, Nicosia, расположенный в современном жилом комплексе из 10 квартир с общим бассейном. Объект отличается удобной и функциональной планировкой, светлыми жилыми зонами и комфортной атмосферой для повседневной жизни.
Комплекс выполнен по современным стандартам качества и предлагает спокойную и приватную среду проживания. Удобное расположение обеспечивает быстрый доступ к центру Никосии, школам, магазинам и основным транспортным артериям. Отличный вариант как для собственного проживания, так и для инвестиции.
Читать далее
Объект
№214012
Тип:
Квартира / Апартаменты
Город:
Район:
Комплекс:
Застройщик:
Кол-во спален:
2
Ванных комнат:
2
Общая площадь:
117 м2
Жилая площадь:
109 м2
Этажность:
3
Этаж:
3
Год постройки:
11/2027
Класс энергоэффективности:
A
250 000 EUR
+ VAT
250000
2 137
EUR/м2
Записаться на просмотр
Похожие предложения
8079 объектов
Показать все
Интересное
