Новая 1-спальная квартира в Лимассоле №212046
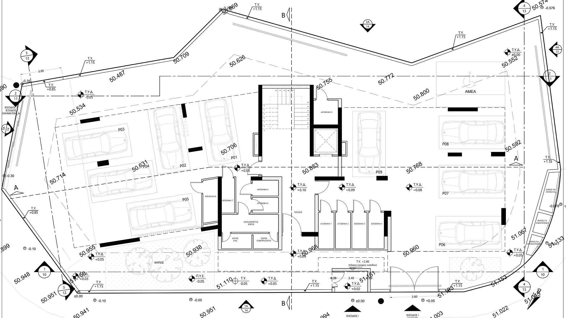
Продаётся современная квартира в районе Kapsalos, Limassol — отличный вариант для комфортного проживания или выгодной инвестиции. Апартаменты расположены в центральной части города с высоким арендным спросом и удобным доступом ко всей необходимой инфраструктуре.
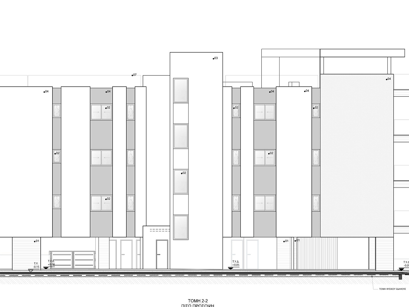
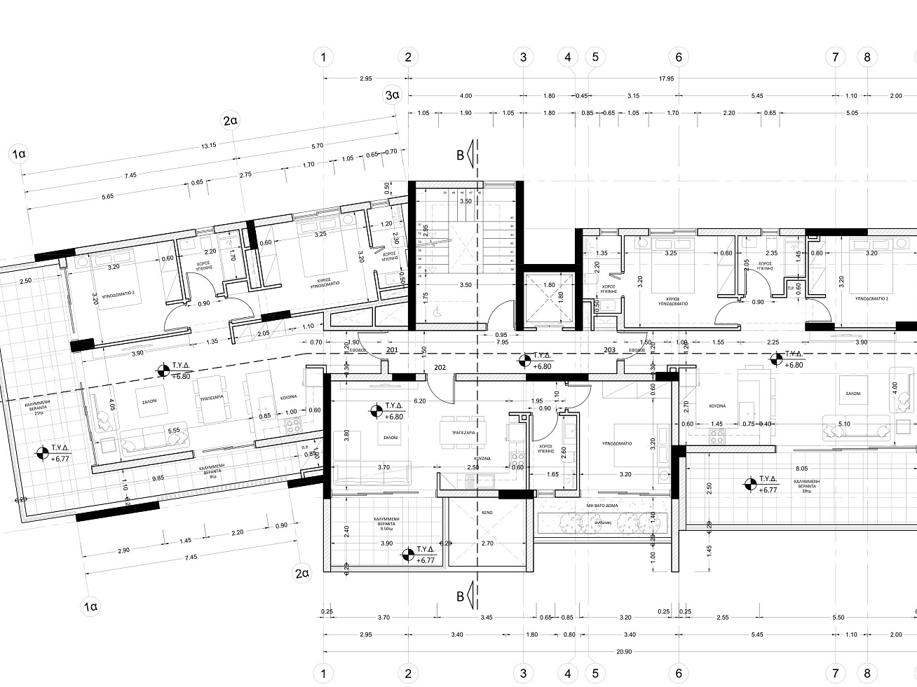
Квартира выполнена в современном стиле с просторной планировкой и высокими потолками (3 м), создающими ощущение пространства и света. Большие веранды обеспечивают гармоничное сочетание внутреннего и внешнего пространства, идеально подходя для отдыха.
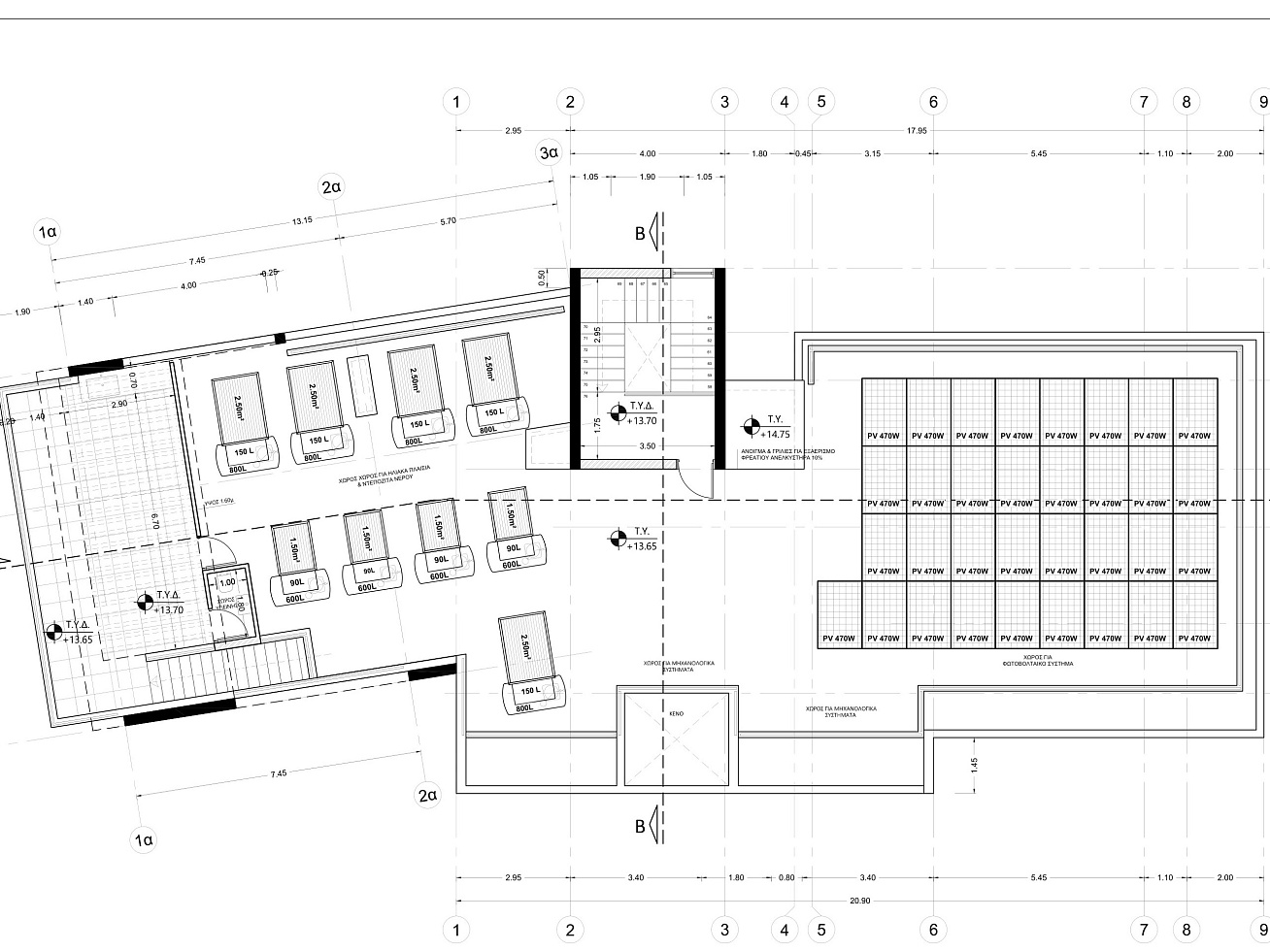
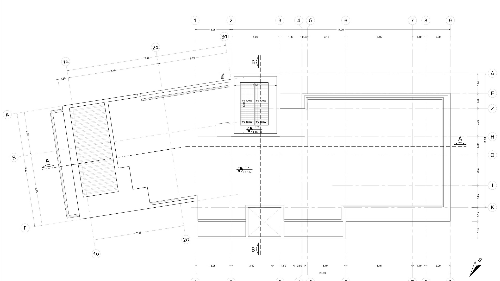
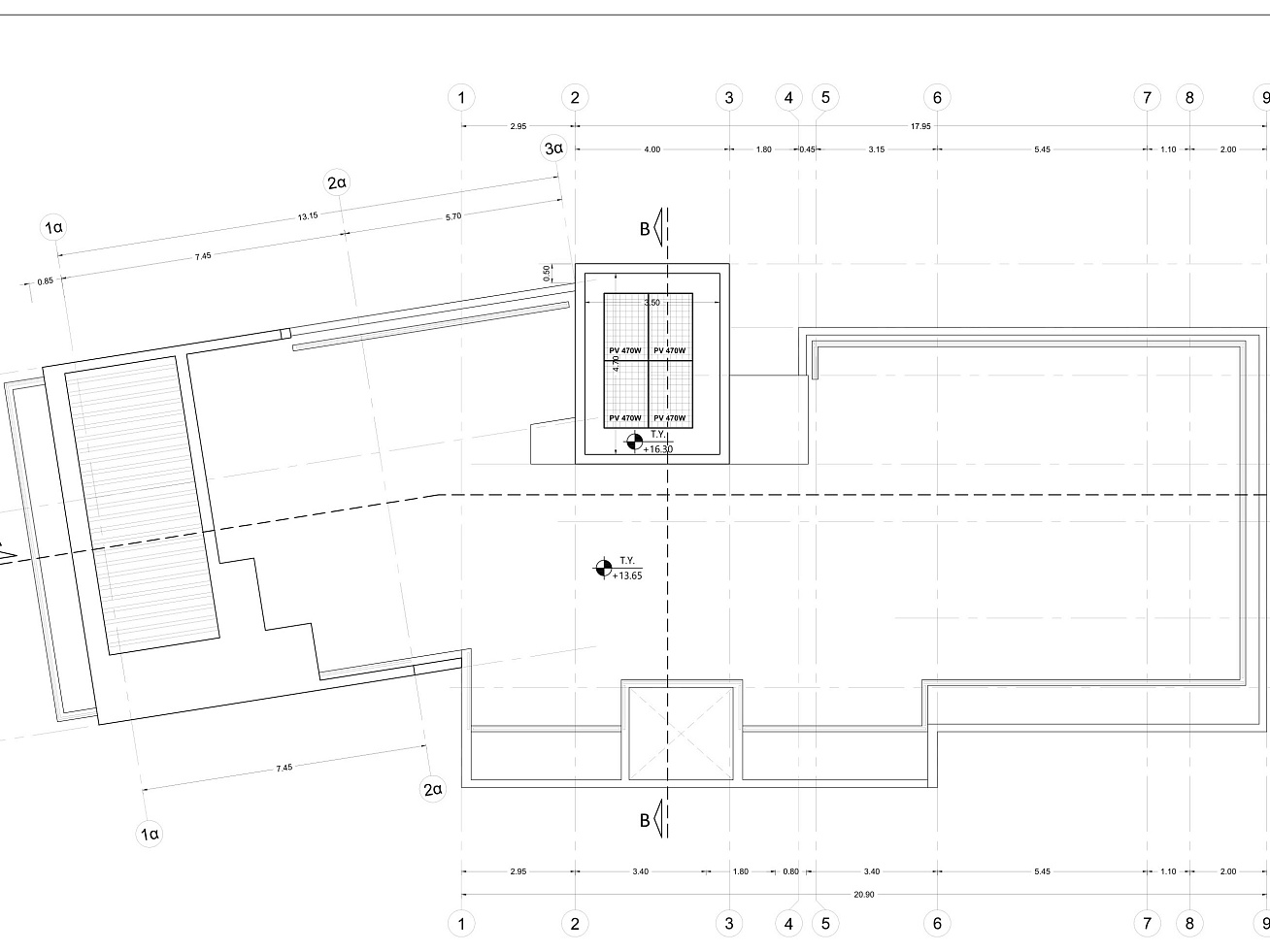
Объект соответствует классу энергоэффективности A и оснащён фотоэлектрической системой для всех квартир и общих зон, что позволяет значительно снизить расходы на электроэнергию. Для максимального комфорта предусмотрены электрический подогрев пола, система “умный дом” и электрические жалюзи.
В отделке используются высококачественные материалы и современные дизайнерские решения, соответствующие премиальному уровню жилья. Благодаря отличному расположению, современному оснащению и высокому качеству строительства, данная квартира является идеальным выбором как для проживания, так и для инвестиции.
