Новый 3-спальный дом в Никосии №211773
Дополнительно:
Новостройка
Парковка
Описание:
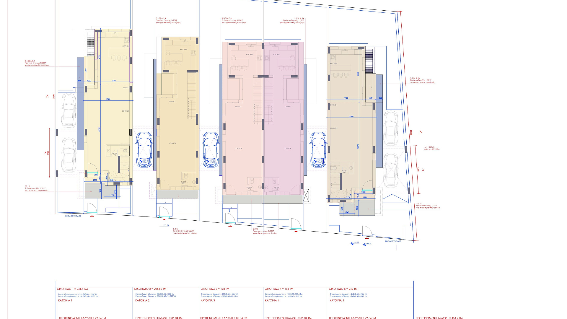
Продаётся современный дом с 3 спальнями в районе Latsia, Nicosia. Объект расположен у въезда в Никосию, напротив района Pen Hill, в новом активно развивающемся жилом районе. Дом является частью проекта роскошных домов с 3 и 4 спальнями, спроектированных с учётом потребностей современных семей и с использованием новейших технологий и качественных материалов. Недвижимость находится в непосредственной близости от Mall of Cyprus, главной больницы Никосии и IKEA, обеспечивая максимальное удобство для повседневной жизни.
Читать далее
Объект
№211773
Тип:
Вилла / Дом
Город:
Район:
Комплекс:
Застройщик:
Кол-во спален:
3
Ванных комнат:
2
Общая площадь:
193 м2
Жилая площадь:
169 м2
Площадь участка:
207 м2
Этажность:
2
Год постройки:
07/2027
388 000 EUR
+ VAT
388000
2 010
EUR/м2
Записаться на просмотр
Похожие предложения
1514 объектов
Показать все
Интересное
