Новая 4-спальная вилла в Лимассоле №211016
Дополнительно:
Новостройка
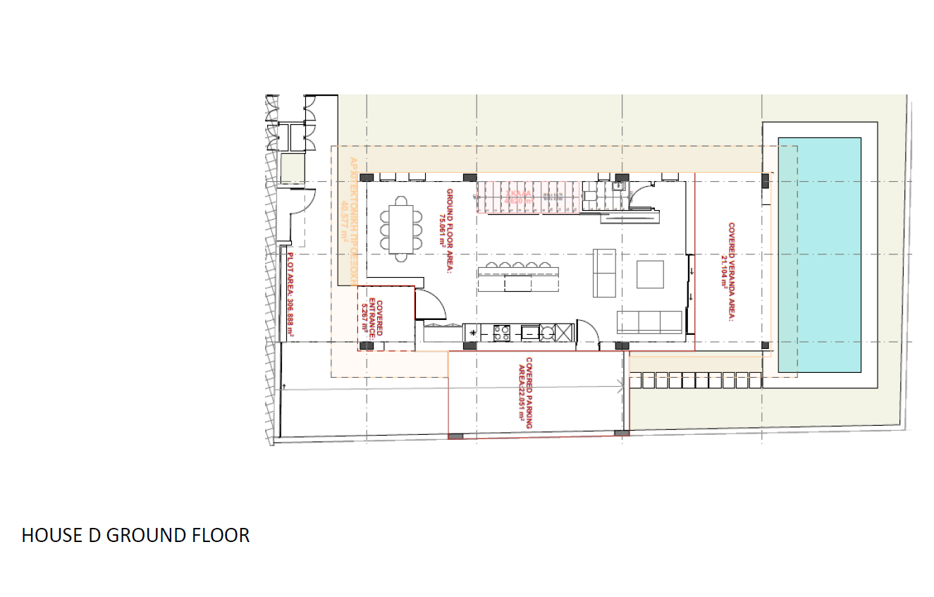
Бассейн
Парковка
Кладовая
Описание:
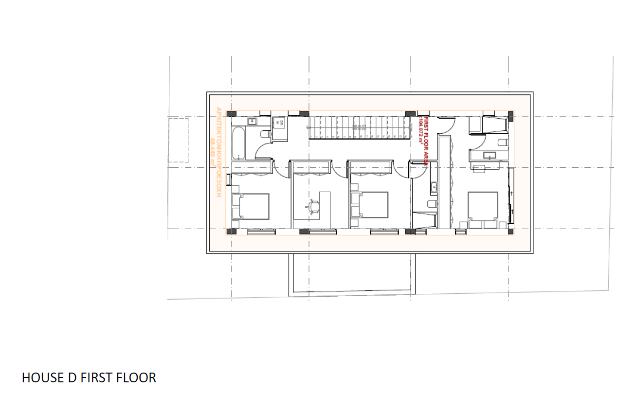
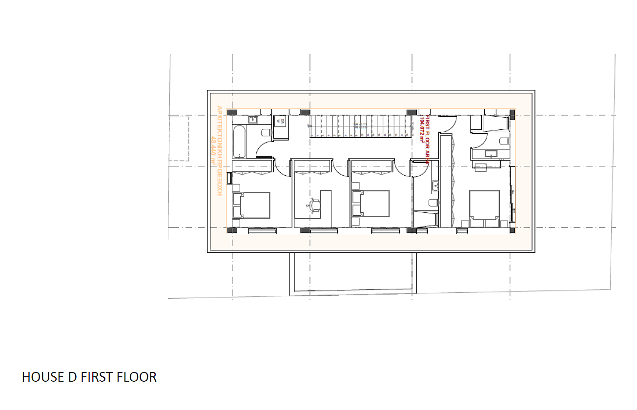
Продаётся 4-спальная вилла в Ypsonas, Limassol. В комплексе всего четыре дома. Резиденция имеет два уровня и спроектирована с учетом максимального комфорта. Проектом предусмотрена просторная и светлая гостиная и кухня открытой планировки, 4 спальни, а также просторная крытые и открытые веранды. Энергоэффективность A+.При строительстве используются качественные материалы, керамика и сантехника. Двухслойное энергосберегающее стекло. Алюминиевые двери и окна. Толщина стен 33 см. Высококачественная кухня и столешницы. Высококачественная мебель в итальянском стиле. Шкафы, кухонные шкафы и ванные шкафы. Высококачественная испанская керамическая плитка. Площадь участка составляет 306 м2.
Читать далее
Объект
№211016
Тип:
Вилла / Дом
Город:
Район:
Комплекс:
Застройщик:
Кол-во спален:
4
Ванных комнат:
3
Общая площадь:
307 м2
Жилая площадь:
229 м2
Площадь участка:
303 м2
Этажность:
3
Год постройки:
10/2027
Расстояние до моря:
6000 м
Класс энергоэффективности:
A
940 000 EUR
+ VAT
940000
3 062
EUR/м2
Записаться на просмотр
Похожие предложения
3228 объектов
Показать все
Интересное
