Новый 3-спальный дом в Никосии №209727
Дополнительно:
Новостройка
Парковка
Описание:
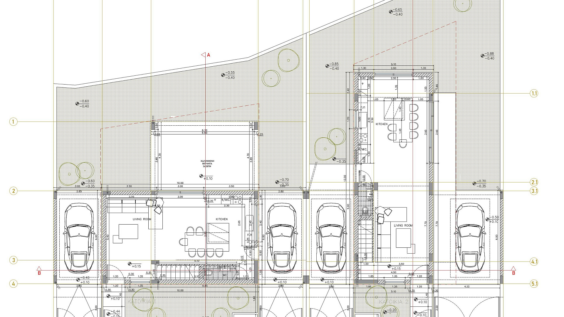
Продаётся дом в районе Pano Deftera, Nicosia — отличный вариант для комфортного проживания семьи. Дом расположен в спокойном жилом районе с удобным доступом к школам, магазинам и всей необходимой инфраструктуре.
Дом имеет функциональную планировку с просторной гостиной, современной кухней и уютными спальнями. В строительстве используются качественные материалы, обеспечивающие комфорт, надёжность и хорошую тепло- и шумоизоляцию.
На территории предусмотрено парковочное место и частная придомовая зона, создающие дополнительное удобство для проживания. Этот дом является отличным выбором как для жизни, так и для инвестиции.
Читать далее
Объект
№209727
Тип:
Вилла / Дом
Город:
Район:
Комплекс:
Застройщик:
Кол-во спален:
3
Ванных комнат:
2
Общая площадь:
168 м2
Жилая площадь:
147 м2
Площадь участка:
270 м2
Этажность:
2
Год постройки:
05/2027
Класс энергоэффективности:
A
250 000 EUR
+ VAT
250000
1 488
EUR/м2
Записаться на просмотр
Похожие предложения
1512 объектов
Показать все
Ранее просмотренные объекты
Интересное
