Новый 3-спальный дом в Никосии №207635
Дополнительно:
Новостройка
Парковка
Описание:
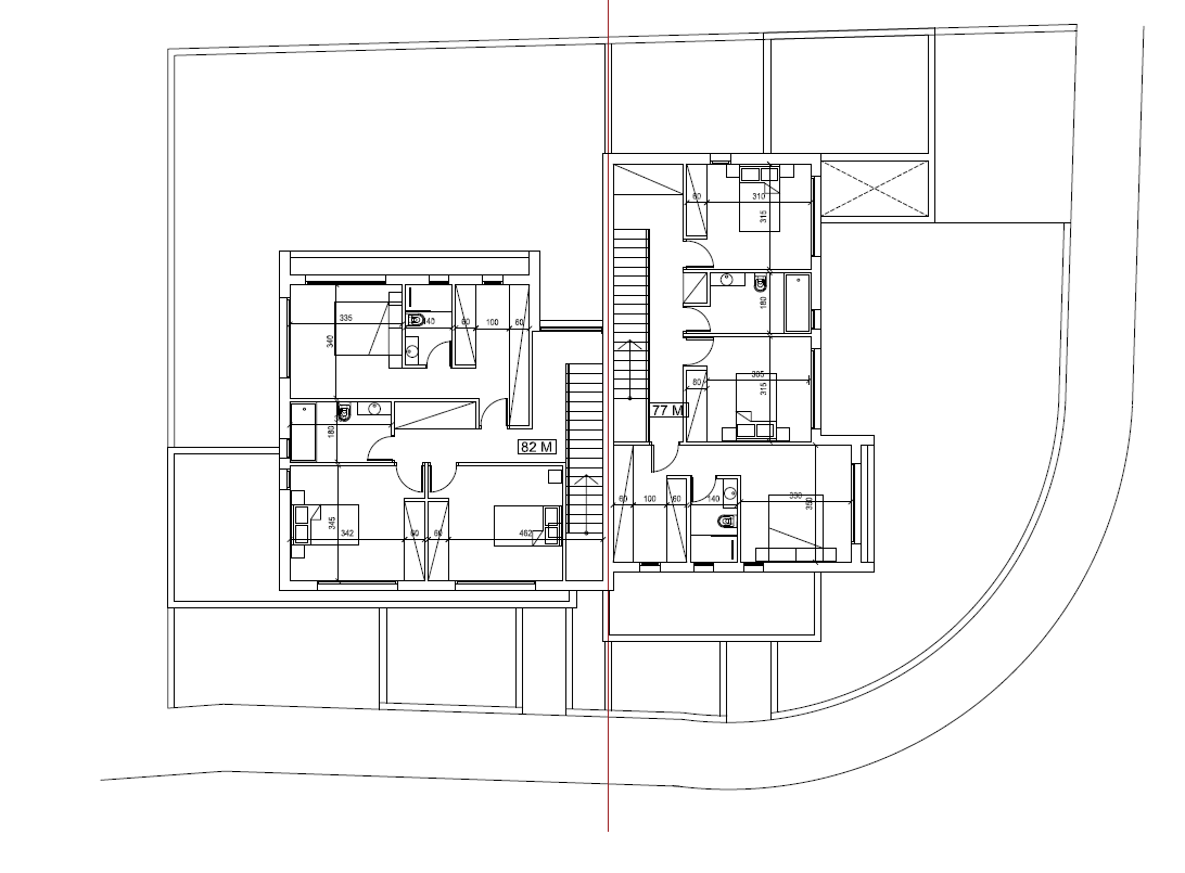
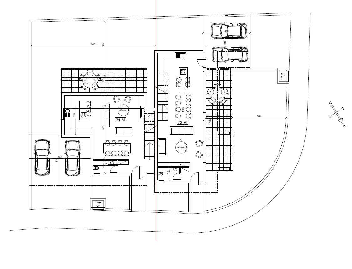
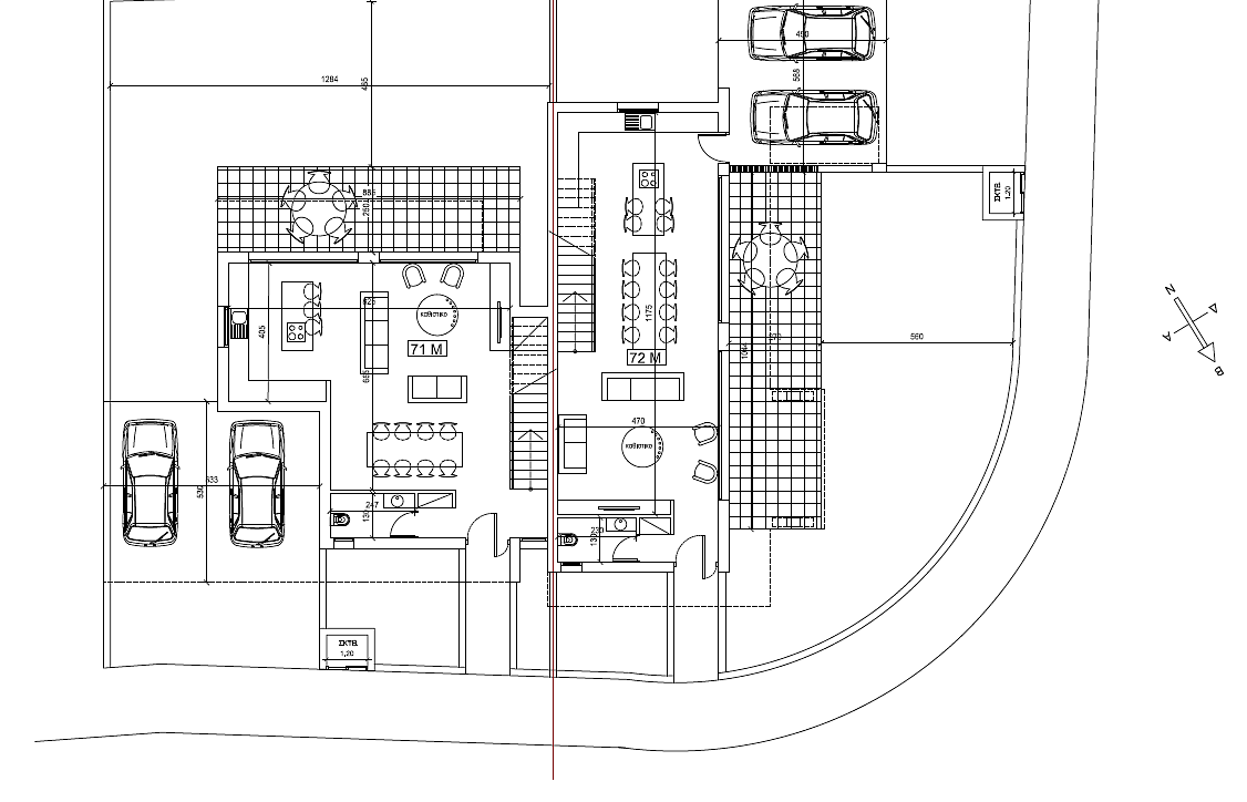
Продается современный двухуровневый дом в районе Lakatameia, Nicosia. В комплексе всего два дома. Резиденция спроектирована с учетом максимального комфорта. Проектом предусмотрена просторная и светлая гостиная и кухня открытой планировки, 3 спальни, а также крытая веранда. При строительстве используются качественные материалы, керамика и сантехника. Площадь участка составляет 287 м2. Для автомобилей имеется 2 крытых парковочных места.
Комплекс расположен в тихом и развивающемся районе, с удобным доступом к основным дорогам и всем необходимым услугам. Недвижимость расположена всего в минуте от главной дороги Архиепископа Макария и очень близко к школам, супермаркетам и основным услугам, обеспечивая комфорт и высокое качество жизни.
Читать далее
Объект
№207635
Тип:
Вилла / Дом
Город:
Район:
Комплекс:
Застройщик:
Кол-во спален:
3
Ванных комнат:
2
Общая площадь:
181 м2
Жилая площадь:
153 м2
Площадь участка:
287 м2
Этажность:
2
Год постройки:
04/2027
Класс энергоэффективности:
A
298 000 EUR
+ VAT
298000
1 646
EUR/м2
310 000 EUR
Записаться на просмотр
Похожие предложения
1524 объекта
Показать все
Ранее просмотренные объекты
Интересное
