Новый 3-спальный дом в Лимассоле №205659
Дополнительно:
Новостройка
Кондиционер
Парковка
Описание:
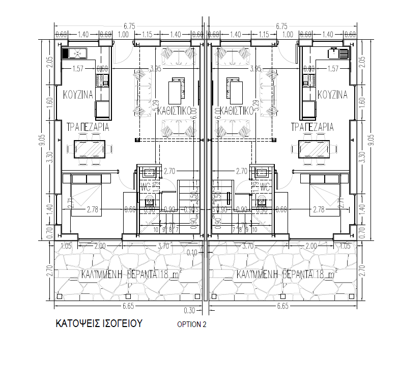
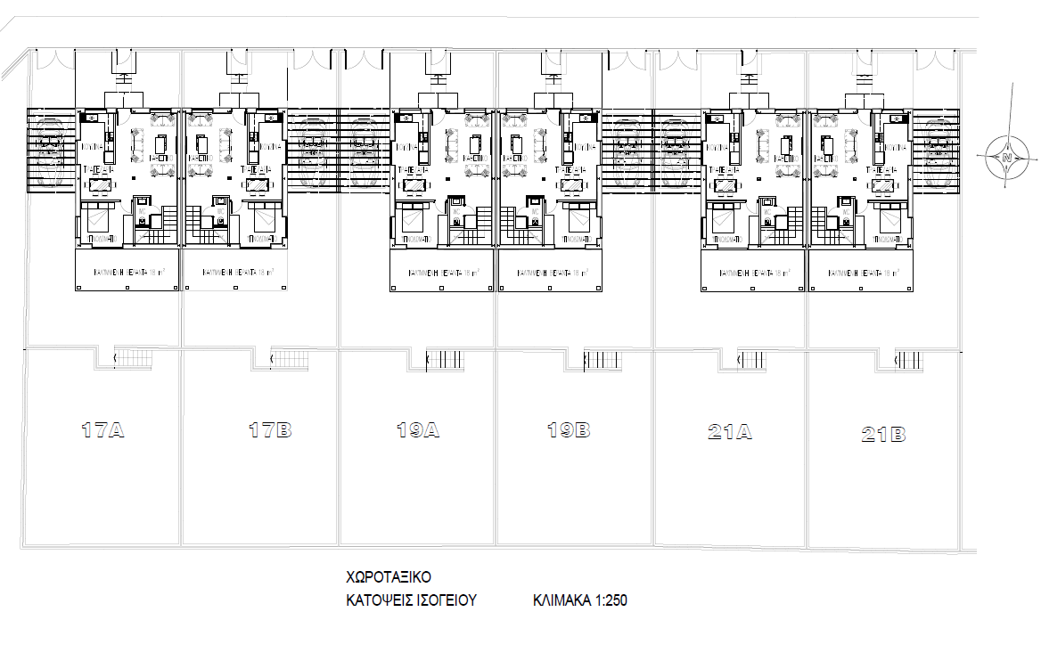
Продается дом (semi- detached) в районе Souni, Limassol. В комплексе всего шесть резиденций. Дома из 3 спален и 2 ванных комнат. Внутренняя площадь – 100 м2. Крытые веранды – 18 м2. Площадь участка составляет 325 м2. В стоимость включена солнечная и электрическая система подогрева воды, кондиционер в каждой комнате, керамическая плитка на полу и в ванных комнатах, подготовка почвы для сада, подготовка системы отопления с радиаторами (электрическими), установка фотоэлектрических панелей. Возможны дополнительные опции: бассейн, фотоэлектрические панели с инвертором, крытое парковочное место.
Читать далее
Объект
№205659
Тип:
Вилла / Дом
Город:
Район:
Комплекс:
Застройщик:
Кол-во спален:
3
Ванных комнат:
2
Общая площадь:
118 м2
Жилая площадь:
100 м2
Площадь участка:
325 м2
Этажность:
2
Год постройки:
10/2027
Расстояние до моря:
7900 м
Класс энергоэффективности:
A
340 000 EUR
+ VAT
340000
2 881
EUR/м2
Записаться на просмотр
Похожие предложения
4242 объекта
Показать все
Интересное
