Новый 3-спальный дом в Никосии №204051
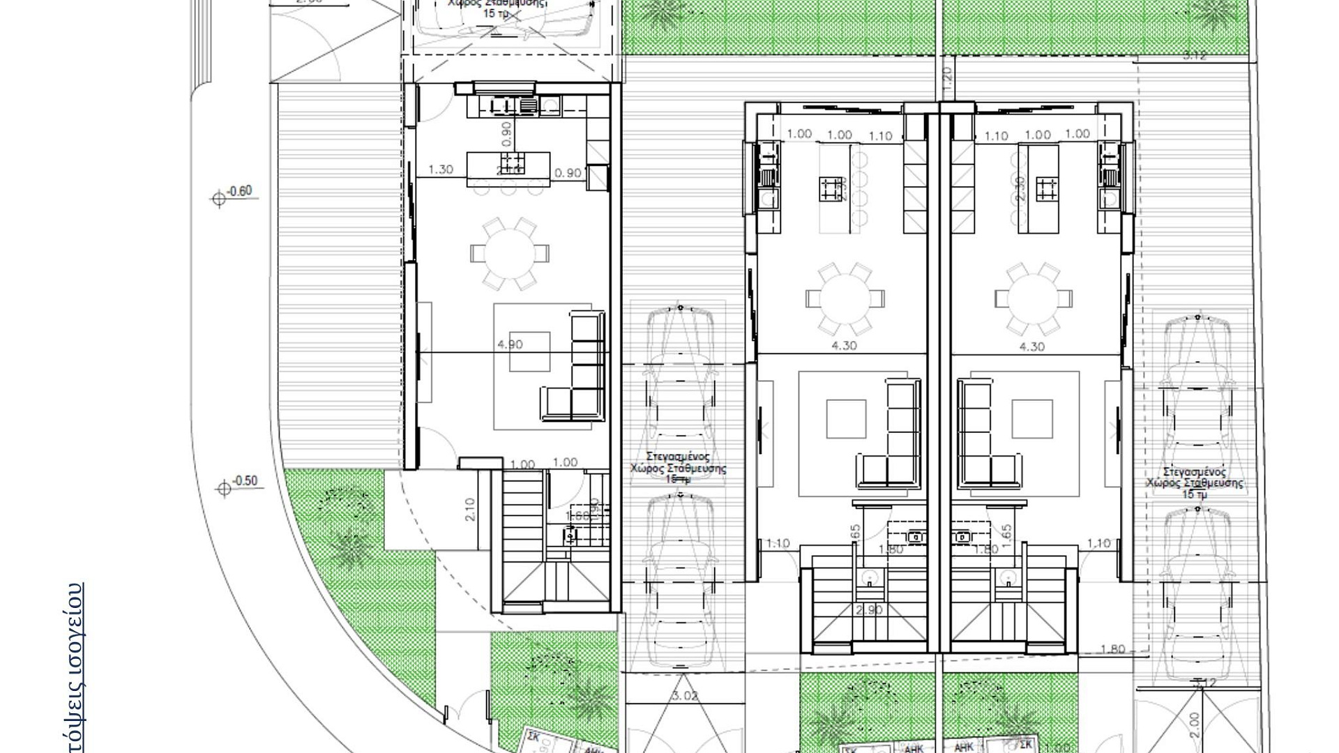
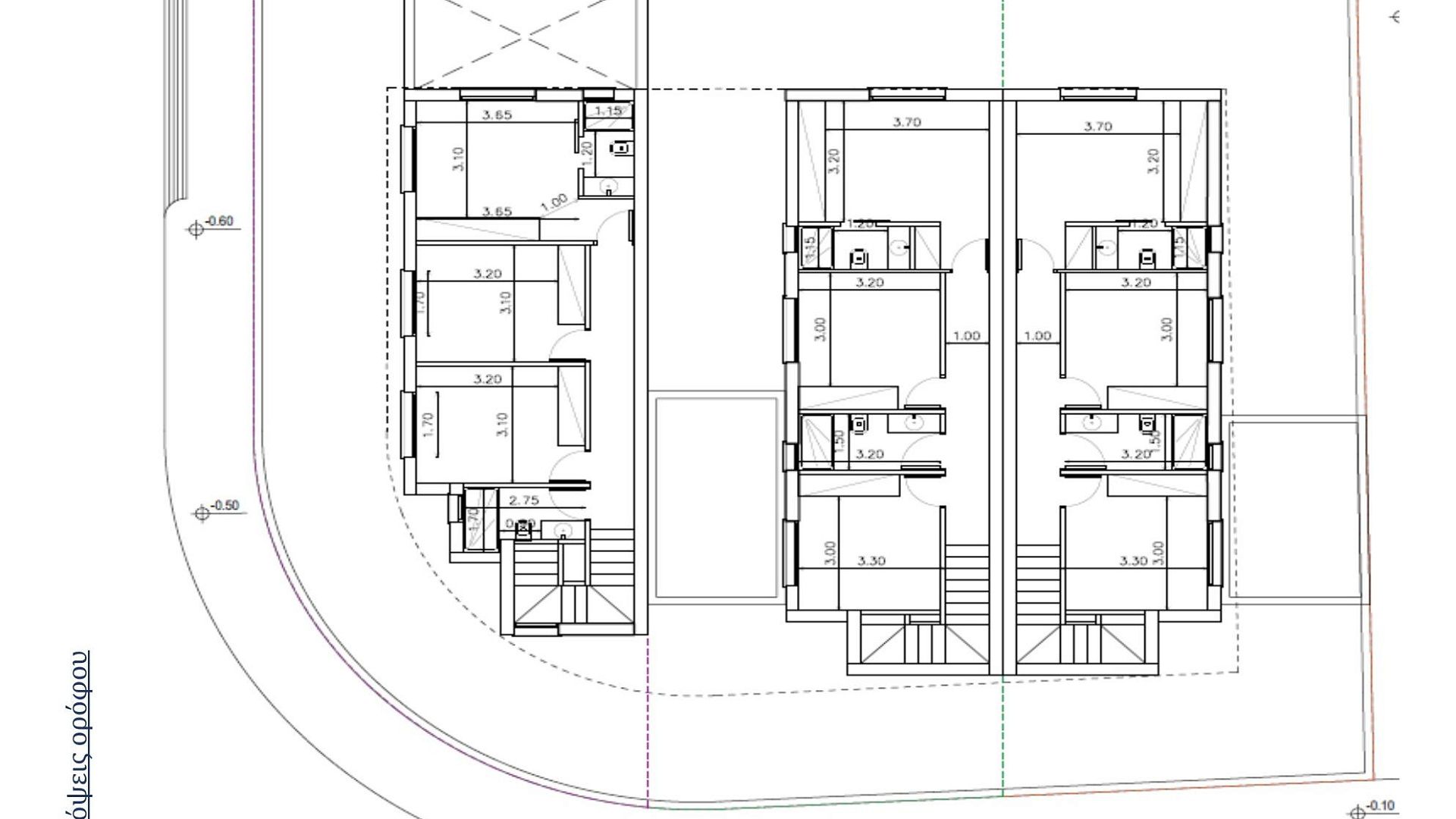
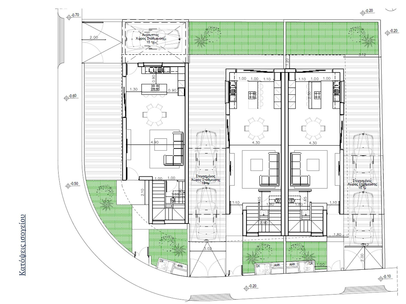
Продается дом в новом жилом комплексе в районе Lakatameia, Nicosia. В комплексе всего 3 дома с 3 спальнями, которые идеально подойдут как для молодых пар, так и для больших семей. Дома выполнены в современном дизайне с акцентом на комфорт и функциональность.
Комплекс предлагает дома с кухней-гостиной открытой планировки, что создаёт ощущение простора и света. На участке имеется удобная парковка на два автомобиля. Проектом также предусмотрена установка электрического дверного звонка и видеодомофона, кондиционеров в гостиной и во всех спальнях, водонагревателя и двух солнечных панелей.
Комплекс расположен в динамично развивающемся месте с отличной инфраструктурой. В шаговой доступности находятся магазины, школы, кафе и рестораны, что делает проживание здесь максимально удобным. Кроме того, близость к центру города Никосия обеспечивает лёгкий доступ ко всем культурным и деловым мероприятиям столицы.
