3-спальная вилла в Пафосе №193177
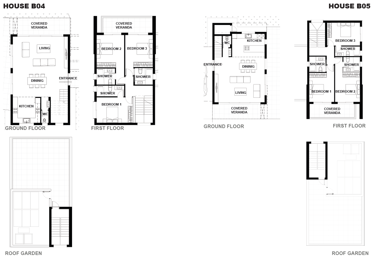
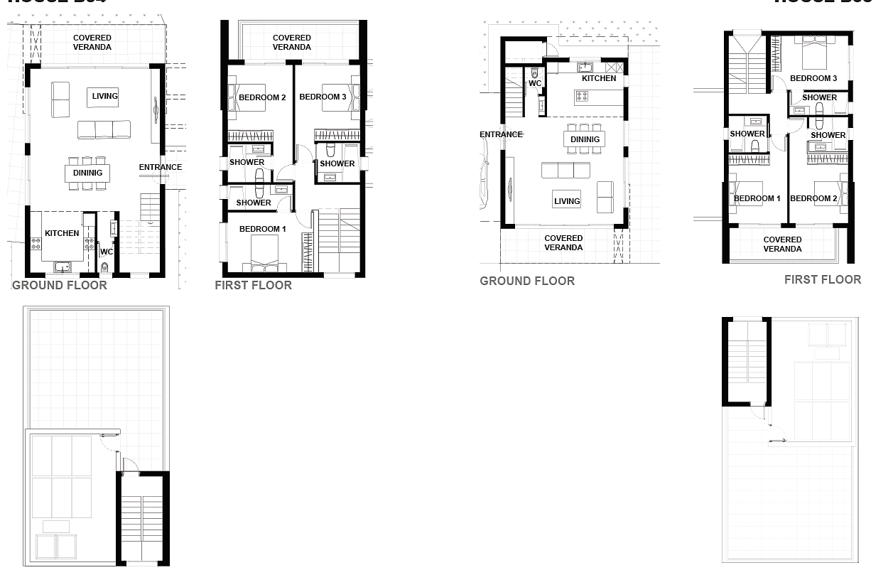
Продается современная вилла с тремя спальнями в жилом комплексе, расположенном в самом сердце живописного района Peyia, Paphos. Виллы отличаются продуманной архитектурой и высоким уровнем комфорта: просторные помещения, крытые веранды, частный бассейн, сад на крыше и великолепные панорамные виды. Все дома оснащены современными инженерными решениями, включая систему "умный дом", VRV кондиционирование, полы с подогревом, солнечные панели, систему усиления давления воды, зарядную станцию для электромобилей, охранную сигнализацию и энергоэффективное светодиодное освещение. Комплекс расположен всего в пяти минутах от моря и находится в охраняемом жилом сообществе, предлагая жильцам высокий уровень безопасности, приватности и тишины. Отделка выполнена с использованием материалов премиум-класса, а покупателям доступен полный мебельный пакет.
