Новая 4-спальная вилла в Фамагусте №190490
Дополнительно:
Описание:
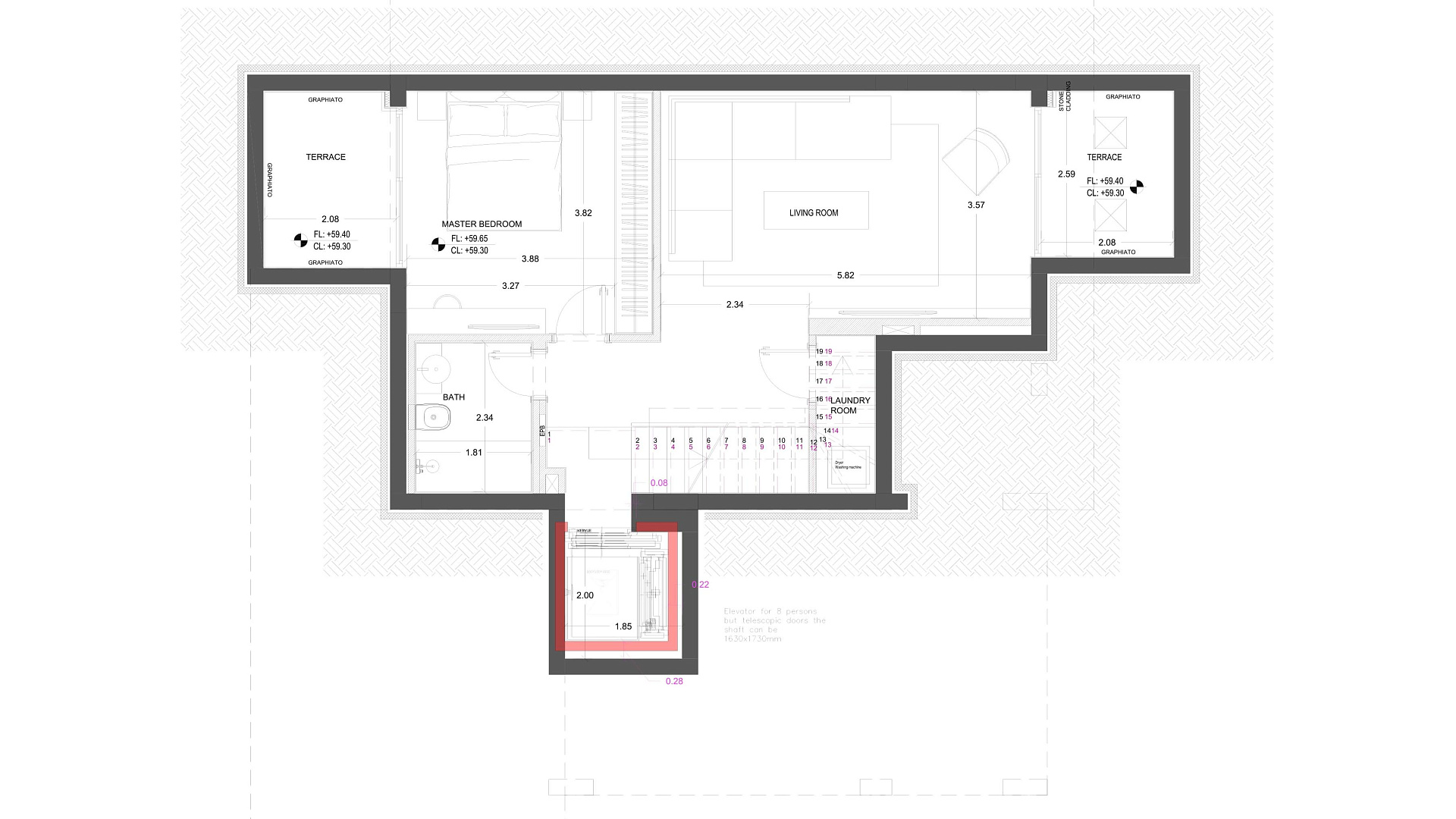
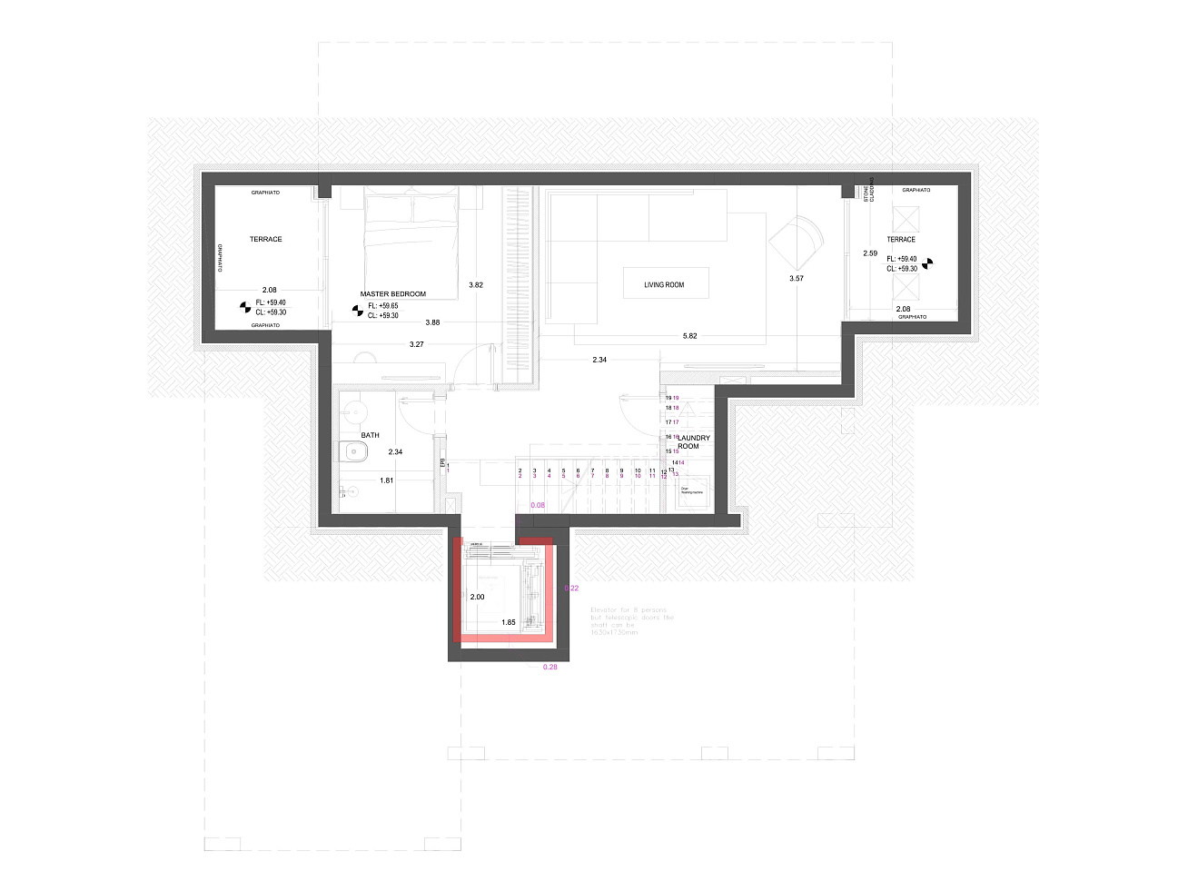
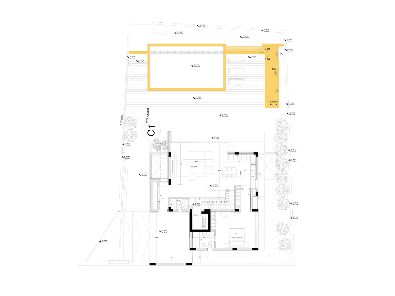
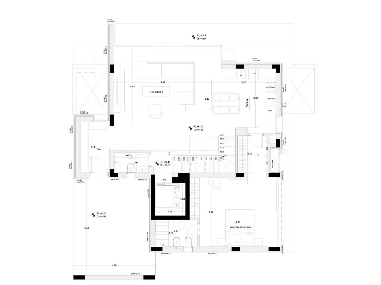
Продается новая 4 спальная вилла в элитном жилом комплексе, расположенном в Protaras, в 5 минутах езды от знаменитого пляжа, отмеченного Голубым флагом- Fig Tree Bay. Проект состоит из 10 вилл, каждая из которых, благодаря современной архитектуре и передовым технологиям строительства, дарит ощущение бесконечного, комфортного отпуска. Собственный бассейн, террасы, ландшафтный дизайн, веранда на крыше и крытая парковка. Белые фасады способствуют еще большему настроению, а облицовка из натурального камня и дерева придает домашний и роскошный вид. Виллы расположены на холме, что дарит беспрепятственный панорамный вид.
Читать далее
Объект
№190490
Тип:
Вилла / Дом
Город:
Район:
Комплекс:
Застройщик:
Кол-во спален:
4
Ванных комнат:
4
Общая площадь:
501 м2
Жилая площадь:
220 м2
Площадь участка:
558 м2
Этажность:
3
Год постройки:
06/2026
Расстояние до моря:
950 м
Класс энергоэффективности:
A
1 050 000 EUR
+ VAT
1050000
2 096
EUR/м2
Записаться на просмотр
Похожие предложения
764 объекта
Показать все
Ранее просмотренные объекты
Интересное
