Новая 2-спальная квартира в Лимассоле №185975
Дополнительно:
Новостройка
Отопление
Парковка
Кладовая
Описание:
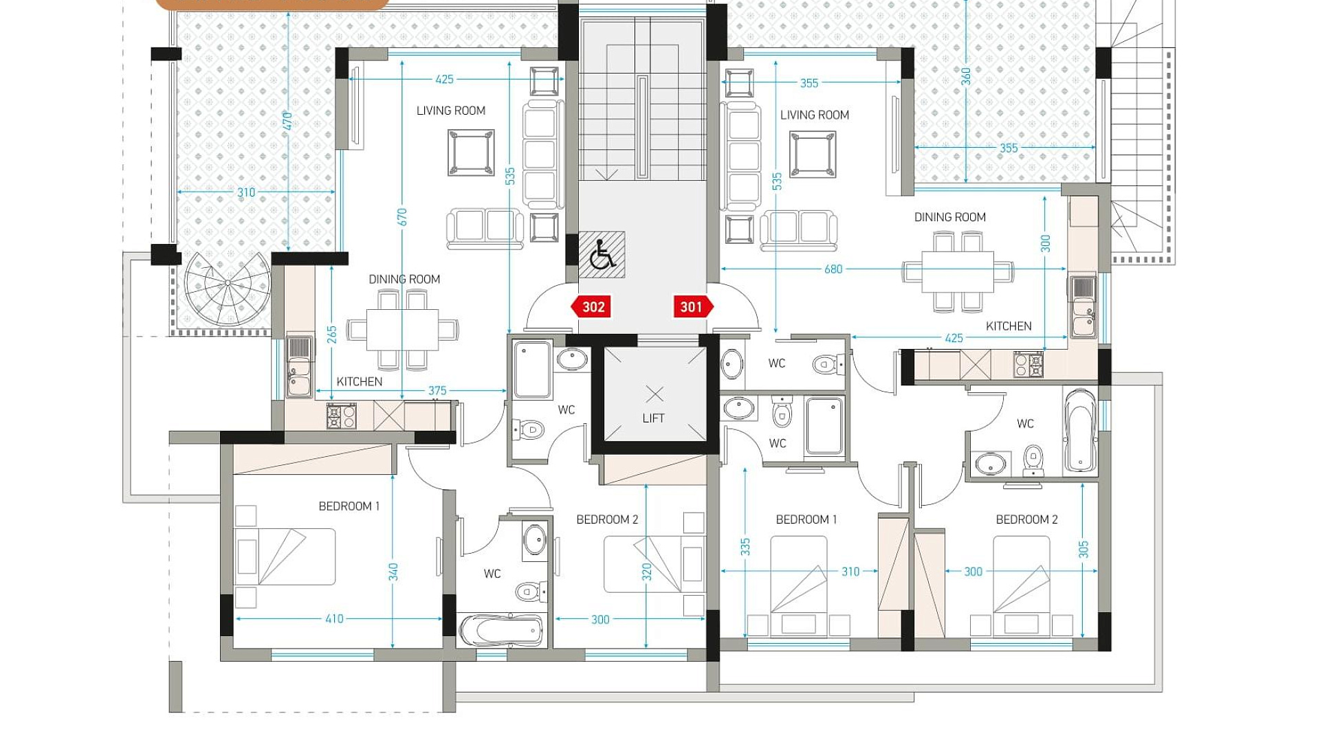
Продаётся квартира 2 спальни в районе Гермасоя Коламбия, Лимассол. Проект состоит из 3 этажей, по 2 квартире на каждом. Легкий доступ к шоссе и центру города. Квартира имеет кухню открытой планировки с гостиной и просторная крытая веранда, 2 спальни, 2 ванные комнаты+гостевой туалет. На цокольном этаже крытая парковка и кладовые комнаты для всех квартир.
Читать далее
Объект
№185975
Тип:
Квартира / Апартаменты
Город:
Район:
Комплекс:
Застройщик:
Кол-во спален:
2
Ванных комнат:
3
Общая площадь:
114 м2
Жилая площадь:
83 м2
Этажность:
3
Этаж:
1
Год постройки:
09/2026
Расстояние до моря:
2000 м
Класс энергоэффективности:
A
400 000 EUR
+ VAT
400000
3 509
EUR/м2
Записаться на просмотр
Похожие предложения
17785 объектов
Показать все
Ранее просмотренные объекты
5 объектов
Показать все
Интересное
