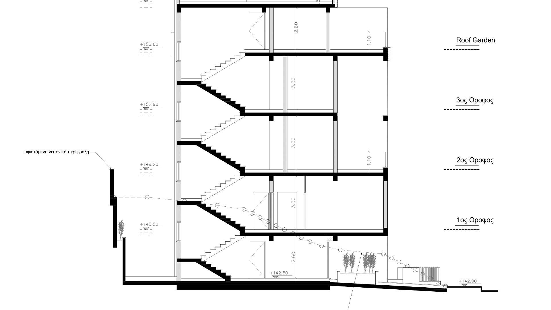
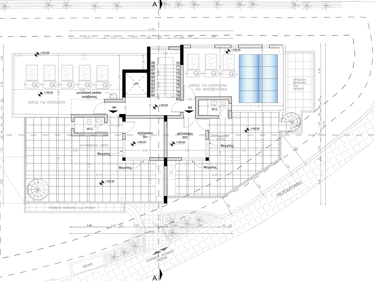
Новый 2-спальный пентхаус в Лимассоле №180102
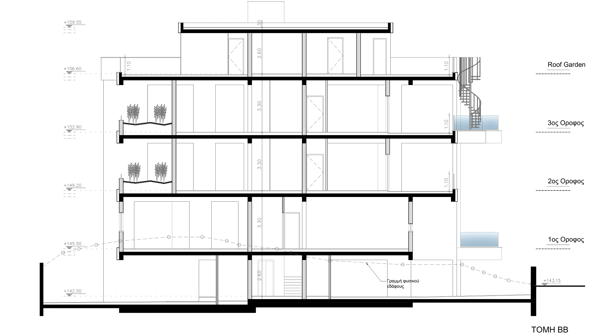
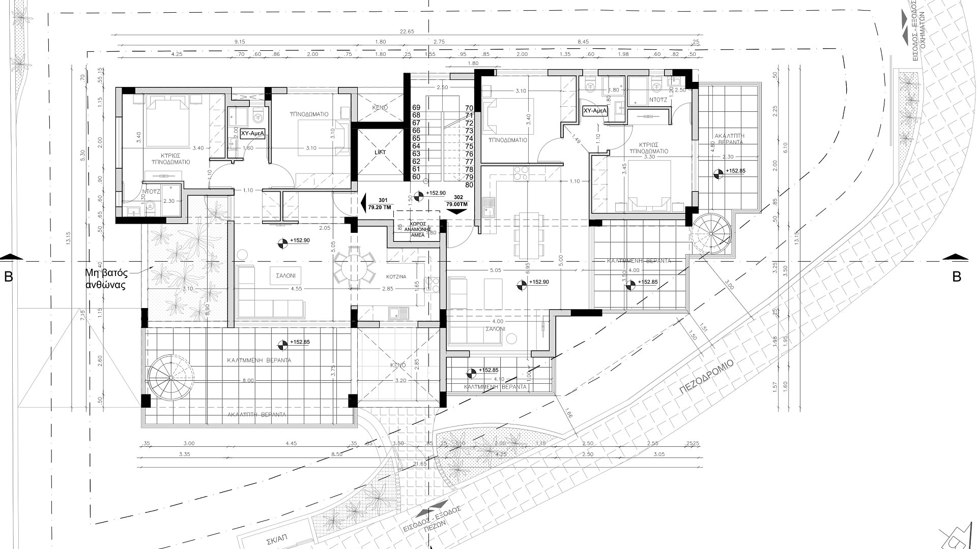
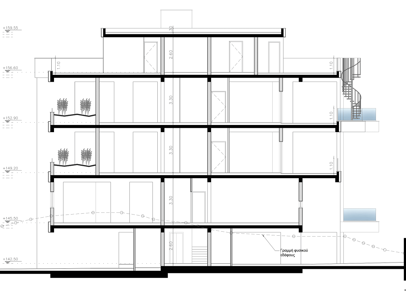
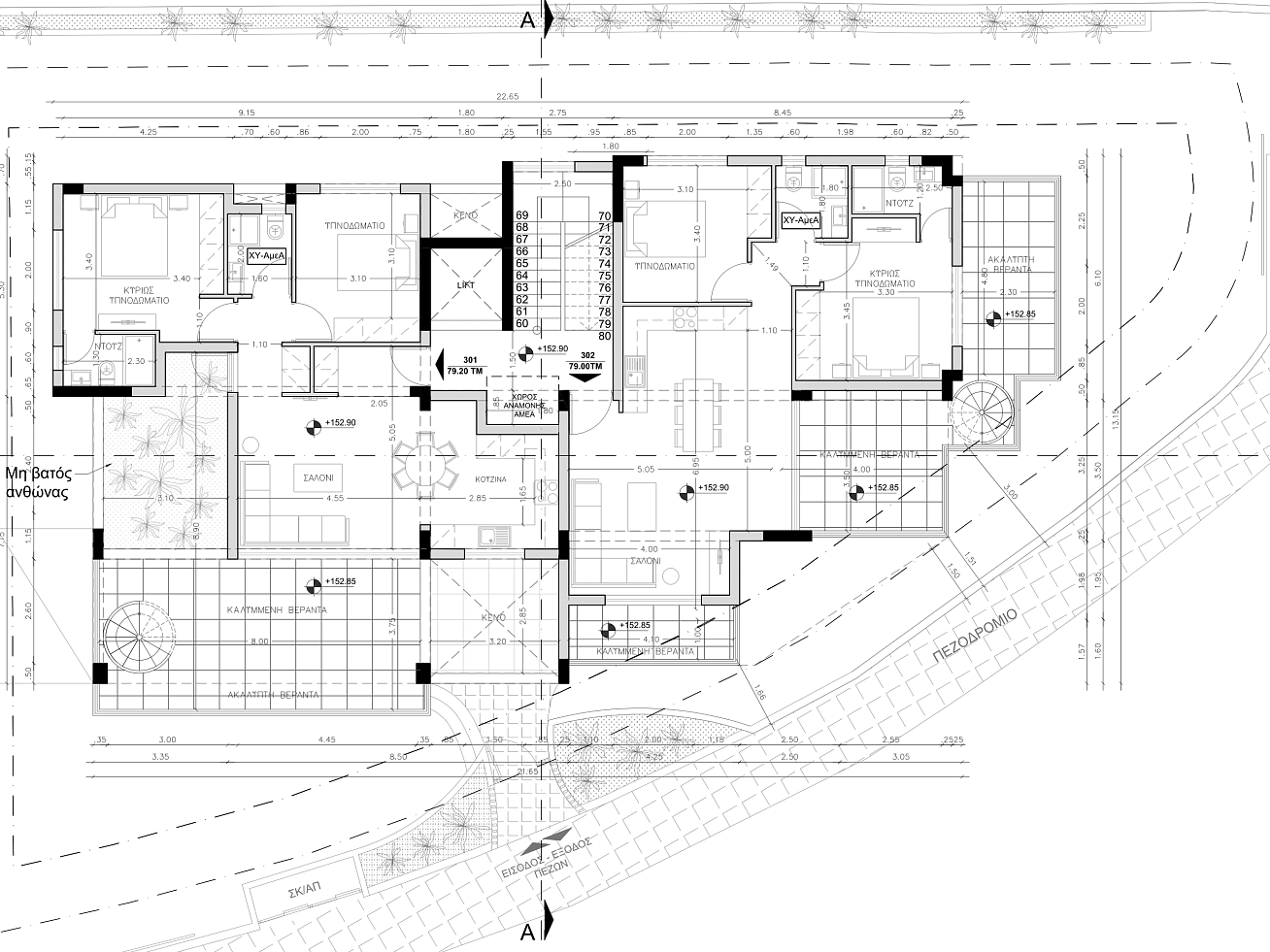
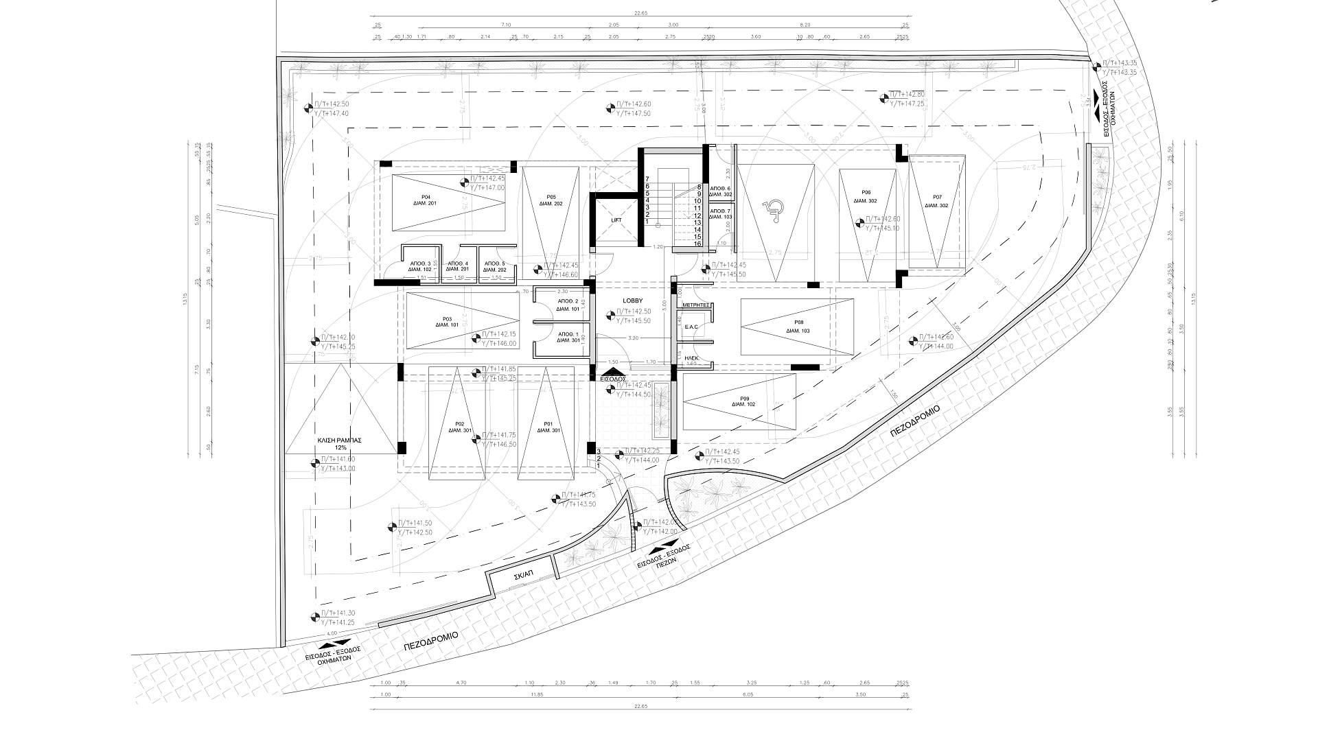
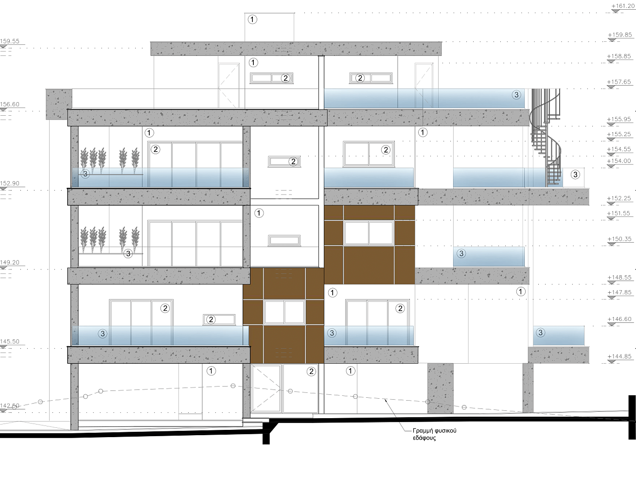
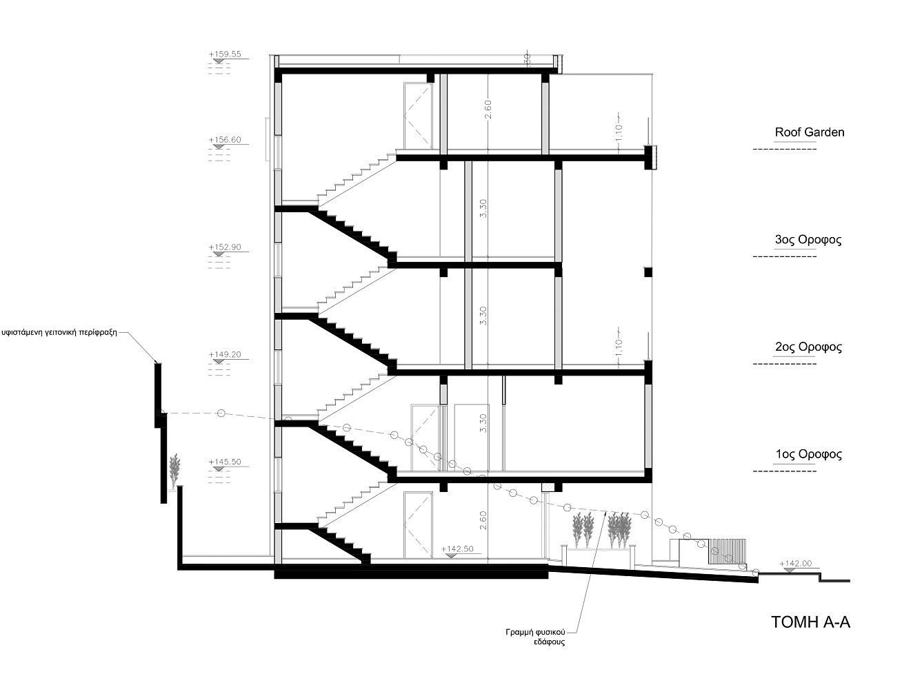
Пентхаус в новом, строящимся комплексе в Agios Athanasios, Limassol. У каждой квартиры есть крытая веранда, парковочное место и кладовая, а на последнем этаже пентхаусы с садом на крыше и бассейном. Проект здания основан на новейших европейских стандартах, в здании есть скоростной лифт. Конструкции спроектированы с учетом сейсмостойкости. Фундамент и конструкция здания состоят из железобетона типа C30/C37 с высокопрочной стальной арматурой, соответствующей Антисейсмическим нормам Кипра. В здании будет использоваться композитная система внешней теплоизоляции с подходящей изолирующей панелью из пенополистирола толщиной 8 см, прикрепленной к стенам цементным клеем и механически закрепленной дюбелями. Наносится армирующая сетка с цементным слоем и финальным покрытием поверхности подходящей подготовленной основой с декоративной окончательной штукатуркой (текстурированной или окрашенной). За исключением выделенных зеленых насаждений, вся остальная территория будет заасфальтирована высокопрочным железобетоном.
