Новый офис в Лимассоле №191032
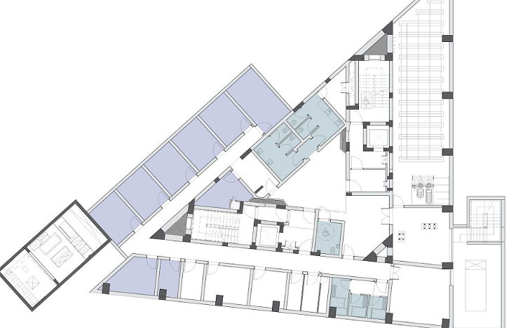
Сдается офис в районе Agios Athanasios, Limassol в современном семиэтажный бизнес-центре находящийся на этапе строительства с планируемым завершением в третьем квартале 2026 года. Объект расположен в удобной части города рядом с шоссе и центром и включает шесть офисных юнитов общей крытой площадью 657 м². Здание проектируется в соответствии с европейскими стандартами сейсмостойкости и энергоэффективности с рейтингом класса A, с акцентом на инновационный дизайн, высокое качество и устойчивое развитие. Пространства открытой планировки дополняются высокими потолками, зонами отдыха, садом на крыше, рецепцией, велосипедной и автомобильной парковкой, душевыми, кухнями, переговорными и складскими помещениями. Центр соответствует экологическим стандартам и ориентирован на получение сертификата LEED Gold.
