Новая 3-спальная вилла в Лимассоле №207233
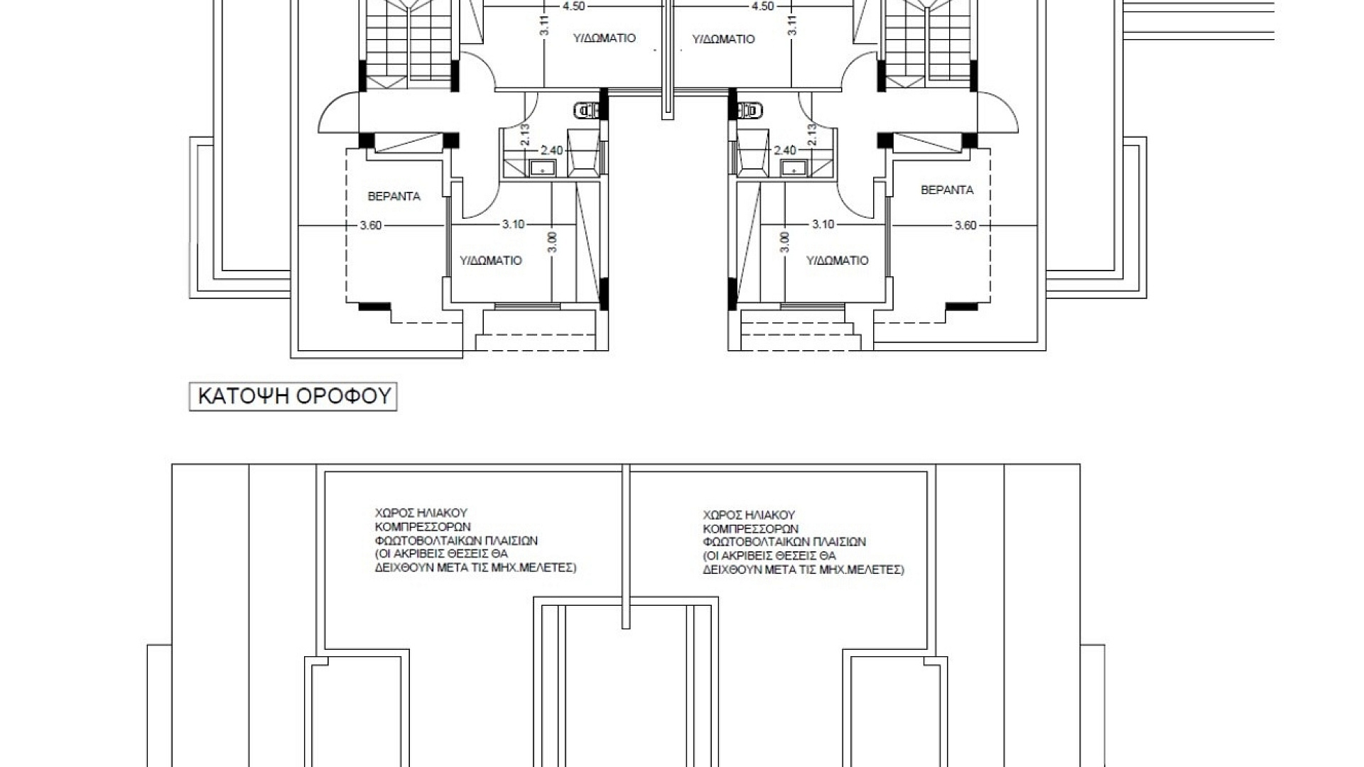
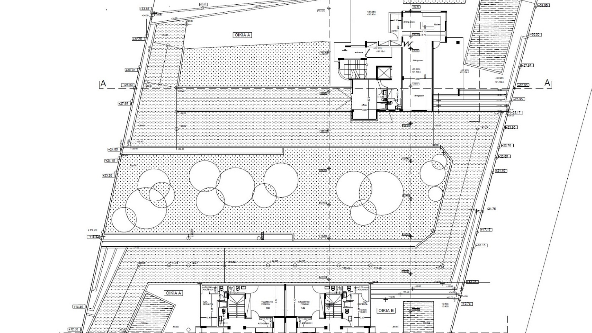
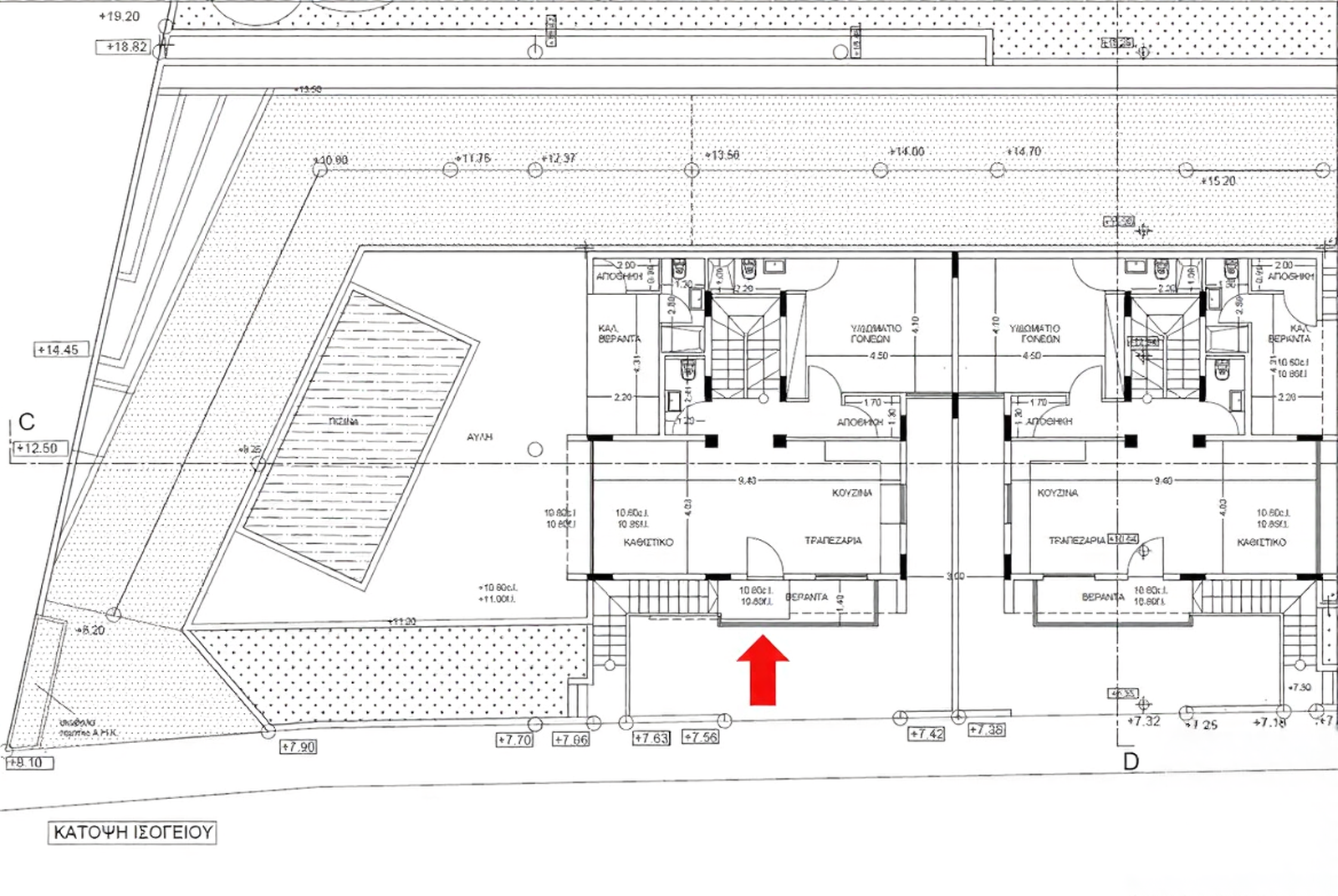
Продаётся современный таунхаус (semi-detached) с 3 спальнями в районе Palodia, Limassol — отличный вариант для комфортного проживания семьи. Дом состоит из трёх уровней и включает просторную гостиную, современную кухню, три спальни и несколько ванных комнат. Также предусмотрен подвал площадью около 58 м² и крытая парковка. В строительстве используются качественные материалы, а дом соответствует классу энергоэффективности A и оснащён солнечными панелями. Недвижимость расположена в тихом жилом районе Palodia с удобным доступом к школам, магазинам и всей инфраструктуре Лимассола, что делает её отличным выбором для комфортной жизни или инвестиции. Разрешения на строительство получены, начало строительства запланировано после подписания контракта.
