Новая 4-спальная вилла в Пафосе №206575
Дополнительно:
Новостройка
Бассейн
Кондиционер
Отопление
Парковка
Кладовая
Описание:
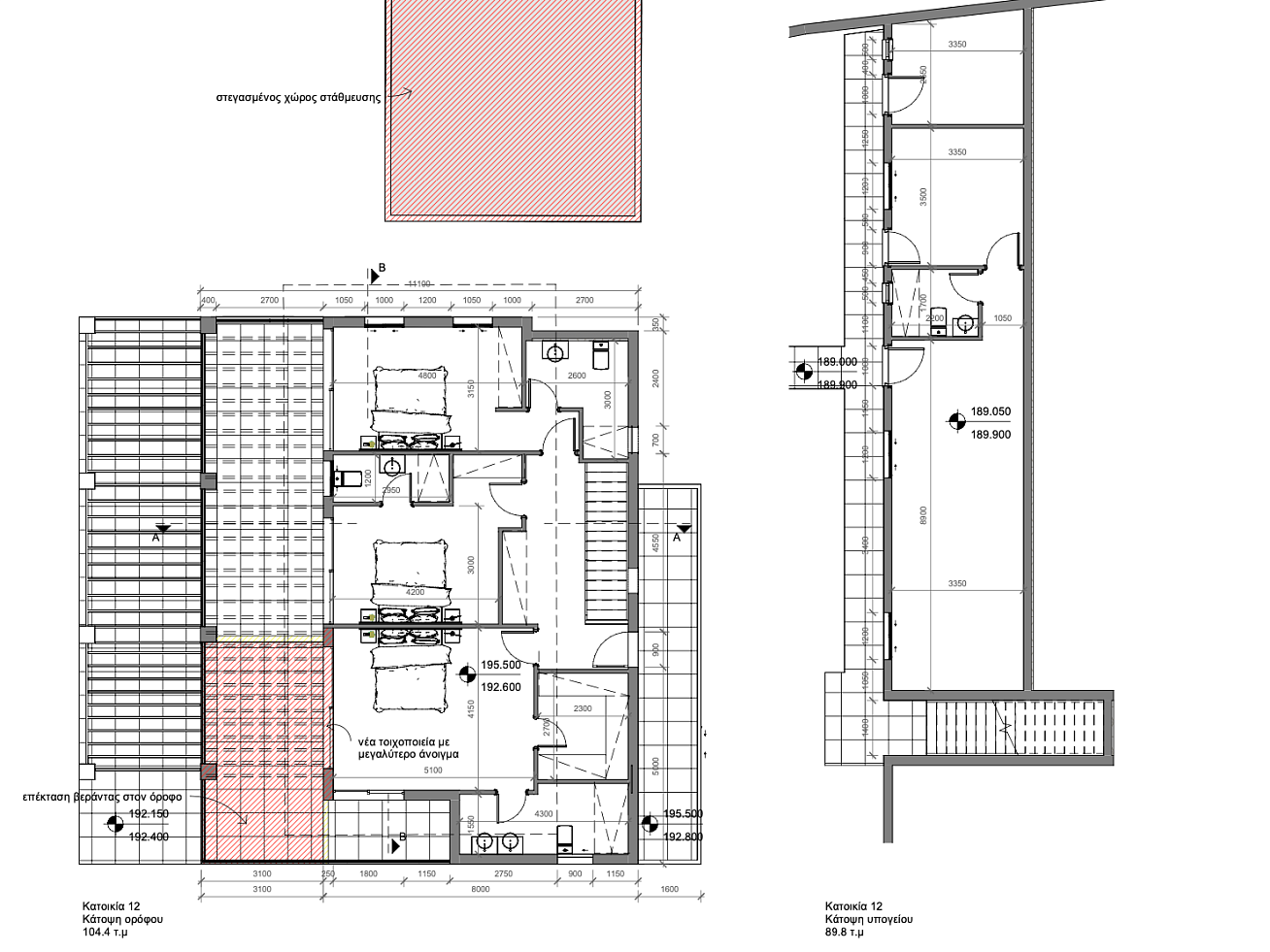
Продаётся вилла в районе Tala, Paphos. Современная вилла расположена в живописном и спокойном районе Тала, всего в нескольких минутах езды от центра Пафоса и моря. Проект представляет собой эксклюзивный жилой комплекс из 12 вилл, выполненных в современном архитектурном стиле с использованием высококачественных материалов и продуманных планировок.
Вилла включает просторные спальни, гостиную с открытой планировкой, кухню с современным оборудованием и большие веранды. На участке предусмотрен частный бассейн, барбекю-зона и парковка. Вилла оборудована системой подогрева полов и системой VRF-кондиционирования, что обеспечивает комфорт в любое время года.
Читать далее
Объект
№206575
Тип:
Вилла / Дом
Город:
Район:
Комплекс:
Застройщик:
Кол-во спален:
4
Ванных комнат:
3
Общая площадь:
359 м2
Жилая площадь:
342 м2
Площадь участка:
1247 м2
Этажность:
2
Год постройки:
06/2027
Расстояние до моря:
2800 м
Класс энергоэффективности:
A
1 500 000 EUR
+ VAT
1500000
4 178
EUR/м2
Записаться на просмотр
Похожие предложения
2275 объектов
Показать все
Ранее просмотренные объекты
Интересное
