Новый 3-спальный дом в Никосии №204065
Продается двухуровневый дом в районе Dali, Nicosia. Комплекс включает всего шесть домов. В резиденциях установлена фотоэлектрическая система мощностью 3 кВт, что существенно снижает ежемесячные расходы на электроэнергию.
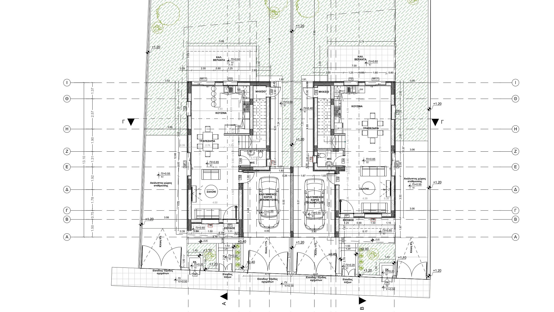
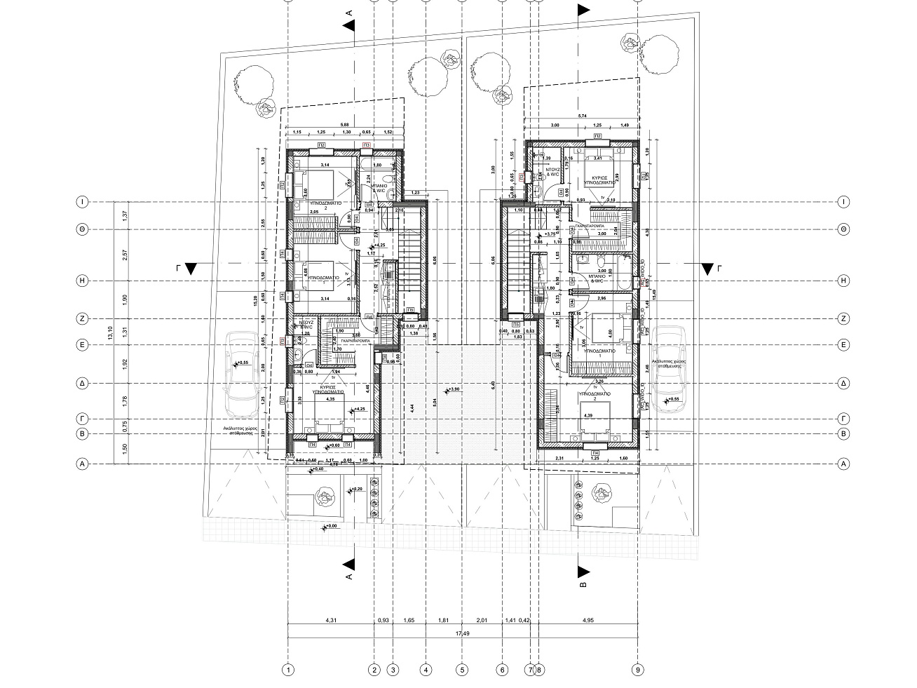
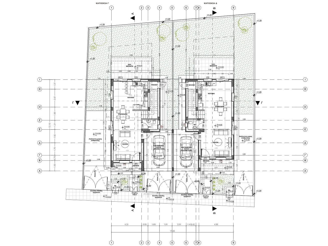
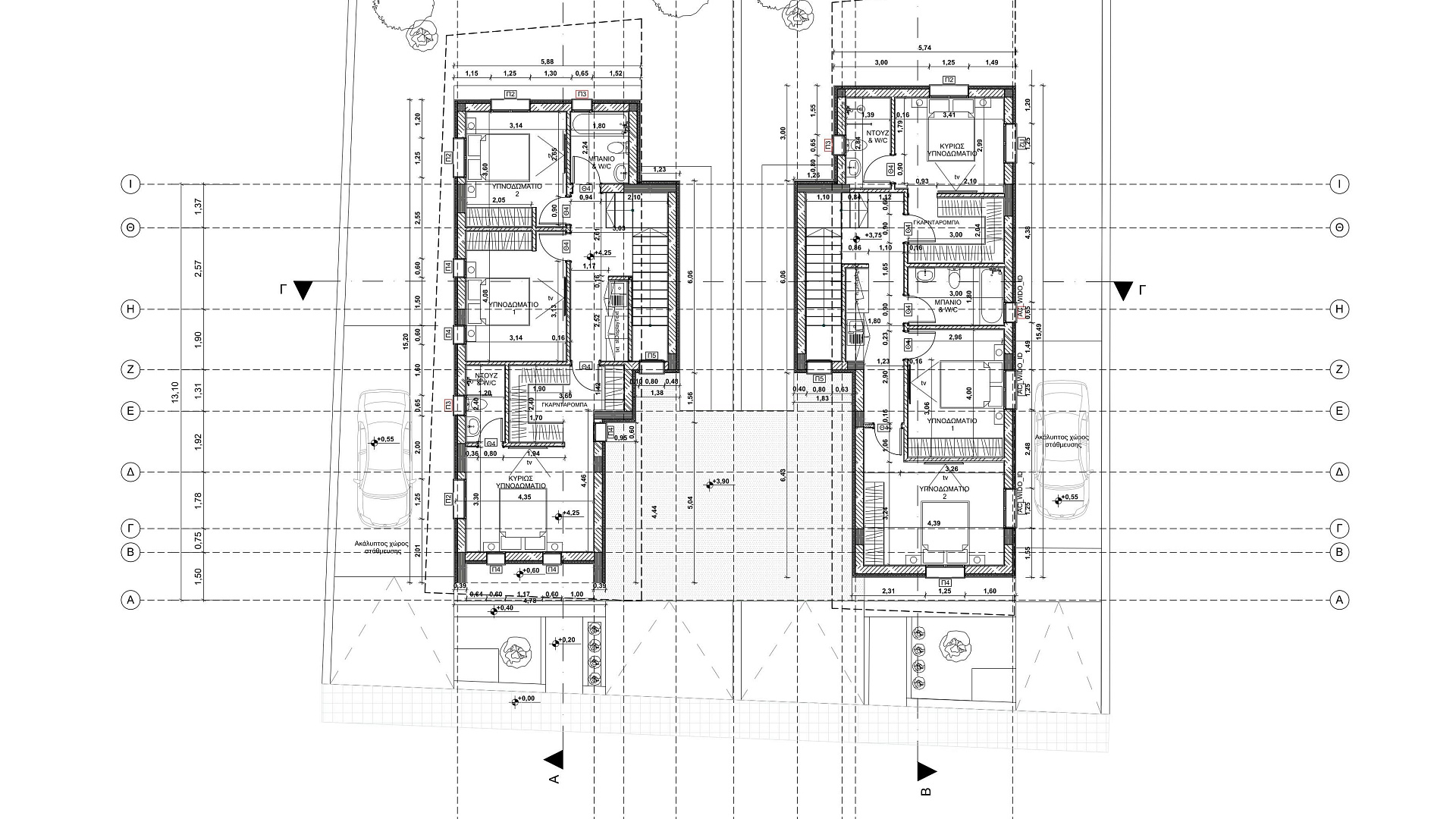
Архитектура дома продумана для максимального комфорта. На первом этаже расположена кухня и гостиная открытого плана и гостевой санузел, на втором этаже есть три спальни и три ванных комнаты.
Для будущих владельцев предусмотрен ряд дополнительных опций, позволяющих усовершенствовать дом согласно личным потребностям. Запланирована возможность установки систем кондиционирования воздуха, электрических ворот, системы видеонаблюдения и сигнализации. Также существует техническая возможность для подключения дома к центральной канализационной системе.
Приобретение этого дома в Dali — это инвестиция в комфортную и современную жизнь. Развитая инфраструктура района отвечает всем повседневным нуждам.
