2-спальные апартаменты в Никосии №203310
Дополнительно:
Бассейн
Мебель
Бытовая техника
Кондиционер
Отопление
Парковка
Тренажерный зал
Лифт
Описание:
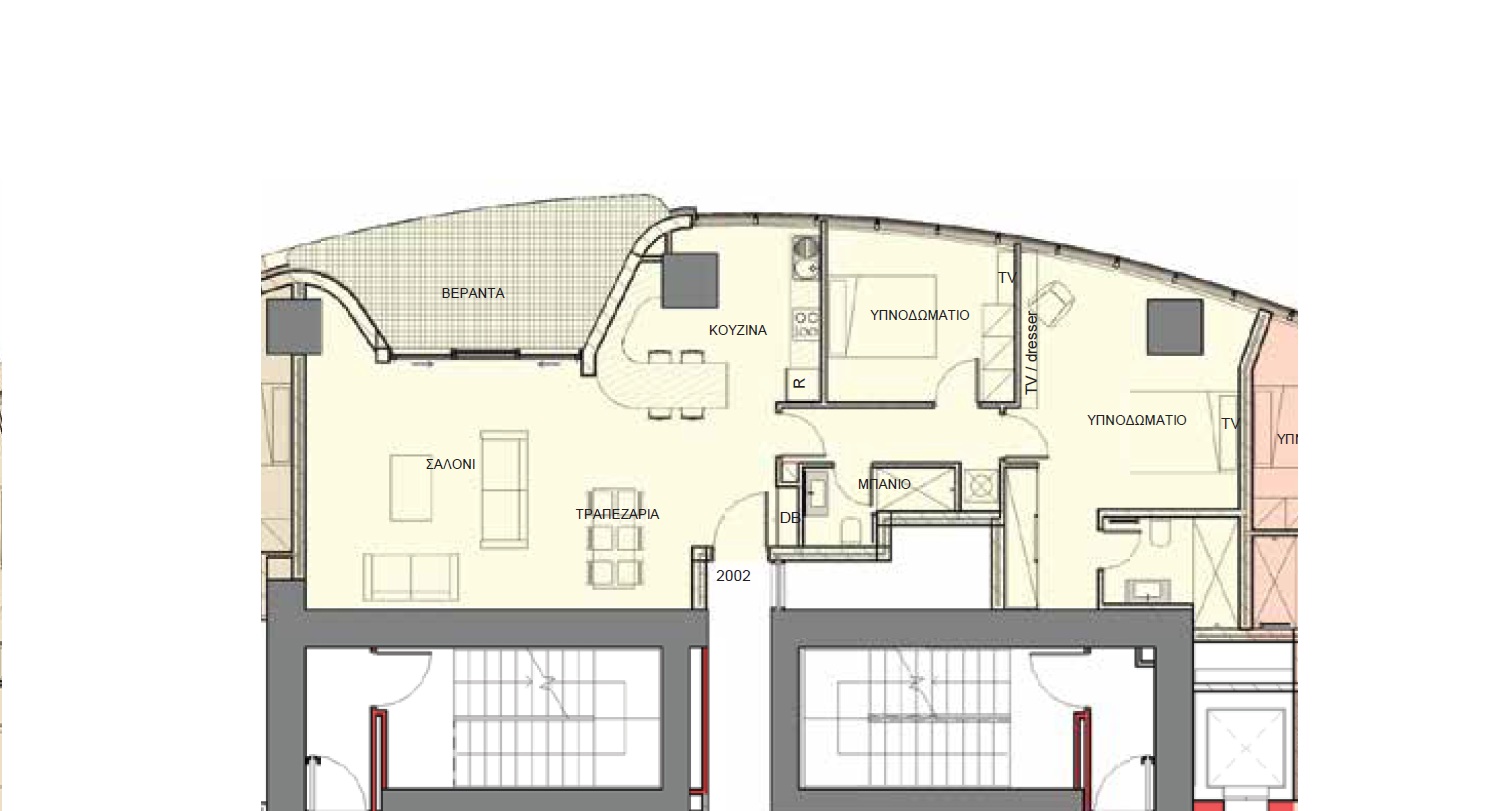
Продается 2-спальная квартира в районе Town Center Nicosia. VRV Кондиционер/Отопление, теплый пол, система вентиляции. Подвесные потолки со светодиодной подсветкой и скрытыми карнизами. Высококачественные мраморные/паркетные полы. Элитная сантехника с безрамным стеклом. Услуги консьержа круглосуточно. Доступна уборка номеров. Двойной бассейн с солнечной террасой, полностью оборудованный тренажерный зал, оздоровительный центр с сауной и паровой баней, а также лаунж и бар только для резидентов. Имеется выделенный подземный паркинг возле квартиры. Самое высокое здание в Никосии! Комплекс находится в пешей доступности от всех удобств. Квартира оборудована всей необходимой мебелью и техникой.
Читать далее
Объект
№203310
Тип:
Квартира / Апартаменты
Город:
Район:
Комплекс:
Застройщик:
Кол-во спален:
2
Ванных комнат:
2
Общая площадь:
125 м2
Жилая площадь:
111 м2
Этажность:
34
Этаж:
22
Год постройки:
2020
Класс энергоэффективности:
A
599 000 EUR
599000
4 792
EUR/м2
Записаться на просмотр
Похожие предложения
7983 объекта
Показать все
Ранее просмотренные объекты
Интересное
