Новый 3-спальный дом в Фамагусте №202515
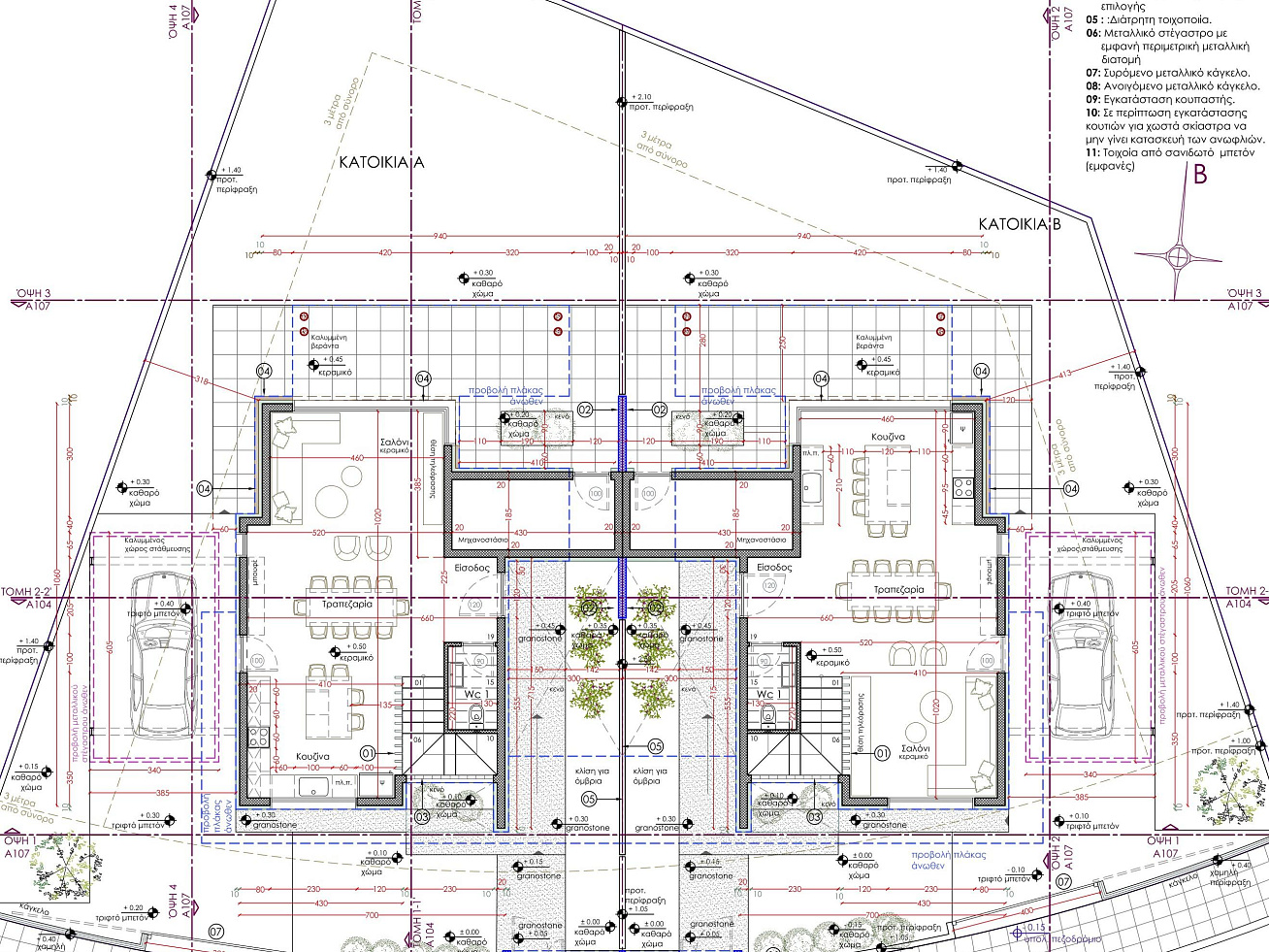
Продаётся современный дом с тремя спальнями в районе Sotiria, Famagusta. Просторная планировка продумана до мелочей, чтобы максимально использовать естественное освещение и создать ощущение открытого пространства. Интерьер выполнен с применением роскошной отделки: высококачественные напольные покрытия, современная кухня с достаточным количеством мест для хранения и стильным дизайном, а также элегантные ванные комнаты в современном исполнении.
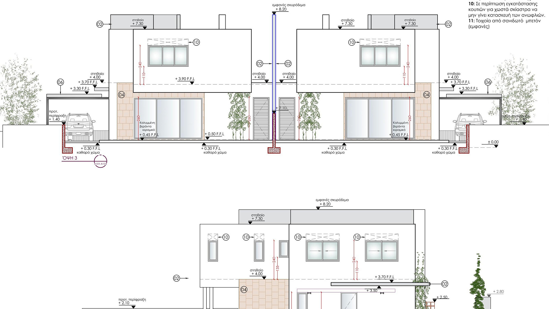
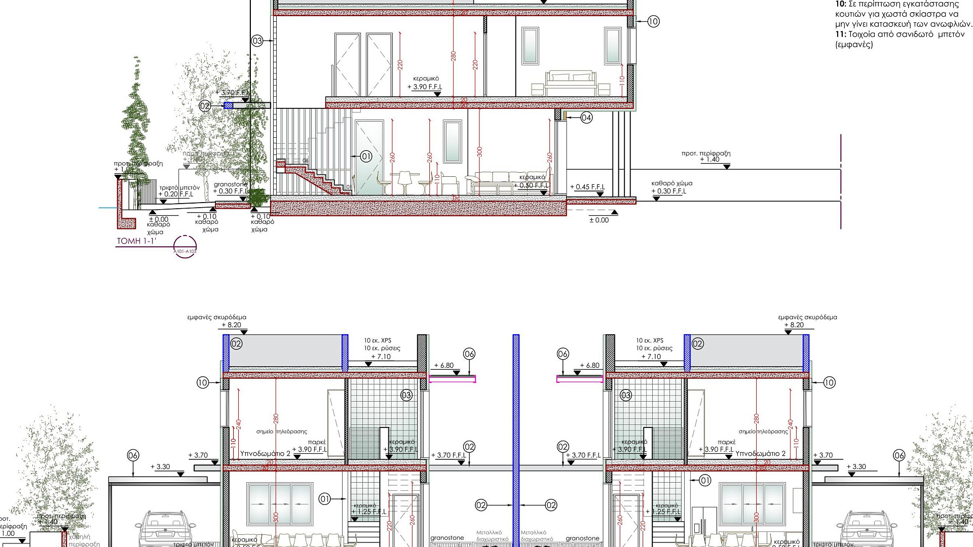
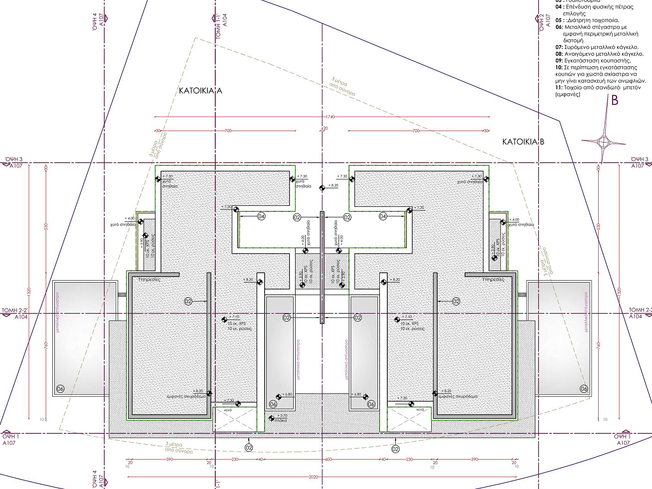
Дом имеет класс энергоэффективности A, что обеспечивает низкие затраты на электроэнергию и минимальное воздействие на окружающую среду. Также имеется крытая парковка. Установленная на крыше фотогальваническая система позволяет использовать возобновляемую энергию, снижая расходы на электричество.
Окна с двойным термостеклопакетом обеспечивают отличную тепло- и шумоизоляцию. Алюминиевые элементы конструкции изготовлены из термостойкого материала, что придаёт дому прочность и высокую энергоэффективность.
