Новая 5-спальная вилла в Лимассоле №202015
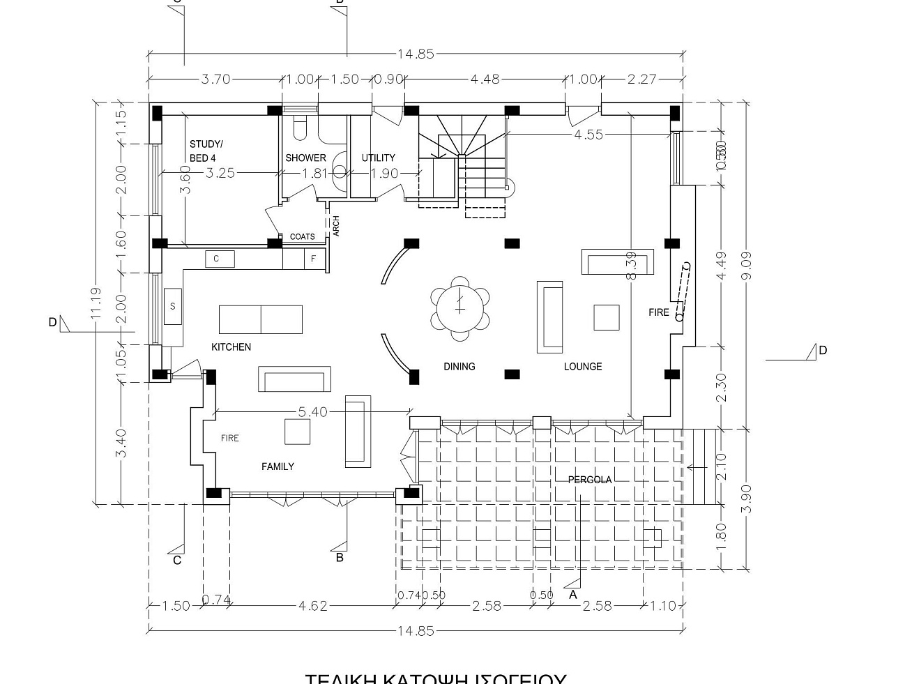
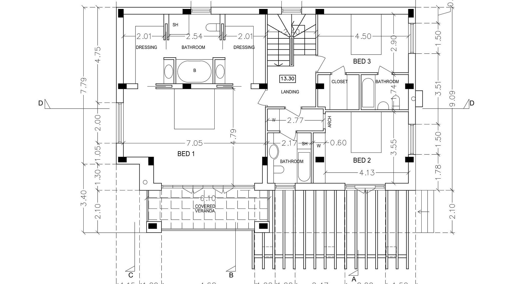
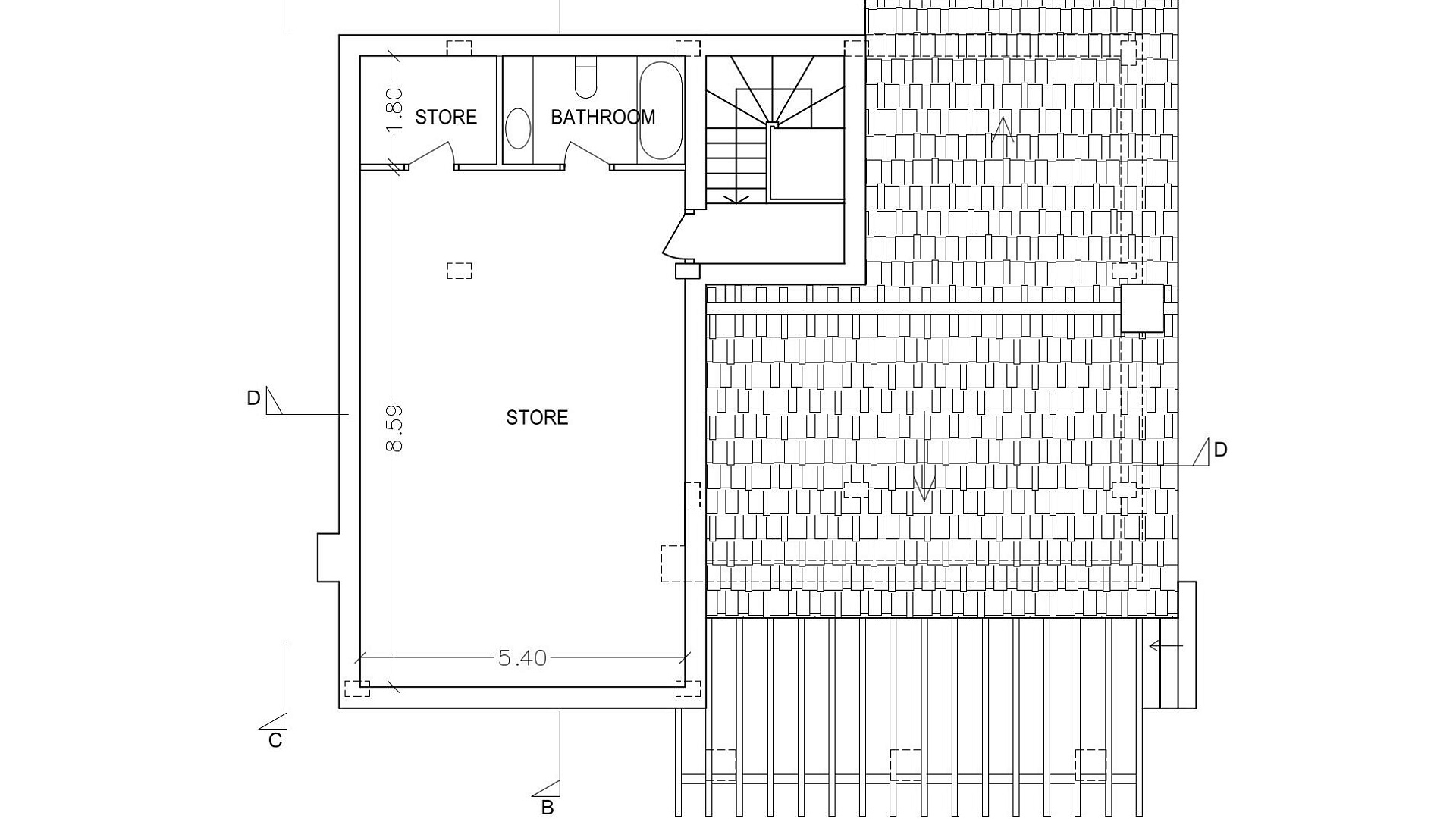
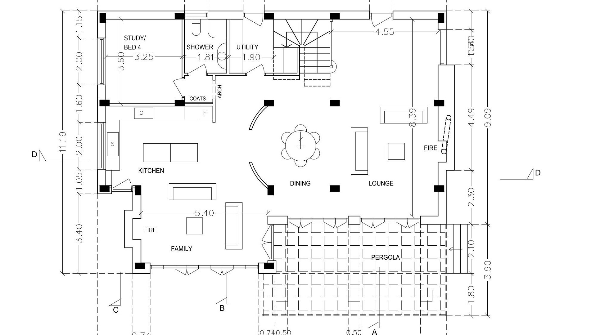
Продается вилла с 5 спальнями в Souni, Limassol с захватывающим видом на полуостров Акротири. Вилла на отдельном большом участке 4534 м2. В стоимость входит: бассейн-инфинити, солнечный и электрический водонагреватель, камин, сигнализация, крыша из восстановленной терракотовой черепицы и барбекю, алюминиевые окна и двери с двойным остеклением под дерево, внешнее патио площадью 250 м² с мощеной террасной доской. Кроме того, есть бар и барбекю на крыше, выложенные черепицей. Дополнительные опции: гостевой дом/дом для персонала, фотоэлектрические панели с инвертором, двойной гараж. Проектом предусмотрена фотоэлектрических панелей с инвертором. Для автомобиля предусмотрена крытая парковка/гараж. Получено разрешение на строительство и планирование.
