Новый 2-спальный пентхаус в Ларнаке №201125
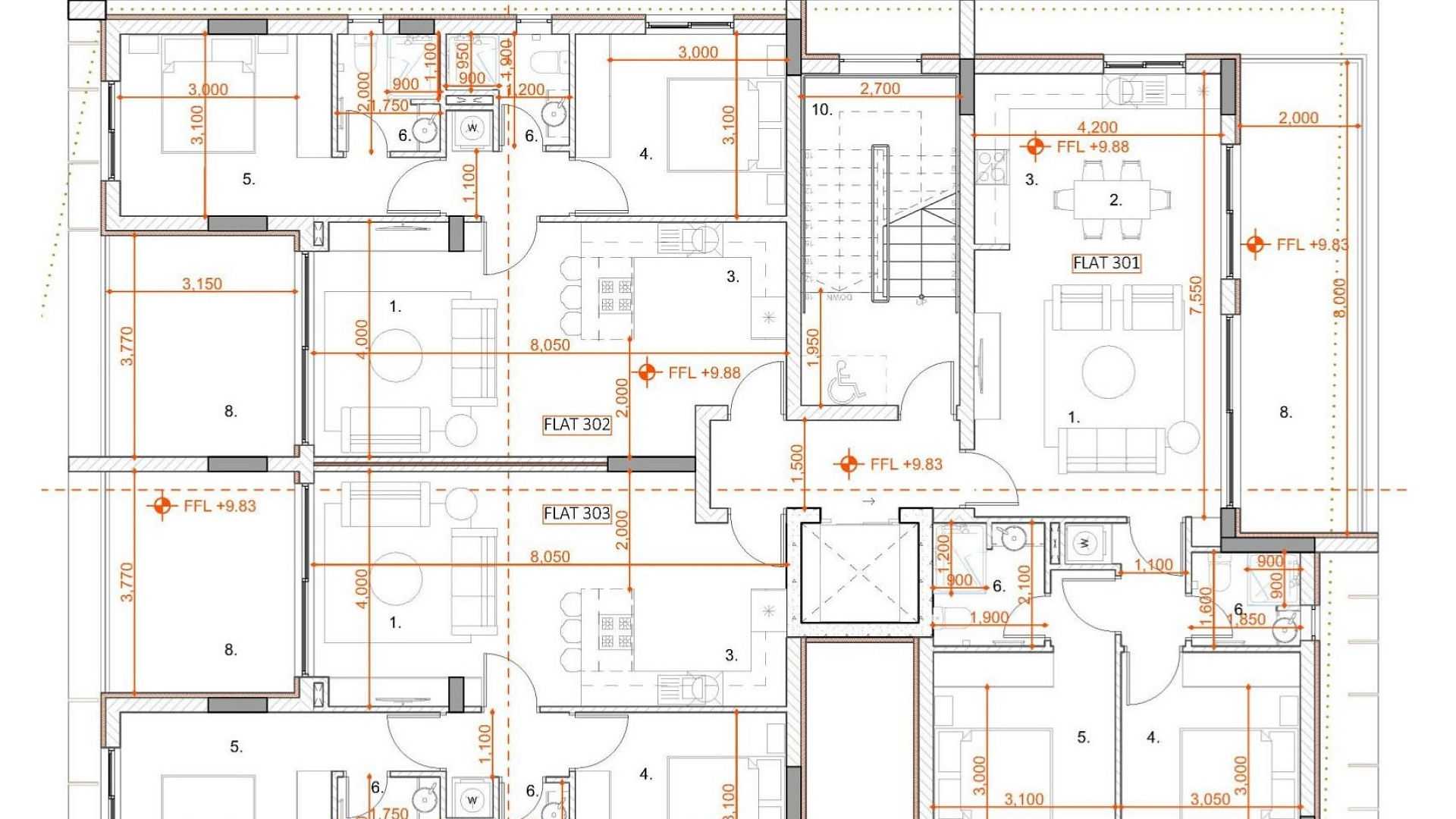
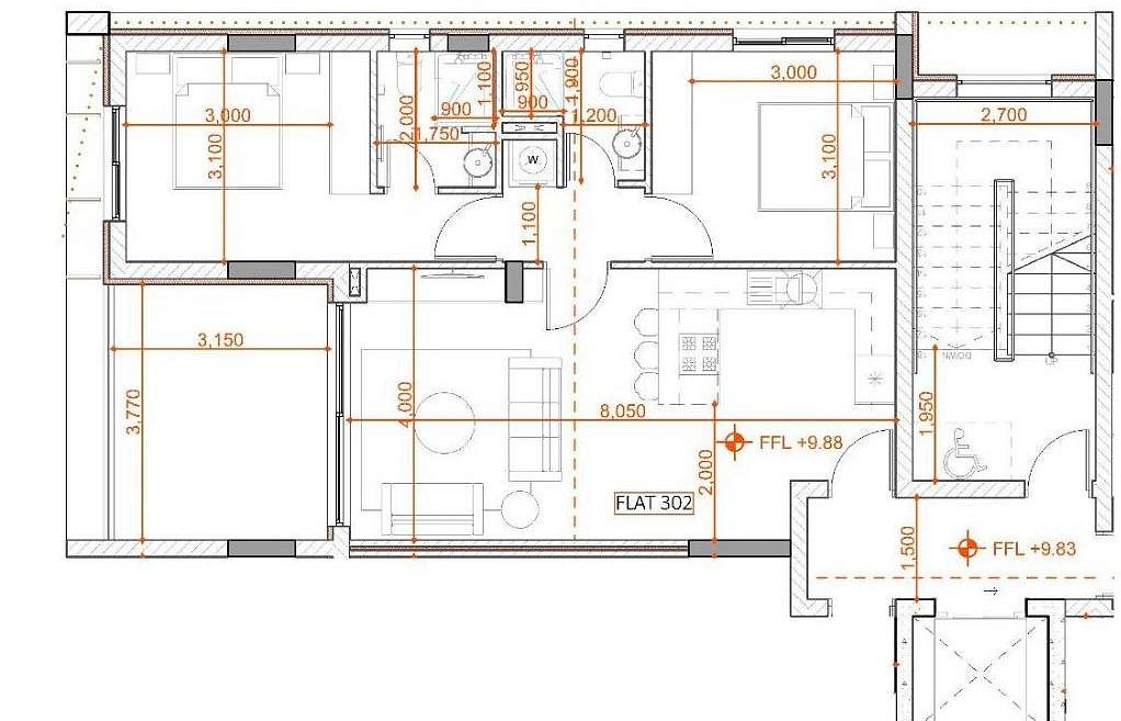
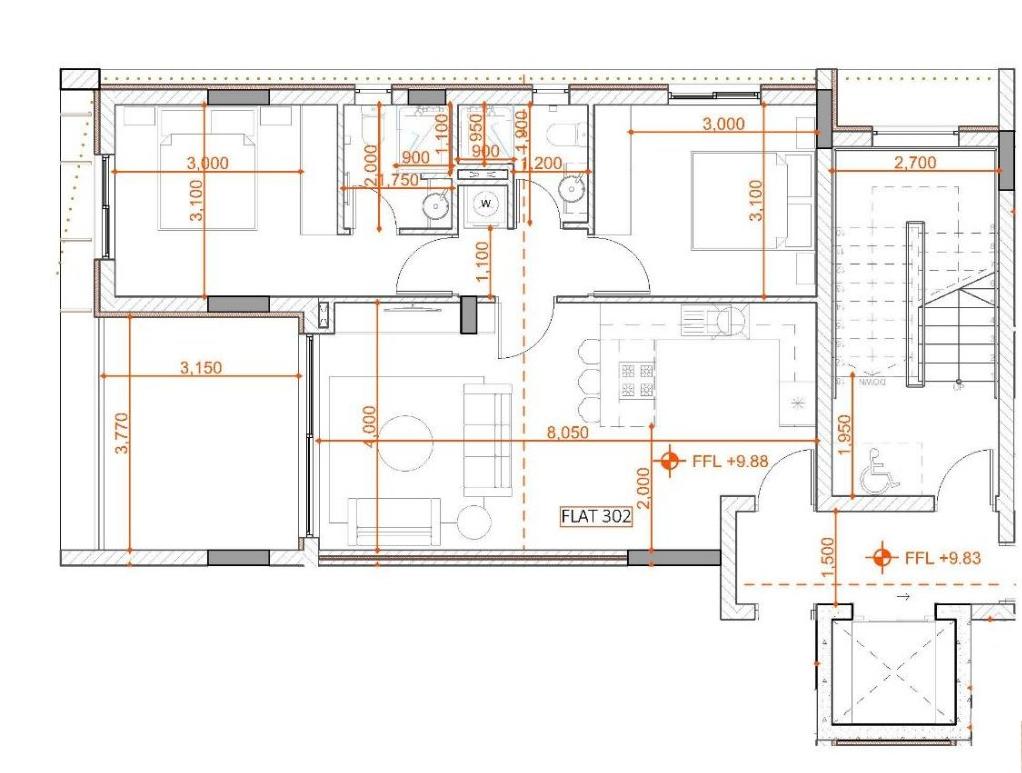
Продаётся современный пентхаус с террасой на крыше в самом центре Larnaca. Объект расположен в новом жилом комплексе с качественной архитектурой и продуманной концепцией, рядом с парком, в пешей доступности от магазинов, кафе, ресторанов и набережной. Квартира отличается удобной и функциональной планировкой, светлыми жилыми пространствами и современным интерьером. Просторная гостиная объединена с кухней, что создаёт комфортную атмосферу для повседневной жизни и приёма гостей. Большие окна и балкон обеспечивают отличное естественное освещение и приятные виды. В комплексе предусмотрены крытая парковка и кладовая. Удачное расположение в центре города делает данный пентхаус отличным выбором как для комфортного проживания, так и для выгодной инвестиции с высоким арендным потенциалом.
